Waiting for video...
The property will be re-offered in our June 24-26 Auction
ONLINE AUCTION from 20th MAY - 22nd MAY 2025
A substantial character property that requires modernisation and improvement. The property offers excellent potential as a large family dwelling or potential to split into flats or HMO (subject to planning).
The property was historically a shop with living accommodation however it previously traded as sweetshop from 40 years ago to 60 years ago and has then been used only for residential.
There are a number of original features such as doors and flooring and fireplaces and the staircase that could compliment and future improvements and externally there is a spacious rear garden.
The village of Llandybie has a good range of local amenities and shops and picturesque countryside surrounding and is about 7 minute’s drive from the bustling town of Ammanford.
VIRTUAL TOUR
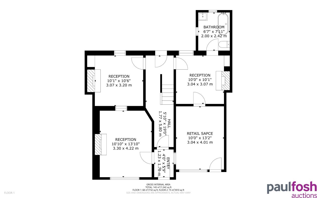
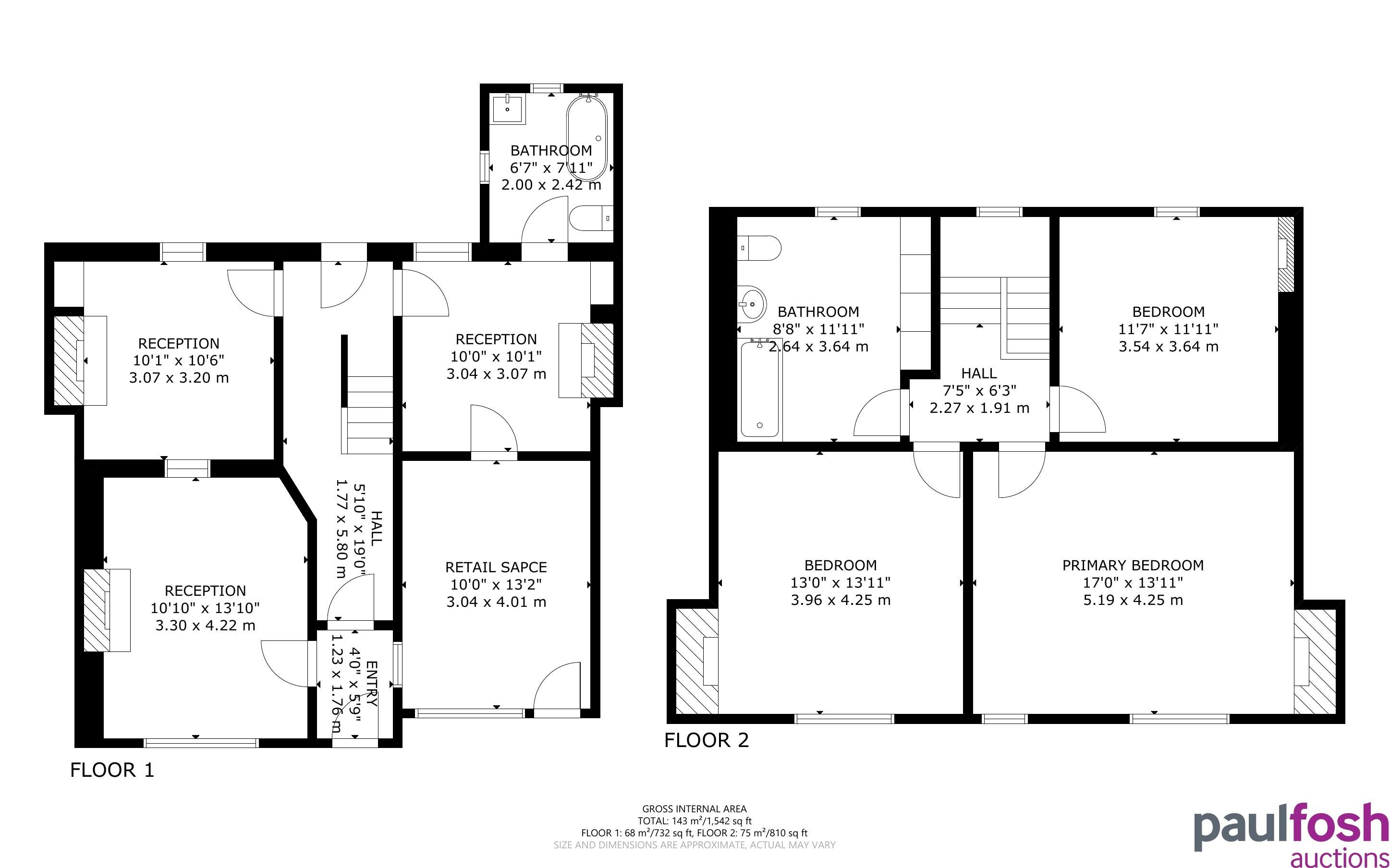
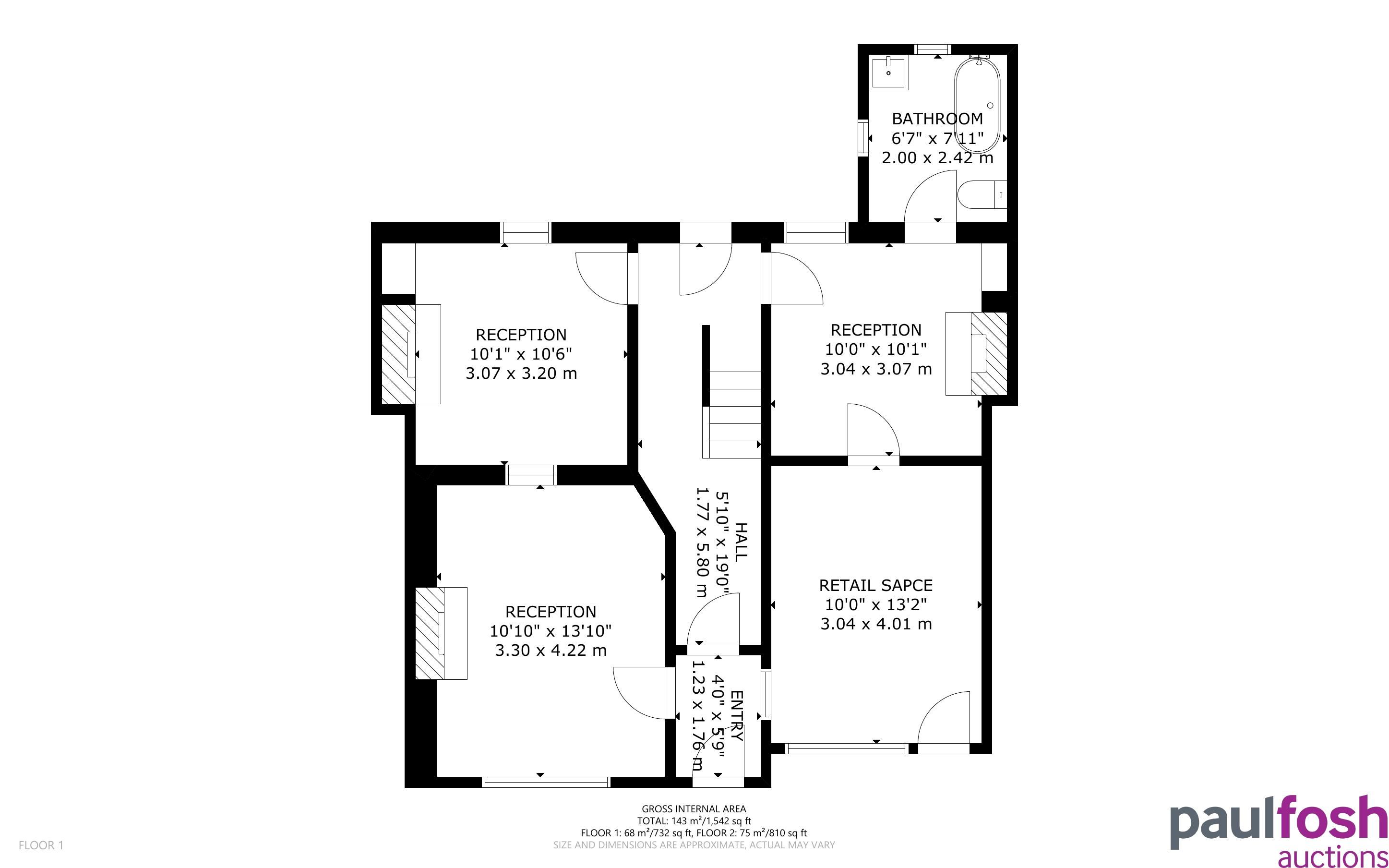
Ground Floor: Entrance, 3 receptions, bathroom and lean to and former shop area
First Floor: 3 bedrooms, bathroom access to spacious attic space
Outside: Spacious rear garden with outbuilding and side access to property
C
To be sold with vacant possession
Advised Freehold - to be verified by solicitor
Auction fees: The sale of each lot is subject to a buyer’s premium/admin fee of 1.5% of the purchase price (subject to a minimum of £1,500 for sale prices between £1 and £50,000 or subject to a minimum of £2,400 for sale prices of £50,001 upwards) including VAT unless otherwise stated.
Additional costs: The purchase of the property may be subject to (but are not limited to), VAT (if applicable), reimbursement of the seller’s search fees, reimbursement of seller’s legal and/or sales costs, stamp duty/land transaction tax (LTT). Please check accompanying legal pack for further details.
* Generally speaking Guide Prices are provided as an indication of each seller's minimum expectation, i.e. 'The Reserve'. They are not necessarily figures which a property will sell for and may change at any time prior to the auction. Virtually every property will be offered subject to a Reserve (a figure below which the Auctioneer cannot sell the property during the auction) which we expect will be set within the Guide Range or no more than 10% above a single figure Guide.
As a trusted partner of Paul Fosh Auctions, Together could offer the auction finance you need, when you need it. Visit togethermoney.com for more information.
If considering a mortgage, we advise that you inspect and consider the property carefully with your lender before bidding.
By setting a proxy bid, the system will automatically bid on your behalf to maintain your position as the highest bidder, up to your proxy bid amount. If you are outbid, you will be notified via email so you can opt to increase your bid if you so choose.
If two of more users place identical bids, the bid that was placed first takes precedence, and this includes proxy bids.
Another bidder placed an automatic proxy bid greater or equal to the bid you have just placed. You will need to bid again to stand a chance of winning.