Waiting for video...
ONLINE AUCTION from 20th MAY - 22nd MAY
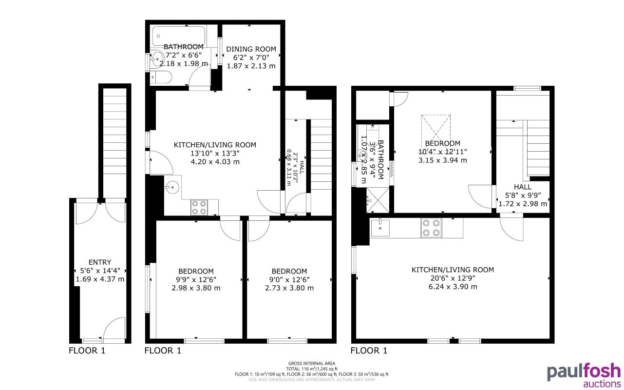
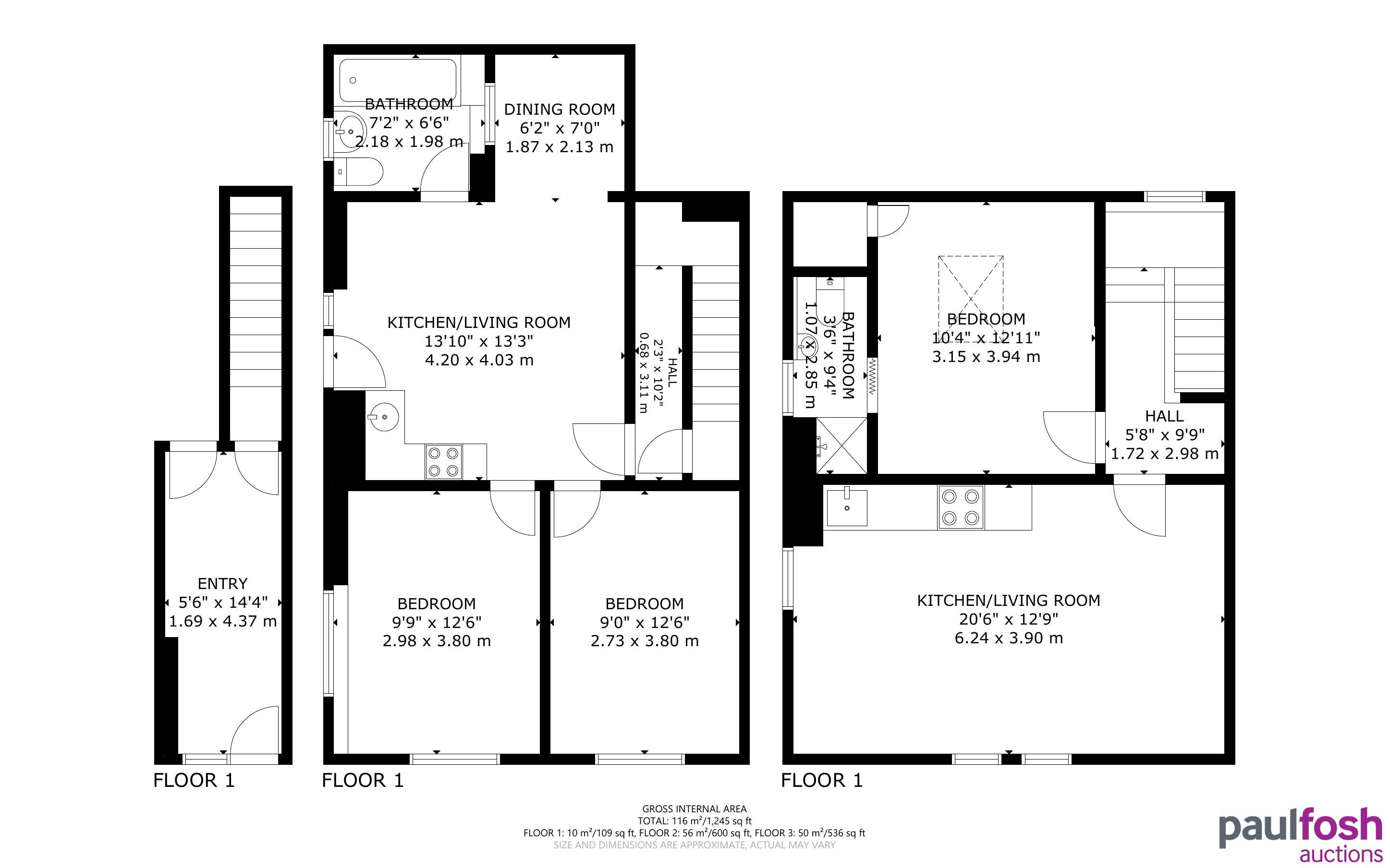
The upper floors of 1a Wern Fawr Road Port Tennant centrally located in Port Tennant, Swansea and more recently used as 2 flats.
The property comprises of Lounge/Kitchen Area with a utility off. The property has a bathroom with a shower over the bath, and two large double bedrooms . There is then another kitchen/lounge area with a further bedroom and en-suite. The property was originally one house but has been used most recently as two apartments
The property is located in the ever so popular area of Port Tennant, Swansea. Its location offers convenient access to the M4 Motorway, Swansea City Centre, Swansea University and the SA1 Waterfront.
The Apartment offers a great investment opportunity for a long term tenant in the area, and would expect between £800-£925PCM per apartment. Alternatively it could be let out as one large dwelling as a HMO. Dependant on the quality of the refurbishment, there is a high demand from working professionals in the area and also with its close links to the local university and marina making it a central location.
An apartment next door has turned their unit into a service accommodation unit and rents to local contractors in the week and guests visiting Swansea at weekends. There is more work in the letting of this however the rental returns on an apartment in good quality in this area on a serviced accommodation would be near £18k per annum per apartment. There are local agencies that can provide management services for this.
You could also purchase and refurbish and re-sell again as there is much demand for first time buyers and local investors wanting newly refurbished stock. Prices in the area are high and if the apartment could be refurbished to a high standard then a good return on investment would be gained.
VIRTUAL TOUR
A
To be sold with vacant possession however could potentially achieve for the the area between£800-£925PCM per apartment or it could be let out as one large dwelling as a HMO dependant on the quality of the refurbishment
Advised Leashold - to be verified by solicitor
Auction fees: The sale of each lot is subject to a buyer’s premium/admin fee of 1.5% of the purchase price (subject to a minimum of £1,500 for sale prices between £1 and £50,000 or subject to a minimum of £2,400 for sale prices of £50,001 upwards) including VAT unless otherwise stated.
Additional costs: The purchase of the property may be subject to (but are not limited to), VAT (if applicable), reimbursement of the seller’s search fees, reimbursement of seller’s legal and/or sales costs, stamp duty/land transaction tax (LTT). Please check accompanying legal pack for further details.
* Generally speaking Guide Prices are provided as an indication of each seller's minimum expectation, i.e. 'The Reserve'. They are not necessarily figures which a property will sell for and may change at any time prior to the auction. Virtually every property will be offered subject to a Reserve (a figure below which the Auctioneer cannot sell the property during the auction) which we expect will be set within the Guide Range or no more than 10% above a single figure Guide.
As a trusted partner of Paul Fosh Auctions, Together could offer the auction finance you need, when you need it. Visit togethermoney.com for more information.
If considering a mortgage, we advise that you inspect and consider the property carefully with your lender before bidding.
By setting a proxy bid, the system will automatically bid on your behalf to maintain your position as the highest bidder, up to your proxy bid amount. If you are outbid, you will be notified via email so you can opt to increase your bid if you so choose.
If two of more users place identical bids, the bid that was placed first takes precedence, and this includes proxy bids.
Another bidder placed an automatic proxy bid greater or equal to the bid you have just placed. You will need to bid again to stand a chance of winning.