Waiting for video...
ONLINE AUCTION from 4th - 6th OCTOBER
A substantial freehold building comprising ground floor retail unit and three spacious self contained flats. The ground floor unit is sold with vacant possession having most recently traded as a café but would be ideal for multiple uses. The flats are all let and are well managed and have historically enjoyed good occupancy levels with virtually no voids. The property has an HMO licence.
The property is situated in the vibrant high street area of Newport city centre which has seen a significant amount of regeneration and investment including the refurbished Newport Market a hub for business and food and the recently upgraded Market Arcade. The buyers may benefit from grants to the property which the seller understands could be available by NCC to any new buyer.
VIRTUAL TOUR
;
| Floor | Description | Rent |
|---|---|---|
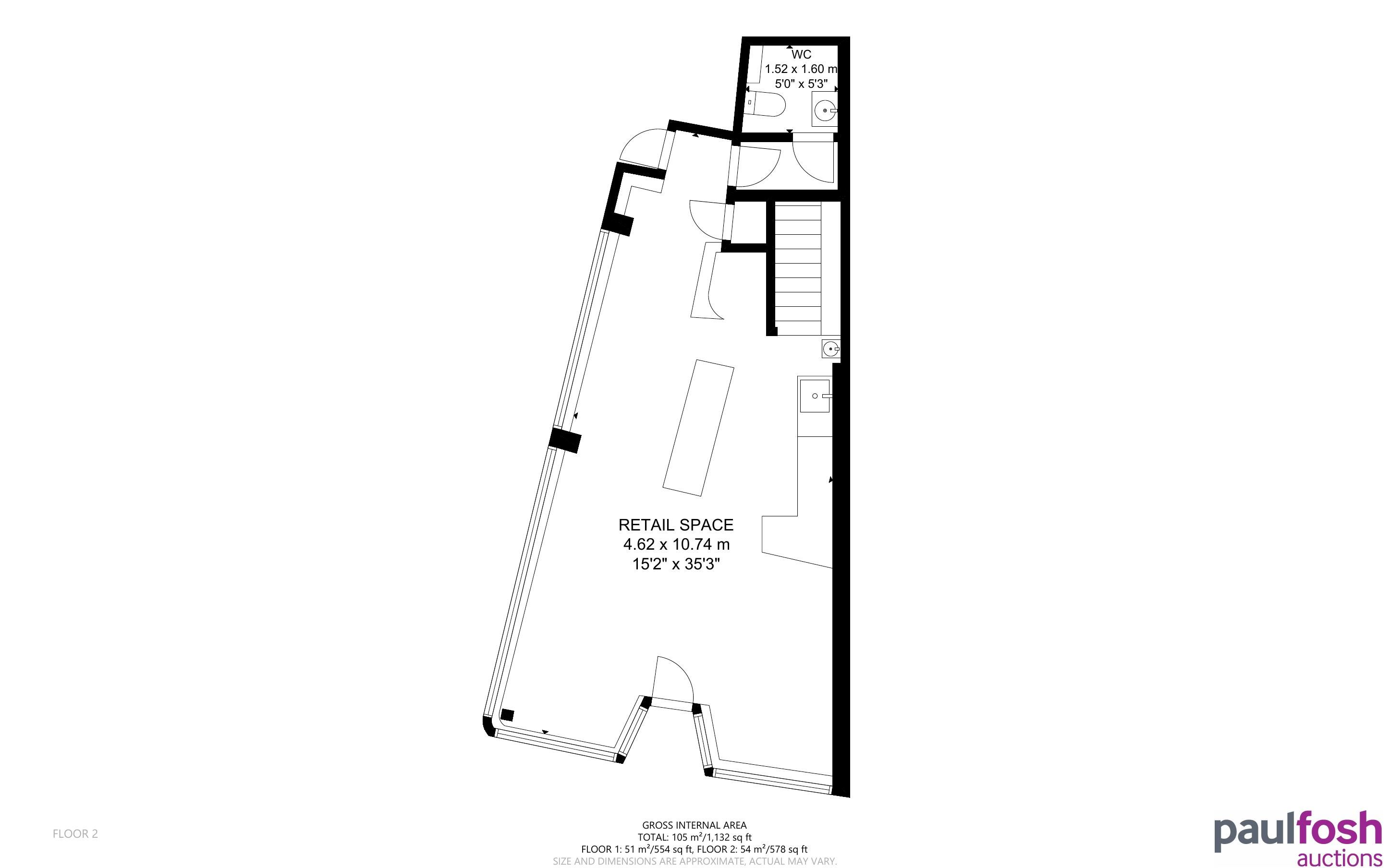
| Ground (retail unit/cafe) | Former café with seating area and serving counter, rear kitchen and prep room and access to cellar | prev let at £650 pcm (£7,800 pa) |
| Ground | Via entrance from the market arcade communal stairs to FF | |
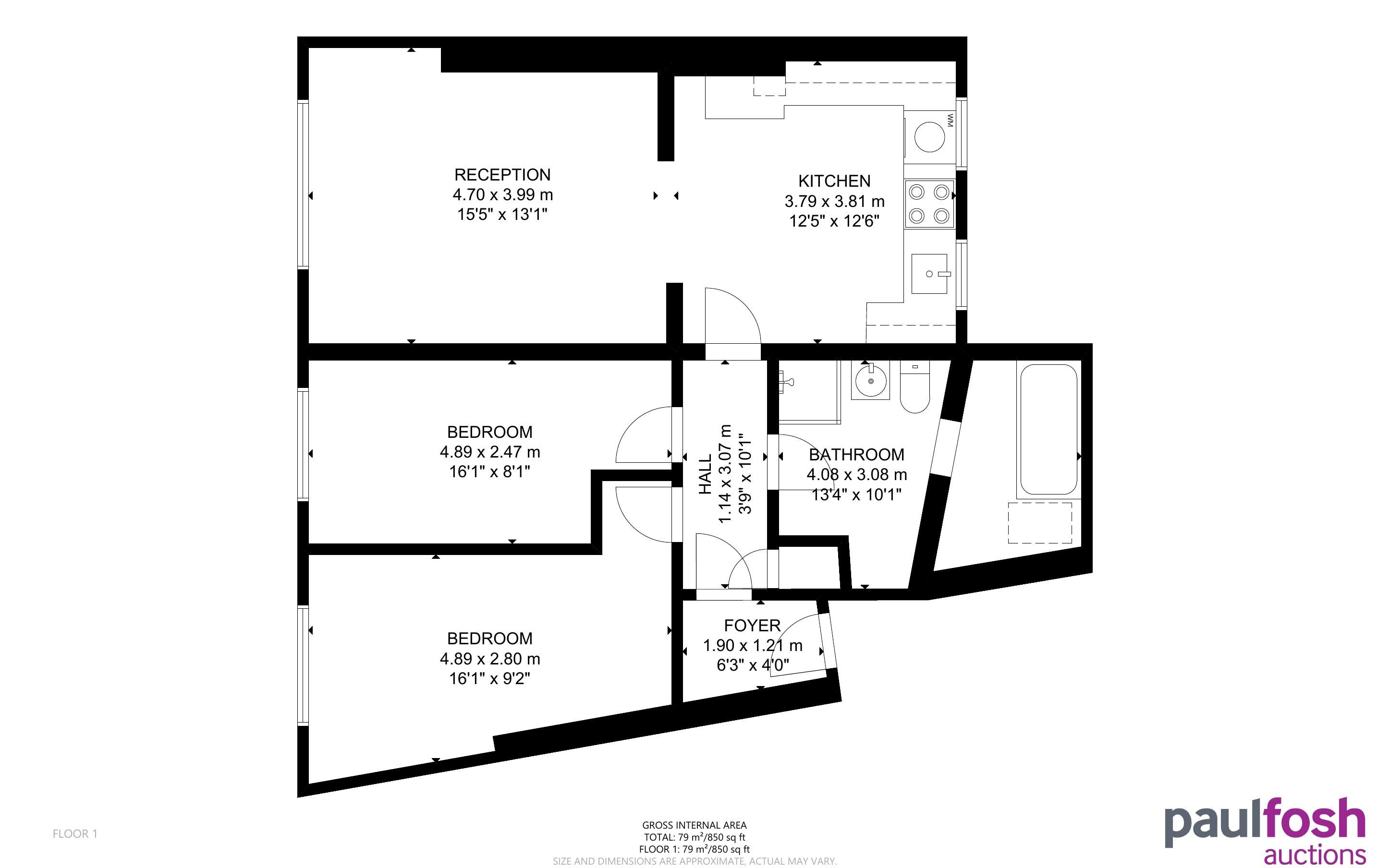
| First - Flat 1 | Hallway, lounge/kitchen, 2 bedrooms, bathroom | Let on AST at £525 pcm (£6,300 pa) |
| Second - Flat 2 | Hallway lounge/kitchen, 2 bedrooms, bathroom | Let on AST at £495 pcm (£5,940 pa) |
| Third - Flat 3 | Hallway, lounge/kitchen, 2 bedrooms, bathroom | Let on AST at £525 pcm (£6,300 pa) |
| Attic | Attic space offering further potential (subject to necessary planning consents) | |
| Total annual income when fully let | £26,340 |
INVESTORS: If you are looking for assistance in tenant find and/or management packages, information on rental income/interest potential, we have a Lettings Department that can help you. Please call us on 01633 746800 or email rhys@paulfoshlettings.com for invaluable advice.
Advised Freehold - to be verified by solicitor
Auction fees: The sale of each lot is subject to a buyer’s premium/admin fee of 1.5% of the purchase price (subject to a minimum of £1,500 for sale prices between £1 and £50,000 or subject to a minimum of £2,400 for sale prices of £50,001 upwards) including VAT unless otherwise stated.
Additional costs: The purchase of the property may be subject to (but are not limited to), VAT (if applicable), reimbursement of the seller’s search fees, reimbursement of seller’s legal and/or sales costs, stamp duty/land transaction tax (LTT). Please check accompanying legal pack for further details.
* Generally speaking Guide Prices are provided as an indication of each seller's minimum expectation, i.e. 'The Reserve'. They are not necessarily figures which a property will sell for and may change at any time prior to the auction. Virtually every property will be offered subject to a Reserve (a figure below which the Auctioneer cannot sell the property during the auction) which we expect will be set within the Guide Range or no more than 10% above a single figure Guide.
As a trusted partner of Paul Fosh Auctions, Together could offer the auction finance you need, when you need it. Visit togethermoney.com for more information.
If considering a mortgage, we advise that you inspect and consider the property carefully with your lender before bidding.
By setting a proxy bid, the system will automatically bid on your behalf to maintain your position as the highest bidder, up to your proxy bid amount. If you are outbid, you will be notified via email so you can opt to increase your bid if you so choose.
If two of more users place identical bids, the bid that was placed first takes precedence, and this includes proxy bids.
Another bidder placed an automatic proxy bid greater or equal to the bid you have just placed. You will need to bid again to stand a chance of winning.