Waiting for video...
ONLINE AUCTION from 4th OCTOBER - 6th OCTOBER
PLEASE NOTE THAT THIS PROPERTY IS NOT A LISTED BUILDING - Therefore Listed Building Consents are not applicable
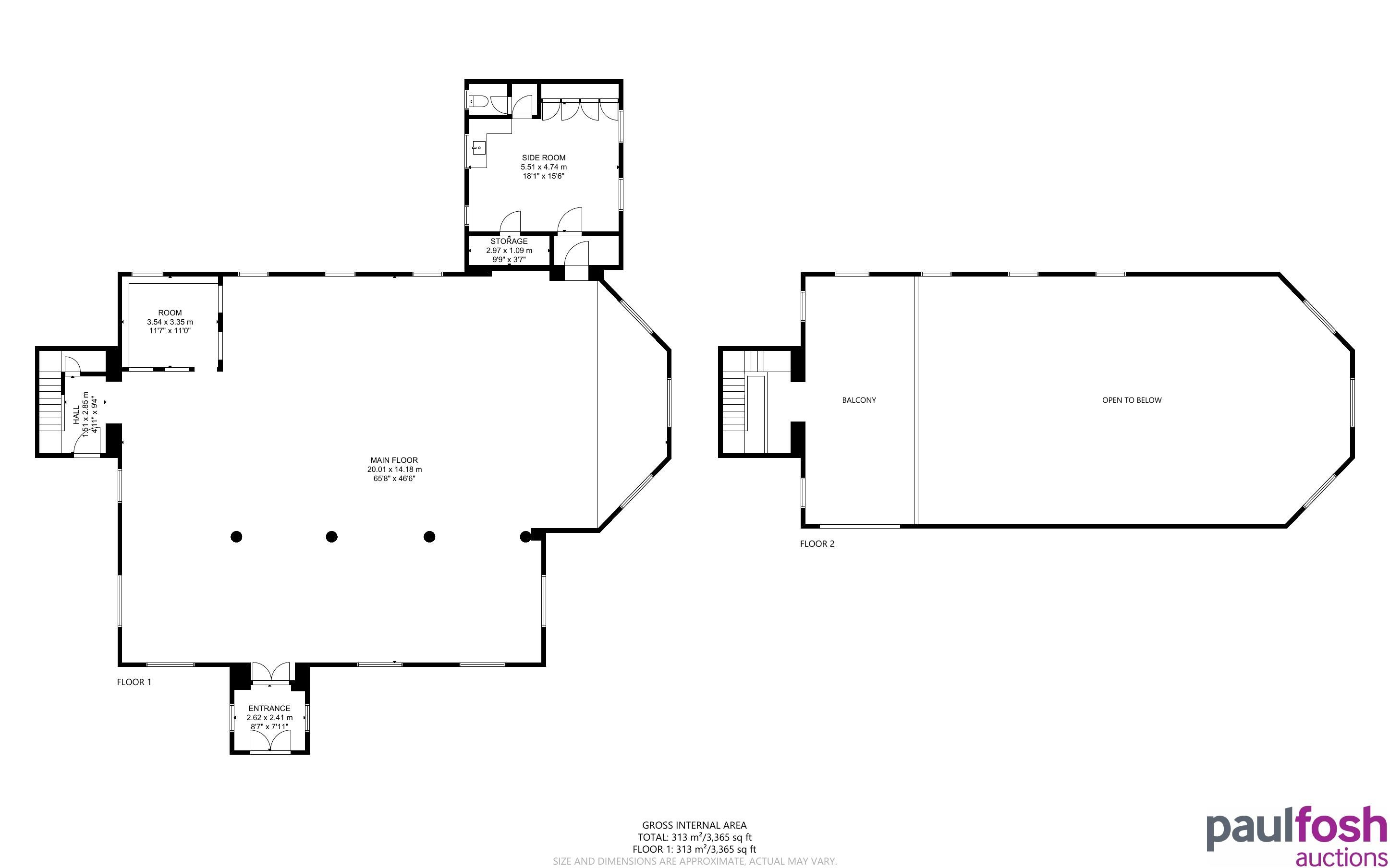
A rare opportunity to acquire a stunning church with planning for conversion to a 5 bedroom executive home and further planning for a detached dwelling in the adjoining grounds. The church will offer generous accommodation when completed and will include a games room, home cinema room and an open plan lounge. The kitchen area will be overlooked from an upper floor mezzanine living area.
The master bedroom will benefit from walk in wardrobe and en suite bathroom with an additional seating area with full glass wall offering stunning views across Swansea city and the bay.
The detached new build within the grounds will offer garden area and garage plus parking and full plans are available for the church and new build within the legal pack .
This wonderful opportunity is situated in the St Thomas area of the city which is convenient for both Swansea city centre and the new developments at SA1 and Copr bay waterfront site including the new arena. The world renowned Gower Peninsula and the Mumbles are within easy reach via good road links and public transport.
Planning: Full planning has been granted for conversion of the church to residential and construction of one detached dwelling . Planning Ref – 2019/0135/Ful Swansea Council
VIRTUAL TOUR
;
To be sold with vacant possession
Advised Freehold - to be verified by solicitor
Auction fees: The sale of each lot is subject to a buyer’s premium/admin fee of 1.5% of the purchase price (subject to a minimum of £1,500 for sale prices between £1 and £50,000 or subject to a minimum of £2,400 for sale prices of £50,001 upwards) including VAT unless otherwise stated.
Additional costs: The purchase of the property may be subject to (but are not limited to), VAT (if applicable), reimbursement of the seller’s search fees, reimbursement of seller’s legal and/or sales costs, stamp duty/land transaction tax (LTT). Please check accompanying legal pack for further details.
* Generally speaking Guide Prices are provided as an indication of each seller's minimum expectation, i.e. 'The Reserve'. They are not necessarily figures which a property will sell for and may change at any time prior to the auction. Virtually every property will be offered subject to a Reserve (a figure below which the Auctioneer cannot sell the property during the auction) which we expect will be set within the Guide Range or no more than 10% above a single figure Guide.
As a trusted partner of Paul Fosh Auctions, Together could offer the auction finance you need, when you need it. Visit togethermoney.com for more information.
If considering a mortgage, we advise that you inspect and consider the property carefully with your lender before bidding.
By setting a proxy bid, the system will automatically bid on your behalf to maintain your position as the highest bidder, up to your proxy bid amount. If you are outbid, you will be notified via email so you can opt to increase your bid if you so choose.
If two of more users place identical bids, the bid that was placed first takes precedence, and this includes proxy bids.
Another bidder placed an automatic proxy bid greater or equal to the bid you have just placed. You will need to bid again to stand a chance of winning.