Waiting for video...
ONLINE AUCTION 30th AUGUST - 1st SEPTEMBER
A substantial bay fronted mid terrace property situated close to Swansea City Centre. The property has most recently been let but is now sold with vacant possession and has previously had an HMO licence (now Lapsed). This is an ideal opportunity for a buy to let or for a holiday let or homeowner.
The city of Swansea is currently enjoying a huge amount of investment and is ideally situated for access to the Gower peninsular and the mumbles and has excellent transport links.
VIRTUAL TOUR
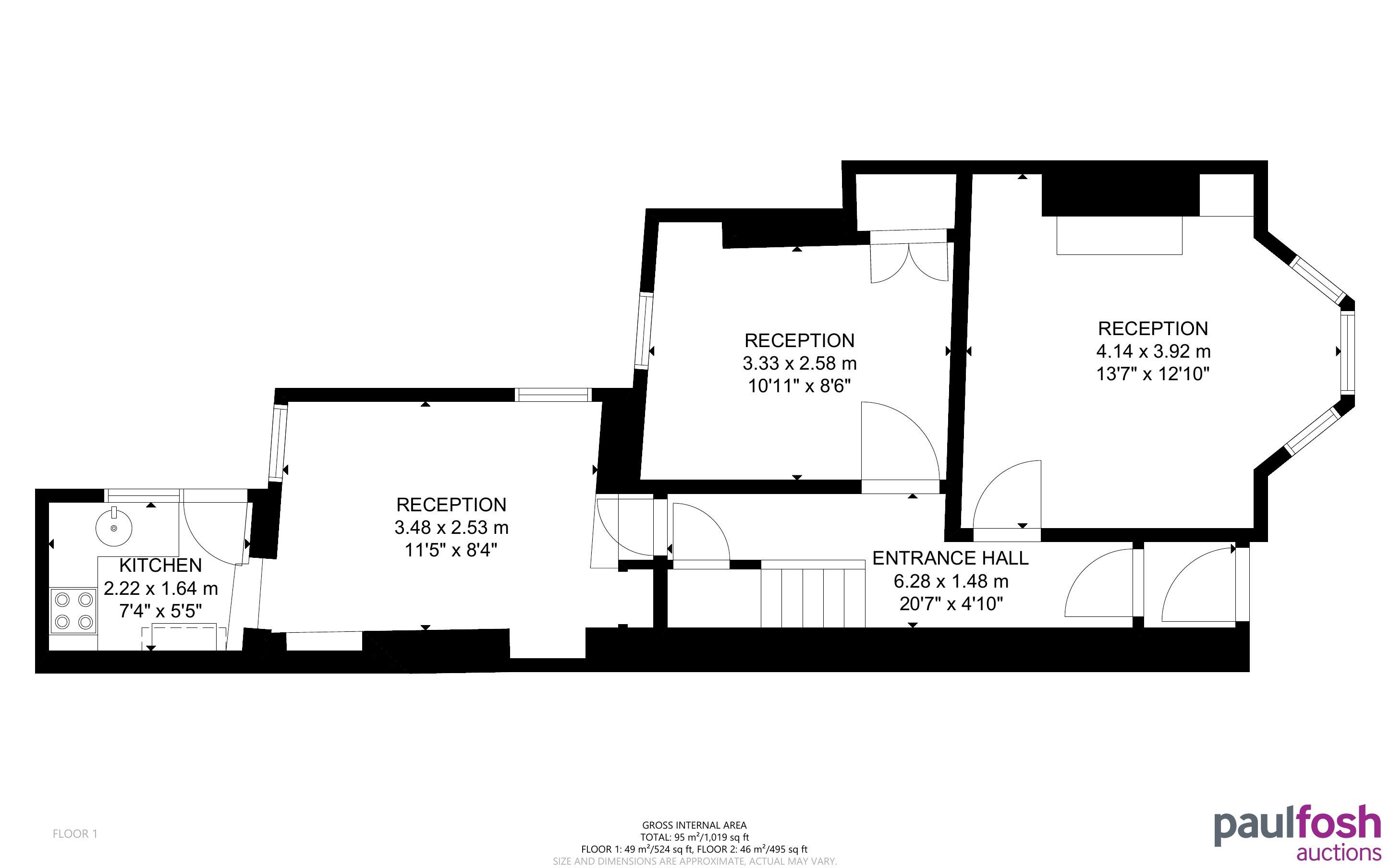
Ground Floor: Entrance, 3 reception rooms, Kitchen
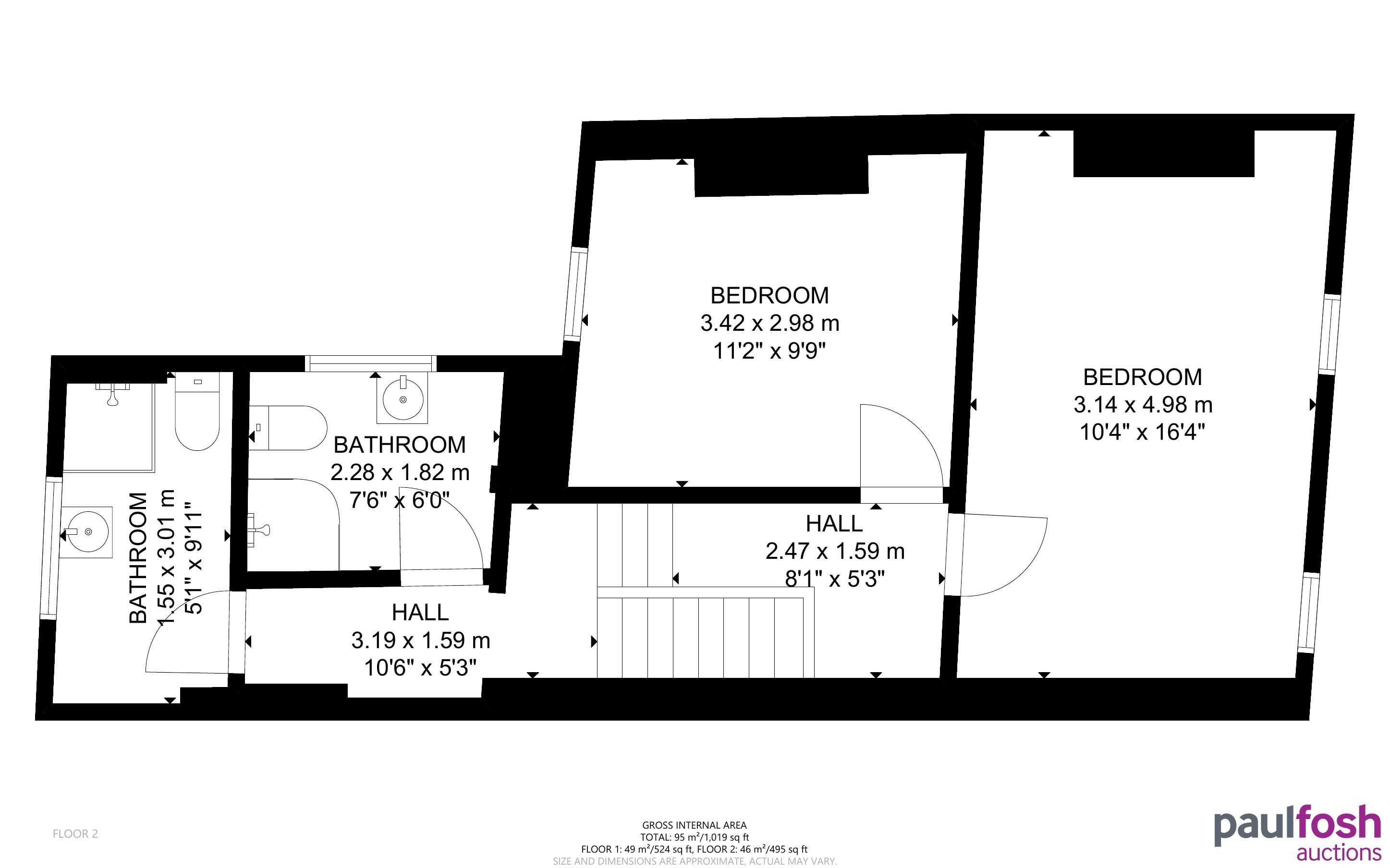
First Floor: Landing, 2 bedrooms, shower room/wc x 2
Outside: Outside forecourt and Enclosed rear garden with storage shed.
C
To be sold with vacant possession but most recently let at £700 pcm but with scope to increase with some improvements
INVESTORS: If you are looking for assistance in tenant find and/or management packages, information on rental income/interest potential, we have a Lettings Department that can help you. Please call us on 01633 746800 or email rhys@paulfoshlettings.com for invaluable advice.
Advised Freehold - to be verified by solicitor
Auction fees: The sale of each lot is subject to a buyer’s premium/admin fee of 1.5% of the purchase price (subject to a minimum of £1,500 for sale prices between £1 and £50,000 or subject to a minimum of £2,400 for sale prices of £50,001 upwards) including VAT unless otherwise stated.
Additional costs: The purchase of the property may be subject to (but are not limited to), VAT (if applicable), reimbursement of the seller’s search fees, reimbursement of seller’s legal and/or sales costs, stamp duty/land transaction tax (LTT). Please check accompanying legal pack for further details.
* Generally speaking Guide Prices are provided as an indication of each seller's minimum expectation, i.e. 'The Reserve'. They are not necessarily figures which a property will sell for and may change at any time prior to the auction. Virtually every property will be offered subject to a Reserve (a figure below which the Auctioneer cannot sell the property during the auction) which we expect will be set within the Guide Range or no more than 10% above a single figure Guide.
As a trusted partner of Paul Fosh Auctions, Together could offer the auction finance you need, when you need it. Visit togethermoney.com for more information.
If considering a mortgage, we advise that you inspect and consider the property carefully with your lender before bidding.
By setting a proxy bid, the system will automatically bid on your behalf to maintain your position as the highest bidder, up to your proxy bid amount. If you are outbid, you will be notified via email so you can opt to increase your bid if you so choose.
If two of more users place identical bids, the bid that was placed first takes precedence, and this includes proxy bids.
Another bidder placed an automatic proxy bid greater or equal to the bid you have just placed. You will need to bid again to stand a chance of winning.