Waiting for video...
New guide price £68,000 +
ONLINE AUCTION from 30th AUGUST-1st SEPTEMBER
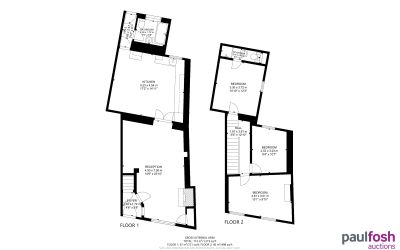
This mid terrace house situated in the high street was previously a shop with flat above and could possibly be re-instated (subject to the necessary planning consents). The property consists of lounge/diner, kitchen/breakfast room, bathroom, en-suite and three bedrooms. There is a small rear courtyard. The property was previously let out at £360 per calendar month, though we estimate a current rental could be around £550 per calendar month. The property is to be sold with vacant possession.
Ton Pentre is a village in the Rhondda Valley in the county borough of Rhondda Cynon Taff, Wales. Historically part of Glamorgan, Ton Pentre, a former industrial coal mining village, is a district of the community of Pentre. Recent regeneration is changing the fortunes of the area. The influence of the M4 corridor and the economic boom in Cardiff has meant that the Rhondda valleys are increasingly becoming commuter zones for the Cardiff and Swansea districts.
Investors: If you are looking for assistance in tenant find and/or management packages, information on rental income/interest potential we have a Lettings Department that can help you. Please call us or email rhys@paulfoshlettings.com for invaluable advice.
VIRTUAL TOUR
Ground floor: Lounge/diner, kitchen/breakfast room, bathroom
First Floor: 3 bedrooms, en-suite
Outside: Rear court yard garden
A
To be sold with vacant possession
Advised Freehold - to be verified by solicitor
Auction fees: The sale of each lot is subject to a buyer’s premium of 1.5% of the purchase price (subject to a minimum of £1,500) including VAT unless otherwise stated.
Additional costs: The purchase of the property may be subject to (but are not limited to), VAT (if applicable), reimbursement of the seller’s search fees, reimbursement of seller’s legal and/or sales costs, stamp duty/land transaction tax (LTT). Please check accompanying legal pack for further details.
* Generally speaking Guide Prices are provided as an indication of each seller's minimum expectation, i.e. 'The Reserve'. They are not necessarily figures which a property will sell for and may change at any time prior to the auction. Virtually every property will be offered subject to a Reserve (a figure below which the Auctioneer cannot sell the property during the auction) which we expect will be set within the Guide Range or no more than 10% above a single figure Guide.
A problem with your internet connection has been detected.
We'll reconnect you as soon as we can.
| User | Amount | Date |
|---|---|---|
| Bidder 3 | £75,500 | 01/09/22 17:54:30 |
| Bidder 2 | £74,000 | 01/09/22 15:34:57 |
| Bidder 1 | £71,000 | 01/09/22 15:17:43 |
| Bidder 2 | £68,000 | 01/09/22 09:44:10 |
| Bidder 1 | £65,000 | 30/08/22 22:04:29 |
Booking is required.
In the event of cancellation or amendment, we may contact you with updates. If you do not register but you travel to a viewing, you do so at your own risk.
As a trusted partner of Paul Fosh Auctions, Together could offer the auction finance you need, when you need it. Visit togethermoney.com for more information.
If considering a mortgage, we advise that you inspect and consider the property carefully with your lender before bidding.
By setting a proxy bid, the system will automatically bid on your behalf to maintain your position as the highest bidder, up to your proxy bid amount. If you are outbid, you will be notified via email so you can opt to increase your bid if you so choose.
If two of more users place identical bids, the bid that was placed first takes precedence, and this includes proxy bids.
Another bidder placed an automatic proxy bid greater or equal to the bid you have just placed. You will need to bid again to stand a chance of winning.