Lot 79 - 27 Abertonllwyd Street, Treherbert, Treorchy, Mid Glamorgan, CF42 5PG

  • Unconditional Online Auction Sale
  • Guide Price* : £69,000+
  • Bedrooms: 3
  • Bathrooms: 1

Lot 79 - House for Owner Occupation/Investment

Description

ONLINE AUCTION from 16th DECEMBER-18th DECEMBER

An updated and improved traditional mid terraced property with modern fitted kitchen with appliances and Bathroom and has been redecorated and new carpets. This is an ideal opportunity for a investor for buy to let, holiday let, cash buyer or for homeownership.

Treherbert has some stunning countryside close by and The Bannau Brycheiniog National Park has good road links for those who love the great outdoors. There are a good range of local amenities and shops in the village with a wider selection in the bustling town of Treorchy which was named as having one of the UK’s best high streets in 2020.

VIRTUAL TOUR

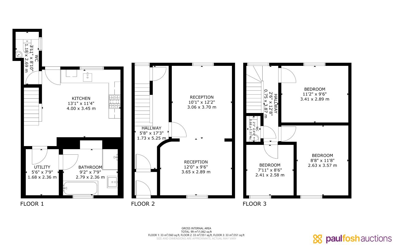
Accommodation

Lower Ground Floor Kitchen, inner hall, bathroom
Ground Floor Entrance hallway, lounge/dining room
First Floor Landing, W/C, 3 bedrooms
OutsideRear Garden with lane access and wonderful hillside views.

Tenancies

To be sold with vacant possession, however should let at £750.00 / £775.00 pcm.

INVESTORS: If you are looking for assistance in tenant find and/or management packages, information on rental income/interest potential we have a Lettings Department that can help you. Please call us or email lettings@paulfoshlettings.com for invaluable advice.

Tenure

Advised Freehold - to be verified by solicitor

Auction Fees And Additional Costs

Auction fees: The sale of each lot is subject to a buyer’s premium/admin fee of 1.5% of the purchase price (subject to a minimum of £1,500 for sale prices between £1 and £50,000 or subject to a minimum of £2,400 for sale prices of £50,001 upwards) including VAT unless otherwise stated.

Additional costs: The purchase of the property may be subject to (but are not limited to), VAT (if applicable), reimbursement of the seller’s search fees, reimbursement of seller’s legal and/or sales costs, stamp duty/land transaction tax (LTT). Please check accompanying legal pack for further details.

* Generally speaking Guide Prices are provided as an indication of each seller's minimum expectation, i.e. 'The Reserve'. They are not necessarily figures which a property will sell for and may change at any time prior to the auction. Virtually every property will be offered subject to a Reserve (a figure below which the Auctioneer cannot sell the property during the auction) which we expect will be set within the Guide Range or no more than 10% above a single figure Guide.

Loading the bidding panel...

Want Auction updates? Sign up here

Viewing

Paul Fosh Auctions
01633 254044

Office Contact

Olivia Williams
01633 254044

Documents

Related Documents

Auction Finance

As a trusted partner of Paul Fosh Auctions, Together could offer the auction finance you need, when you need it. Visit togethermoney.com for more information.

If considering a mortgage, we advise that you inspect and consider the property carefully with your lender before bidding.

Follow