Lot 78 - 58 Tyntyla Road, Ystrad, Pentre, Mid Glamorgan, CF41 7SD

  • Unconditional Online Auction Sale
  • Guide Price* : £90,000+
  • Bedrooms: 3
  • Bathrooms: 1

Addendum

*Reduced Guide and Reserve*

View a Walkthrough of the Property

Lot 78 - House for Owner Occupier/Investment

Description

ONLINE AUCTION from 16th DECEMBER - 18th DECEMBER 2025

An elevated detached house benefitting from far reaching views to the front. The property, needing modernisation, provides two reception rooms, kitchen, utility room and storeroom, three bedrooms and bathroom. There is double glazing/gas central heating (not tested). There is a terraced front garden with decked area and the terraced rear garden has rear access. The property is to be sold with vacant possession. Once modernised we anticipate a rental of approximately £825 pcm.

The property is within close proximity to Gelli & Tonypandy town centres. Tonypandy town centre includes a wide range of shops. The local primary schools are Pontrhondda Primary school & Bodringallt Primary School with the local high school being Ysgol Nantgwyn. Excellent transport links via rail railway stations at Ystrad Rhondda Station & Llwynypia Station plus easy access to the A470/M4 motorway.

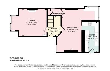
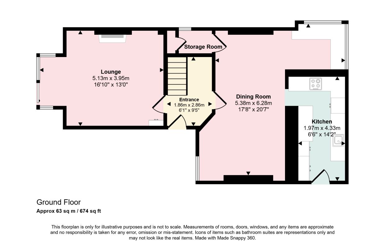
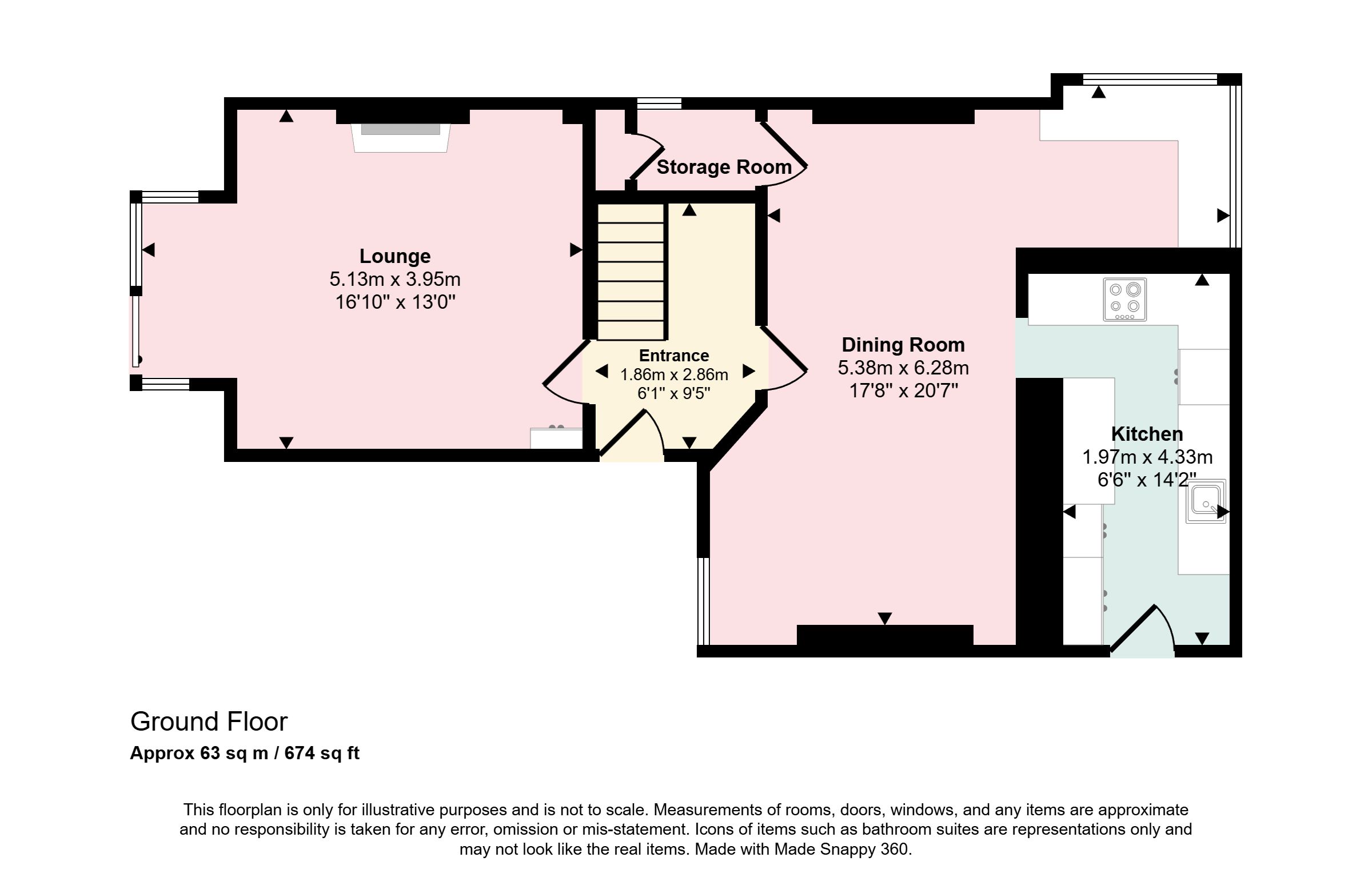
Accommodation

Ground Floor Lounge, dining room, kitchen, utility room and storeroom

First Floor 3 Bedrooms and bathroom

Outside Front terraced garden with decked area, Rear terraced garden with rear access

Tenancies

To be sold with vacant possession

INVESTORS: If you are looking for assistance in tenant find and/or management packages, information on rental income/interest potential we have a Lettings Department that can help you. Please call us or email sarah@paulfoshlettings.com for invaluable advice.

Tenure

Advised Freehold - to be verified by solicitor

Auction Fees And Additional Costs

Auction fees: The sale of each lot is subject to a buyer’s premium/admin fee of 1.5% of the purchase price (subject to a minimum of £1,500 for sale prices between £1 and £50,000 or subject to a minimum of £2,400 for sale prices of £50,001 upwards) including VAT unless otherwise stated.

Additional costs: The purchase of the property may be subject to (but are not limited to), VAT (if applicable), reimbursement of the seller’s search fees, reimbursement of seller’s legal and/or sales costs, stamp duty/land transaction tax (LTT). Please check accompanying legal pack for further details.

* Generally speaking Guide Prices are provided as an indication of each seller's minimum expectation, i.e. 'The Reserve'. They are not necessarily figures which a property will sell for and may change at any time prior to the auction. Virtually every property will be offered subject to a Reserve (a figure below which the Auctioneer cannot sell the property during the auction) which we expect will be set within the Guide Range or no more than 10% above a single figure Guide.

Loading the bidding panel...

Want Auction updates? Sign up here

Viewing

Paul Fosh Auctions
01633 254044

Office Contact

Documents

Related Documents

Virtual Tour

Virtual Tour

Auction Finance

As a trusted partner of Paul Fosh Auctions, Together could offer the auction finance you need, when you need it. Visit togethermoney.com for more information.

If considering a mortgage, we advise that you inspect and consider the property carefully with your lender before bidding.

Follow