ONLINE AUCTION from 24th JUNE - 26th JUNE 2025
A substantial commercial unit formerly used as a bakehouse.
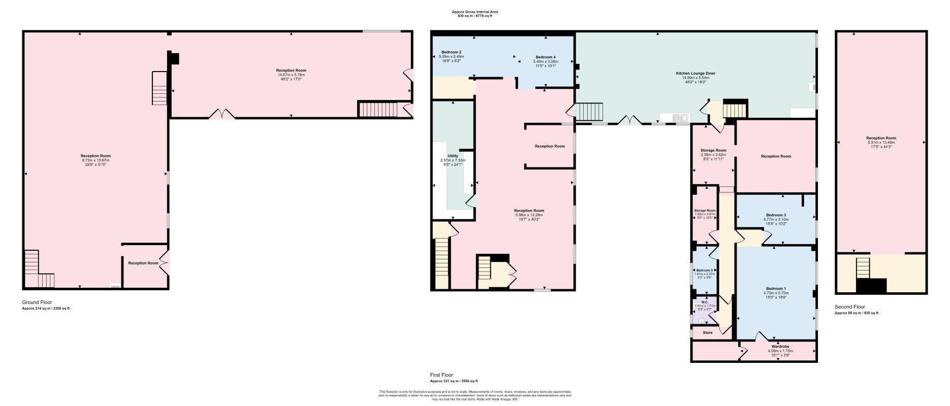
The ground floor of the property is comprised of two large open rooms. The first floor is comprised of a number of ancillary space. There is also a former 2/3 bedroom flat which has previously been used as owners accommodation. The flat can be accessed from inside the bakehouse but also benefits from its own seperate access.
There is head height attic space, which may provide scope for development subject to the relevant consents.
There is a courtyard at the front of the property which provides parking for 2+ cars.
Located in the town of Abertillery this property is situated to west of Park Place one of the main high streets in the area. There are a number of independent and national retailers within close proximity including Greggs, Boots and Iceland.
The property is located in a cul-de-sac of residential buildings, with mixed use developments in close proximity.
The property benefits from gas, water and electric (not tested).
We have been advised that the rateable value for this premises is £8,800, the property is ‘workshop and premises’.
VIRTUAL TOUR
| Floor | Description | Area Sq Ft | Area Sq M |
|---|---|---|---|
| Ground Floor | Print Room 1 | 1429.26 | 132.78 |
| Print Room 2 | 851.37 | 79.09 | |
| First Floor (Bakehouse) | Print Room 3 | 852.25 | 79.17 |
| Room 1 | 314.59 | 29.22 | |
| Room 2 | 182.05 | 16.91 | |
| Room 3 | 55.37 | 5.14 | |
| Room 4 | 48.88 | 4.54 | |
| WC | |||
| Room 5 | 25.11 | 2.33 | |
| Dark Room 1 | 117.97 | 10.95 | |
| Dark Room 2 | 49.8 | 4.62 | |
| Print Room 4 | 856.9 | 79.60 | |
| Office | 206.19 | 19.15 | |
| Attic | 943.5 | 87.65 |
To be sold with vacant possession
INVESTORS: If you are looking for assistance in tenant find and/or management packages, information on rental income/interest potential we have a Lettings Department that can help you. Please call us or email lettings@paulfoshlettings.com for invaluable advice.
Advised Freehold - to be verified by solicitor
Auction fees: The sale of each lot is subject to a buyer’s premium/admin fee of 1.5% of the purchase price (subject to a minimum of £1,500 for sale prices between £1 and £50,000 or subject to a minimum of £2,400 for sale prices of £50,001 upwards) including VAT unless otherwise stated.
Additional costs: The purchase of the property may be subject to (but are not limited to), VAT (if applicable), reimbursement of the seller’s search fees, reimbursement of seller’s legal and/or sales costs, stamp duty/land transaction tax (LTT). Please check accompanying legal pack for further details.
* Generally speaking Guide Prices are provided as an indication of each seller's minimum expectation, i.e. 'The Reserve'. They are not necessarily figures which a property will sell for and may change at any time prior to the auction. Virtually every property will be offered subject to a Reserve (a figure below which the Auctioneer cannot sell the property during the auction) which we expect will be set within the Guide Range or no more than 10% above a single figure Guide.
As a trusted partner of Paul Fosh Auctions, Together could offer the auction finance you need, when you need it. Visit togethermoney.com for more information.
If considering a mortgage, we advise that you inspect and consider the property carefully with your lender before bidding.
By setting a proxy bid, the system will automatically bid on your behalf to maintain your position as the highest bidder, up to your proxy bid amount. If you are outbid, you will be notified via email so you can opt to increase your bid if you so choose.
If two of more users place identical bids, the bid that was placed first takes precedence, and this includes proxy bids.
Another bidder placed an automatic proxy bid greater or equal to the bid you have just placed. You will need to bid again to stand a chance of winning.