Waiting for video...
ONLINE AUCTION from 24th JUNE-26th JUNE
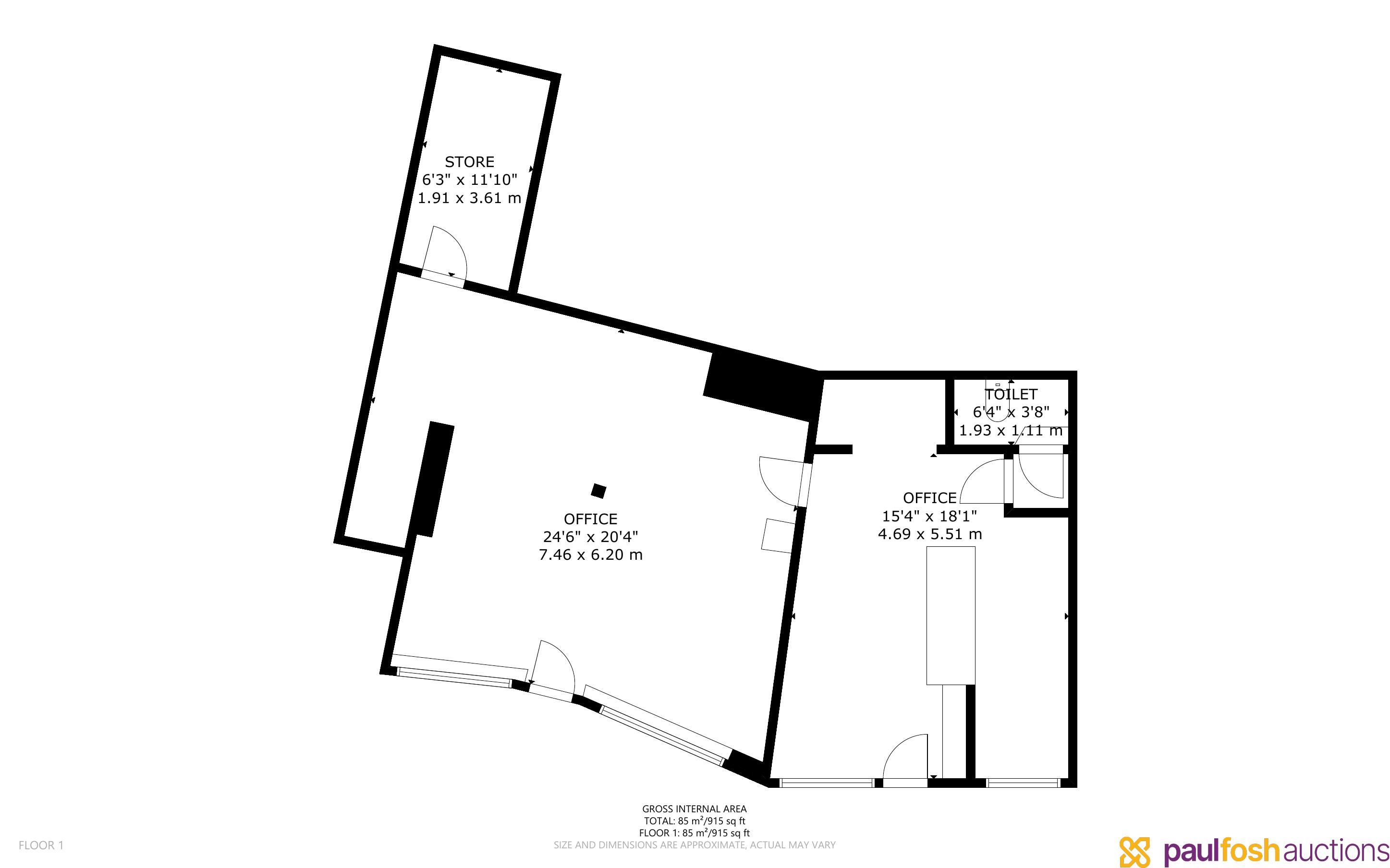
A double fronted mixed use residential/commercial building situated on the corner of St Thomas Square, a perfect turn key investment. The freehold property offers a large double commercial unit to the ground floor current let for £750 pcm on a 5 year lease. The unit would increase to £950 pcm on renewal of a new lease.
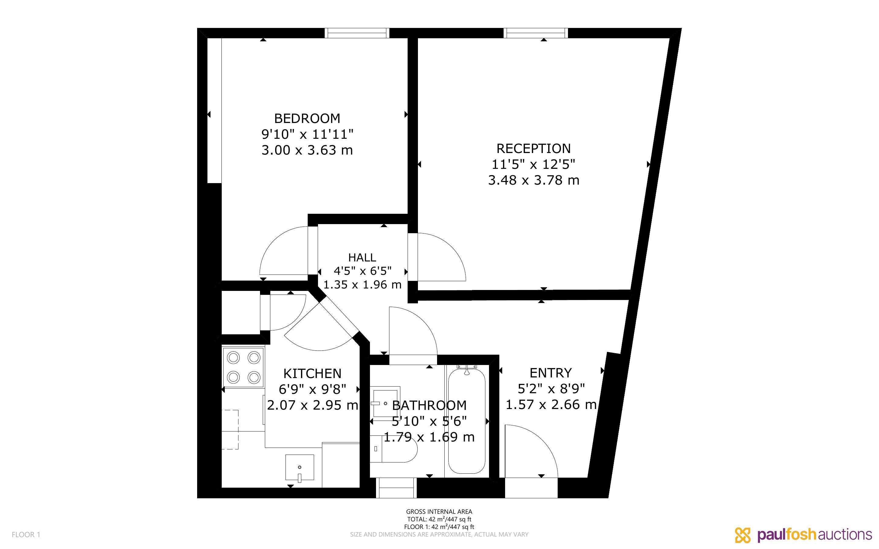
The uppers benefit from 2 x 1 bed apartments refurbished to a high standard, to include entrance hallway, living room, kitchen, bathroom and bedroom. Both flats are currently vacant but we anticipate a monthly rent of £650 PCM. The flats are accessed via their own entrance to the side of the commercial unit and into an enclosed rear garden, that could be, subject to planning permission be further developed.
The anticipated monthly income is £2,020 pcm.
The flats are perfect for a long term rental contract, air bnb or second home.
Monmouth offers a comprehensive range of amenities with both local and nationwide shops and restaurants to include Marks & Spencer and Waitrose. Monmouth town boasts exceptionally impressive schooling, both junior and senior, including the renowned Haberdashers Schools and Monmouth Comprehensive, both within walking distance. The town of Monmouth is situated on the River Wye amidst the rolling Monmouthshire countryside, whilst offering exceptional major road network links along the A449, towards the M50 in the north and M4 to the south.
VIRTUAL TOUR
Commercial unit is let at £750 pcm on a 5 year lease
Two flats are vacant
Advised Freehold - to be verified by solicitor
Auction fees: The sale of each lot is subject to a buyer’s premium/admin fee of 1.5% of the purchase price (subject to a minimum of £1,500 for sale prices between £1 and £50,000 or subject to a minimum of £2,400 for sale prices of £50,001 upwards) including VAT unless otherwise stated.
Additional costs: The purchase of the property may be subject to (but are not limited to), VAT (if applicable), reimbursement of the seller’s search fees, reimbursement of seller’s legal and/or sales costs, stamp duty/land transaction tax (LTT). Please check accompanying legal pack for further details.
* Generally speaking Guide Prices are provided as an indication of each seller's minimum expectation, i.e. 'The Reserve'. They are not necessarily figures which a property will sell for and may change at any time prior to the auction. Virtually every property will be offered subject to a Reserve (a figure below which the Auctioneer cannot sell the property during the auction) which we expect will be set within the Guide Range or no more than 10% above a single figure Guide.
As a trusted partner of Paul Fosh Auctions, Together could offer the auction finance you need, when you need it. Visit togethermoney.com for more information.
If considering a mortgage, we advise that you inspect and consider the property carefully with your lender before bidding.
By setting a proxy bid, the system will automatically bid on your behalf to maintain your position as the highest bidder, up to your proxy bid amount. If you are outbid, you will be notified via email so you can opt to increase your bid if you so choose.
If two of more users place identical bids, the bid that was placed first takes precedence, and this includes proxy bids.
Another bidder placed an automatic proxy bid greater or equal to the bid you have just placed. You will need to bid again to stand a chance of winning.