Waiting for video...
New guide price
Please see updated description:
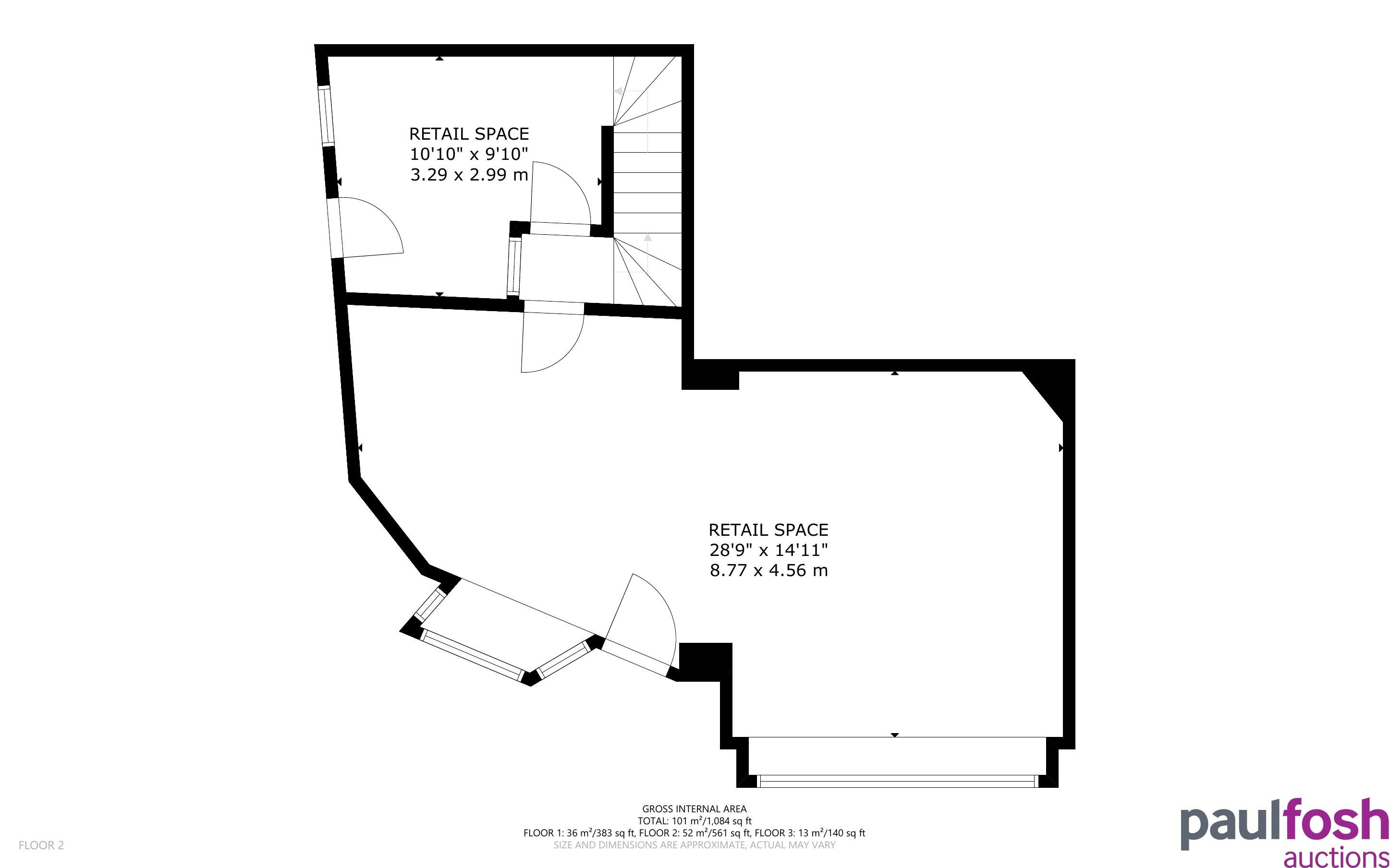
Ground : Shop retail area, further retail area. Stairs to FF & Basement
Basement - storage area and storage room
Top Floor storage area, WC
ONLINE AUCTION from 27th AUGUST-29th AUGUST
A substantial building that comprises two refurbished and modernised self-contained flats and a retail unit. The property is situated in a prominent position within the village of Resolven which is ideally situated for access to the A470, M4 and the nearby town of Neath.
The flats have been refurbished to a high standard to include new kitchen and bathroom, UPVC double glazing and gas central heating (not tested). The retail unit would be ideal for a number of uses or potential conversion to residential (subject to any necessary planning consents).
VIRTUAL TOUR
Please note no internal inspection has been carried out the flats prior to going to print however we are advised it comprises:
Flat 1: Ground floor, lounge/kitchen, bedroom and bathroom
Flat 2: First floor, landing, lounge, bedroom, kitchen, bathroom
Ground: Shop retail area, further retail area. Stairs to FF & Basement
Basement: Storage area and storage room
Top floor storage area, WC
Outside: Rear yard with parking for approximately 3/4 cars
Flat 1 (31a) is let at £350 pcm £4,200 pa
Flat 2 (31b) is let at £300 pcm £3,600 pa
Shop was previously let at £525.00 pcm £6,300 pa
Overall income when fully let £14,100 (p/a)
Advised Freehold - to be verified by solicitor
Auction fees: The sale of each lot is subject to a buyer’s premium/admin fee of 1.5% of the purchase price (subject to a minimum of £1,500 for sale prices between £1 and £50,000 or subject to a minimum of £2,400 for sale prices of £50,001 upwards) including VAT unless otherwise stated.
Additional costs: The purchase of the property may be subject to (but are not limited to), VAT (if applicable), reimbursement of the seller’s search fees, reimbursement of seller’s legal and/or sales costs, stamp duty/land transaction tax (LTT). Please check accompanying legal pack for further details.
* Generally speaking Guide Prices are provided as an indication of each seller's minimum expectation, i.e. 'The Reserve'. They are not necessarily figures which a property will sell for and may change at any time prior to the auction. Virtually every property will be offered subject to a Reserve (a figure below which the Auctioneer cannot sell the property during the auction) which we expect will be set within the Guide Range or no more than 10% above a single figure Guide.
As a trusted partner of Paul Fosh Auctions, Together could offer the auction finance you need, when you need it. Visit togethermoney.com for more information.
If considering a mortgage, we advise that you inspect and consider the property carefully with your lender before bidding.
By setting a proxy bid, the system will automatically bid on your behalf to maintain your position as the highest bidder, up to your proxy bid amount. If you are outbid, you will be notified via email so you can opt to increase your bid if you so choose.
If two of more users place identical bids, the bid that was placed first takes precedence, and this includes proxy bids.
Another bidder placed an automatic proxy bid greater or equal to the bid you have just placed. You will need to bid again to stand a chance of winning.