Waiting for video...
ONLINE AUCTION from 27th AUGUST-29th AUGUST
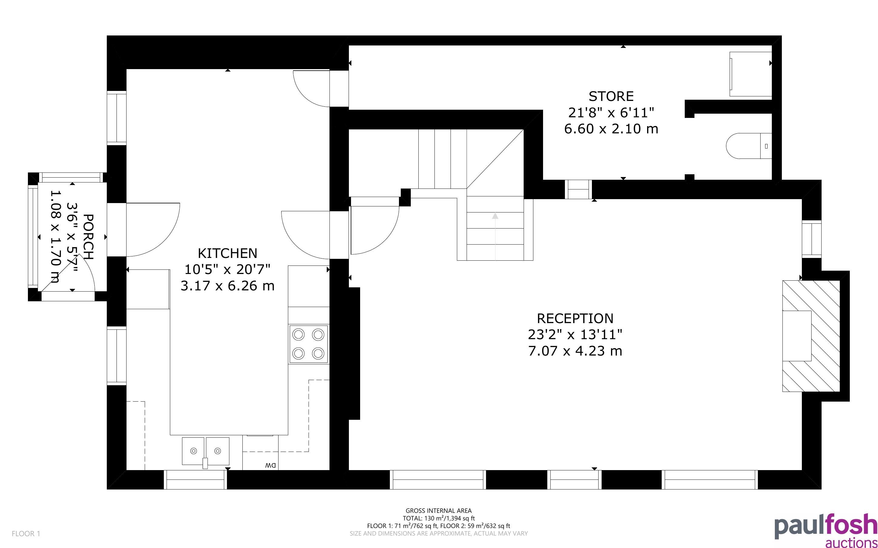
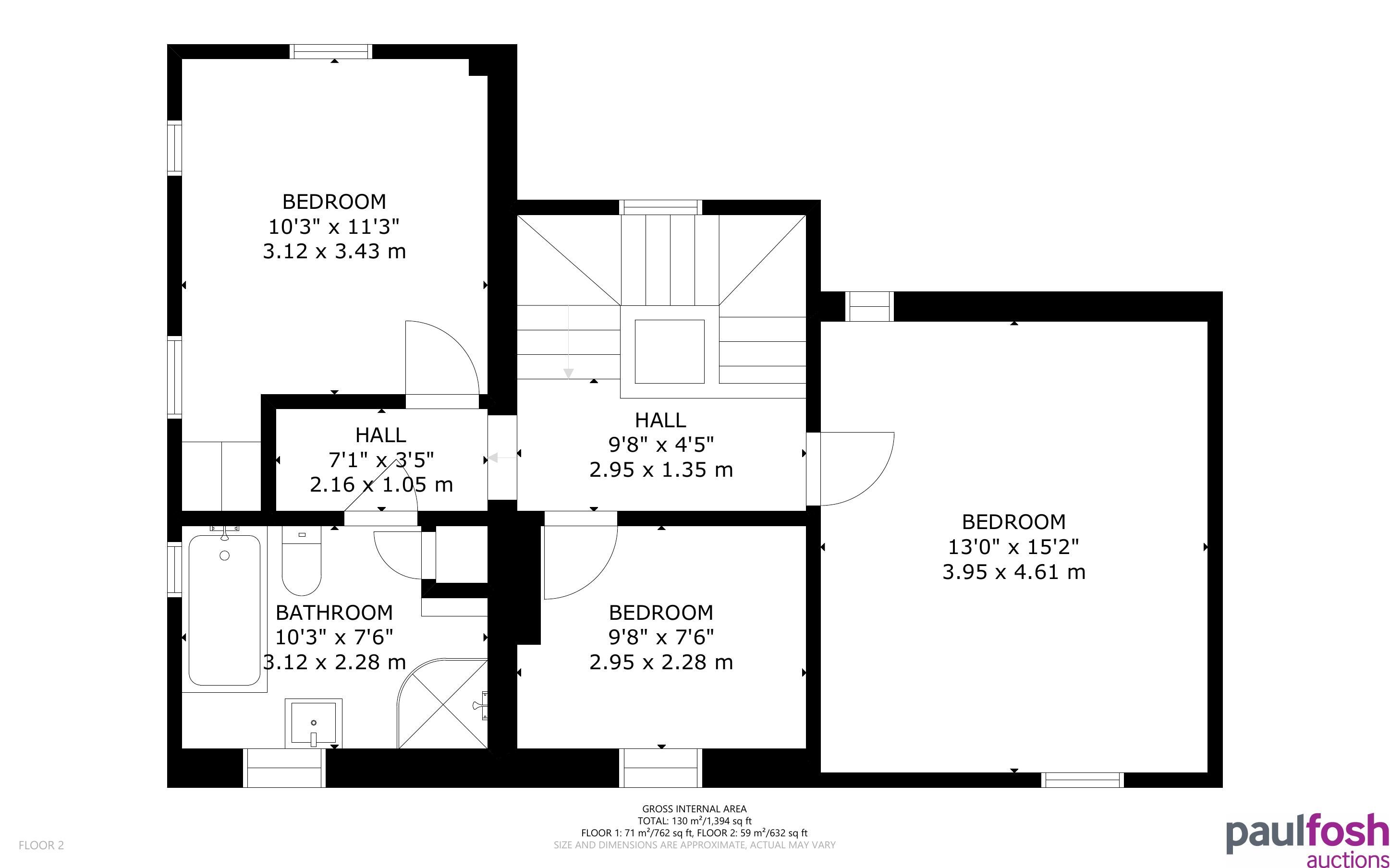
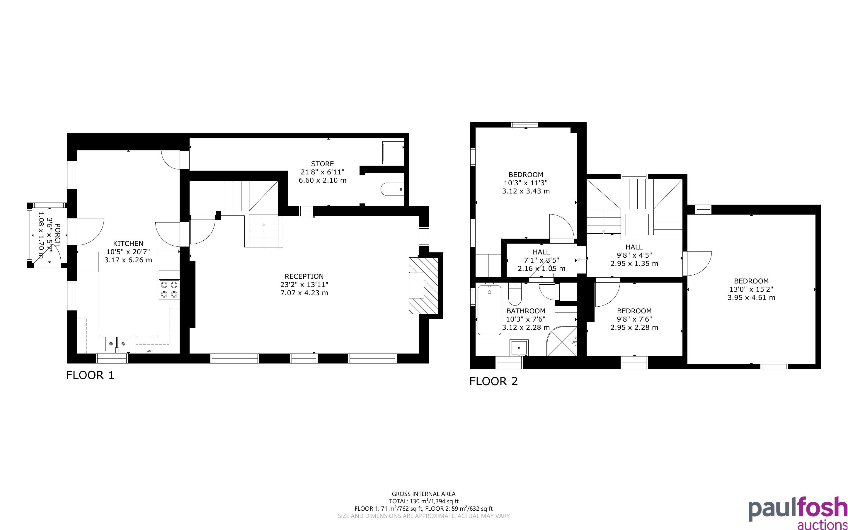
Situated in the most sought after area of Newport being near Ridgeway and adjacent to and with direct access to the Nature Reserve leading to the canal, this detached lodge believed to have be the Gate keepers cottage sits in private grounds and benefits from views, covered outhouse, wc/storage and detached garage with electric up and over door (not tested). The property offers lounge with fireplace, kitchen/dining room with appliances, under stairs utility area, cloakroom, three bedrooms and bathroom. The established gardens offer a great deal of privacy.
Newport is a rapidly emerging desirable living destination, a city and county borough in Wales, situated on the River Usk close to its confluence with the Severn Estuary, 12 mi (19 km) northeast of Cardiff. Newport is the third-largest authority with city status in Wales and has seen extensive re-generation in recent years. Excellent rail and M4 transport links to Bristol, Cardiff and London.
Virtual Tour:
Ground Floor: Lounge, kitchen/dining room, under stairs utility area
First Floor: 3 bedrooms, bathroom
Outside: Established private gardens, detached garage, attached covered outhouse/storage room/wc area
F
Note - This property is unregistered for council tax.
The property is to be sold with vacant possession. We anticipate a rental of approximately £1500 pcm.
INVESTORS: If you are looking for assistance in tenant find and/or management packages, information on rental income/interest potential we have a Lettings Department that can help you. Please call us or email lettings@paulfoshlettings.com for invaluable advice.
Advised Freehold - to be verified by solicitor
Auction fees: The sale of each lot is subject to a buyer’s premium/admin fee of 1.5% of the purchase price (subject to a minimum of £1,500 for sale prices between £1 and £50,000 or subject to a minimum of £2,400 for sale prices of £50,001 upwards) including VAT unless otherwise stated.
Additional costs: The purchase of the property may be subject to (but are not limited to), VAT (if applicable), reimbursement of the seller’s search fees, reimbursement of seller’s legal and/or sales costs, stamp duty/land transaction tax (LTT). Please check accompanying legal pack for further details.
* Generally speaking Guide Prices are provided as an indication of each seller's minimum expectation, i.e. 'The Reserve'. They are not necessarily figures which a property will sell for and may change at any time prior to the auction. Virtually every property will be offered subject to a Reserve (a figure below which the Auctioneer cannot sell the property during the auction) which we expect will be set within the Guide Range or no more than 10% above a single figure Guide.
As a trusted partner of Paul Fosh Auctions, Together could offer the auction finance you need, when you need it. Visit togethermoney.com for more information.
If considering a mortgage, we advise that you inspect and consider the property carefully with your lender before bidding.
By setting a proxy bid, the system will automatically bid on your behalf to maintain your position as the highest bidder, up to your proxy bid amount. If you are outbid, you will be notified via email so you can opt to increase your bid if you so choose.
If two of more users place identical bids, the bid that was placed first takes precedence, and this includes proxy bids.
Another bidder placed an automatic proxy bid greater or equal to the bid you have just placed. You will need to bid again to stand a chance of winning.