Lot 25 - Rosebank, Neville Terrace, Aberdare, Mid Glamorgan, CF44 8DP

  • Unconditional Online Auction Sale
  • Guide Price* : £150,000+
  • Bedrooms: 3

Lot 25 - Bungalow for Owner Occupation /Investment

Description

ONLINE AUCTION from 30th JANUARY-1st FEBRUARY

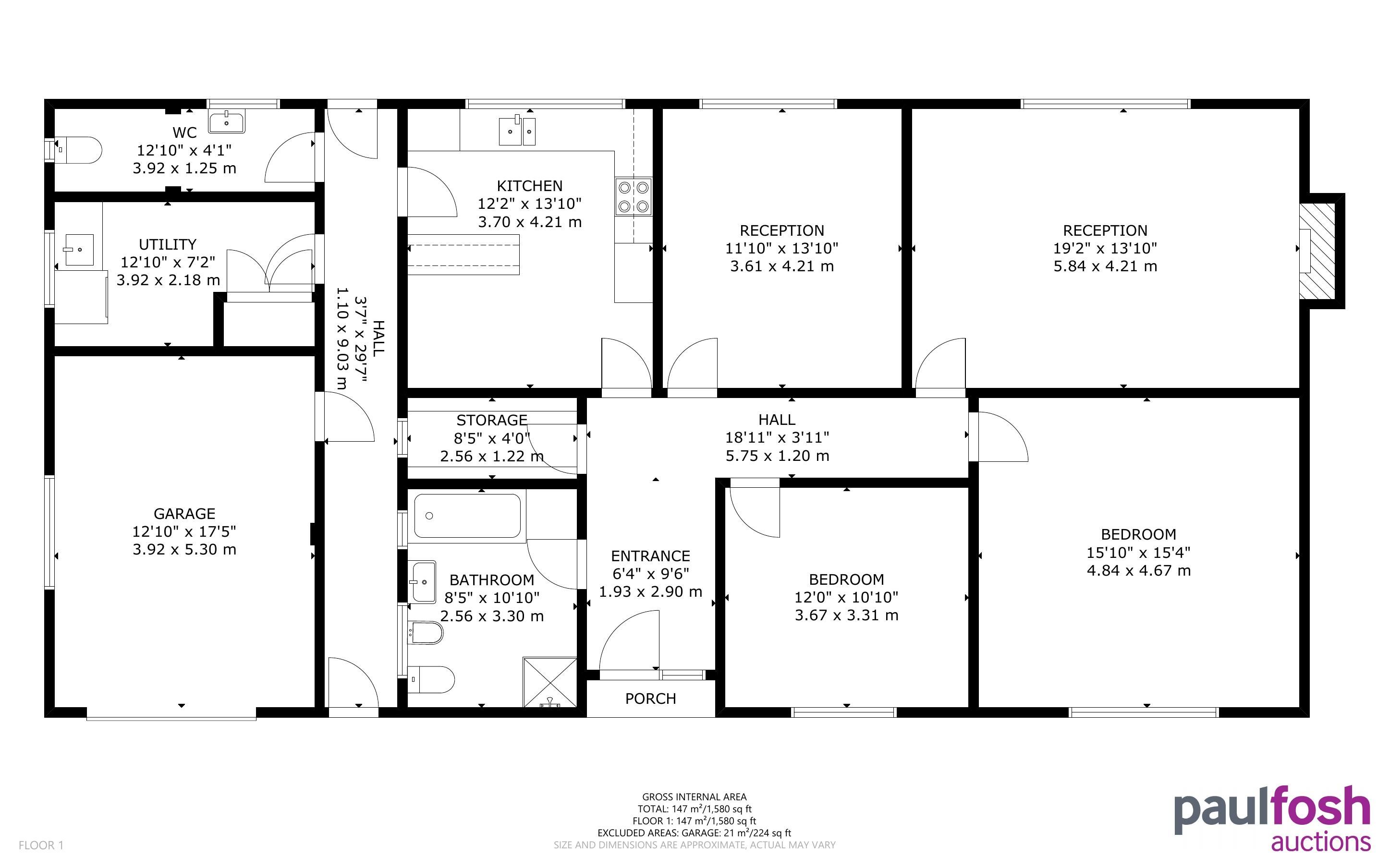
A substantial three bedroomed detached bungalow with spacious garage. The property has been well maintained over the years and benefits from UPVC double glazing and gas central heating (not tested) and offers scope to improve further.

There is very generous accommodation which includes a spacious lounge and kitchen/diner. The property is ideally situated for local amenities and shops and schools whilst also offering easy access to Aberdare Town centre and good link roads to both the A470 and A465.

Virtual Tour:

Accommodation

Ground Floor: Hallway, bathroom, bedroom 3/dining room,walk in storage room, fitted kitchen/diner, sitting room,
2 bedrooms, enclosed passage, utility room/laundry room, cloakroom
Outside: Double wrought iron gates gives access to entrance drive and Garage. Paved front garden. Enclosed rear garden with excellent size raised paved patio enjoying views of Town Centre.

Council Tax Band

E

Tenancies

To be sold with vacant possession

Tenure

Advised Freehold - to be verified by solicitor

Auction Fees And Additional Costs

Auction fees: The sale of each lot is subject to a buyer’s premium/admin fee of 1.5% of the purchase price (subject to a minimum of £1,500 for sale prices between £1 and £50,000 or subject to a minimum of £2,400 for sale prices of £50,001 upwards) including VAT unless otherwise stated.

Additional costs: The purchase of the property may be subject to (but are not limited to), VAT (if applicable), reimbursement of the seller’s search fees, reimbursement of seller’s legal and/or sales costs, stamp duty/land transaction tax (LTT). Please check accompanying legal pack for further details.

* Generally speaking Guide Prices are provided as an indication of each seller's minimum expectation, i.e. 'The Reserve'. They are not necessarily figures which a property will sell for and may change at any time prior to the auction. Virtually every property will be offered subject to a Reserve (a figure below which the Auctioneer cannot sell the property during the auction) which we expect will be set within the Guide Range or no more than 10% above a single figure Guide.

Loading the bidding panel...

Want Auction updates? Sign up here

Viewing

Paul Fosh Auctions
01633 254044

Joint Agent

Mannings Estate Agents
01685 878000

Office Contact

Sean Roper
01633254044

Documents

Related Documents

Auction Finance

As a trusted partner of Paul Fosh Auctions, Together could offer the auction finance you need, when you need it. Visit togethermoney.com for more information.

If considering a mortgage, we advise that you inspect and consider the property carefully with your lender before bidding.

Follow