Waiting for video...
The property has been postponed from auction.
ONLINE AUCTION from 30th JANUARY-1st FEBRUARY
An opportunity to acquire two semi detached properties refurbished throughout and currently let and achieving £15,000 per annum making it an ideal investment opportunity.
Both properties offer lounge and newly fitted modern kitchens with three bedrooms and newly fitted bathrooms to the first floor. Both properties benefit from gas central heating (untested) and double glazing.
The property is located just off the high street, lose to local amenities.
The town centre has a wide selection of independent retailers, independent grocers and retailers are also located at Glebeland and Victoria Street. Merthyr Tydfil also offers the UKs biggest purpose built biking resort with 4 new trails added in 2021.
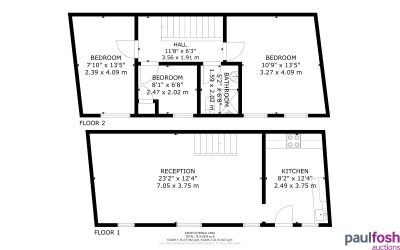
Virtual Tour:
Number 3
Ground Floor: Lounge, kitchen
First Floor: 3 bedrooms, bathroom
Outside: Allocated parking for one vehicle
Number 4
Ground Floor: Lounge, kitchen
First Floor: 3 bedrooms, bathroom
Outside: Allocated parking for one vehicle
Tenanted - Achieving joint income of £15,000 per annum
Advised Freehold - to be verified by solicitor
Auction fees: The sale of each lot is subject to a buyer’s premium/admin fee of 1.5% of the purchase price (subject to a minimum of £1,500 for sale prices between £1 and £50,000 or subject to a minimum of £2,400 for sale prices of £50,001 upwards) including VAT unless otherwise stated.
Additional costs: The purchase of the property may be subject to (but are not limited to), VAT (if applicable), reimbursement of the seller’s search fees, reimbursement of seller’s legal and/or sales costs, stamp duty/land transaction tax (LTT). Please check accompanying legal pack for further details.
* Generally speaking Guide Prices are provided as an indication of each seller's minimum expectation, i.e. 'The Reserve'. They are not necessarily figures which a property will sell for and may change at any time prior to the auction. Virtually every property will be offered subject to a Reserve (a figure below which the Auctioneer cannot sell the property during the auction) which we expect will be set within the Guide Range or no more than 10% above a single figure Guide.
As a trusted partner of Paul Fosh Auctions, Together could offer the auction finance you need, when you need it. Visit togethermoney.com for more information.
If considering a mortgage, we advise that you inspect and consider the property carefully with your lender before bidding.
By setting a proxy bid, the system will automatically bid on your behalf to maintain your position as the highest bidder, up to your proxy bid amount. If you are outbid, you will be notified via email so you can opt to increase your bid if you so choose.
If two of more users place identical bids, the bid that was placed first takes precedence, and this includes proxy bids.
Another bidder placed an automatic proxy bid greater or equal to the bid you have just placed. You will need to bid again to stand a chance of winning.