Waiting for video...
ONLINE AUCTION from 25th JULY-27th JULY
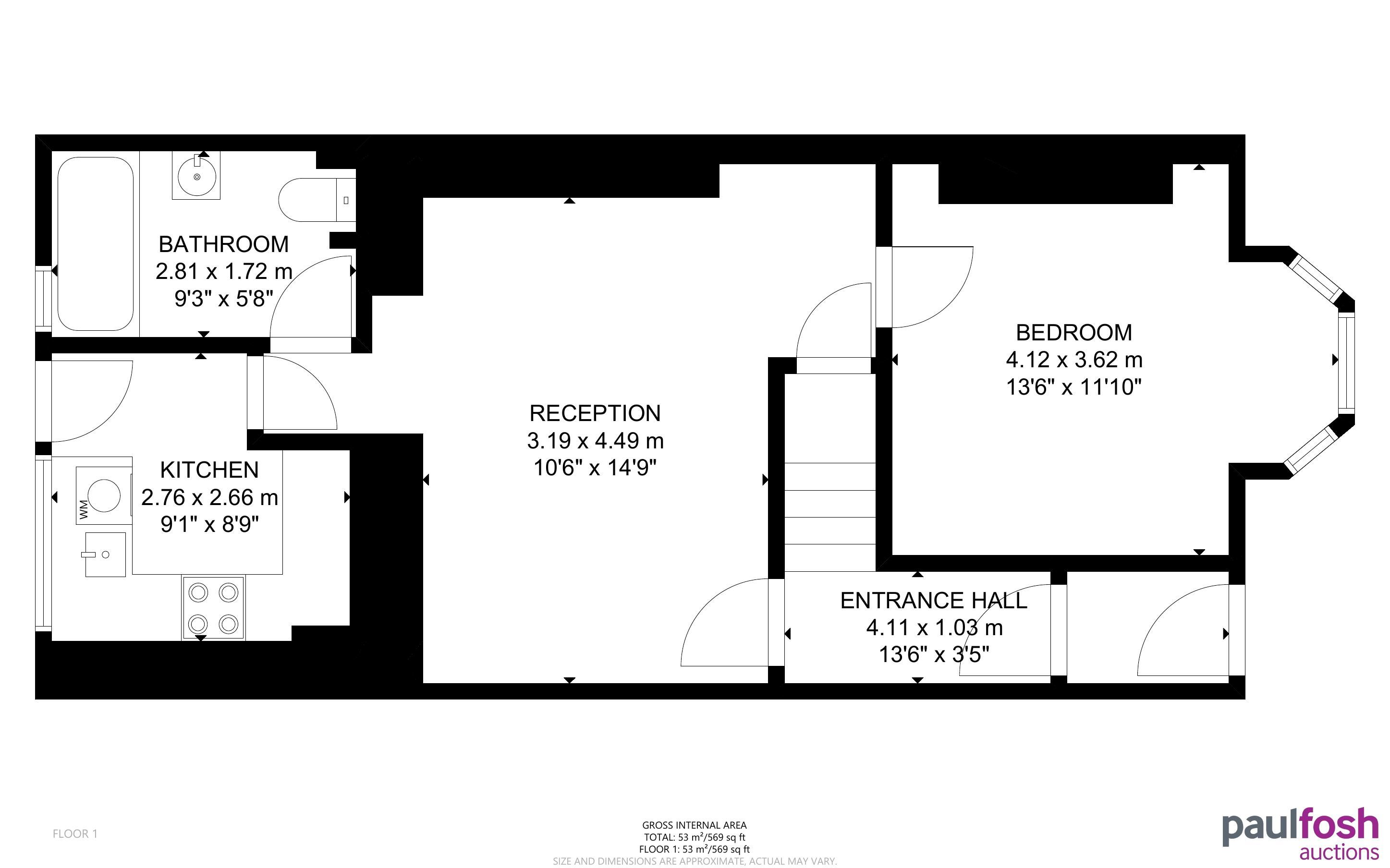
A mid terrace property providing a ground and first floor flat. The ground floor flat provides lounge, kitchen, bathroom and one bedroom. There is a share of the garden and parking to the rear. The first floor flat provides two reception rooms, kitchen, bathroom and one bedroom along with balcony and rear staircase access, share of the garden and rear parking. The ground floor flat is now vacant but was previously let at £380 pcm. The first floor flat is to be sold vacant but was previously let £420pcm.
Milford Haven is a town in Pembrokeshire, Wales. It is situated on the north side of the Milford Haven Waterway, an estuary forming a natural harbour. By 2010, the town's port had become the fourth largest in the United Kingdom in terms of tonnage, and continues its important role in the United Kingdom's energy sector with several oil refineries and one of the biggest LNG terminals in the world. The natural harbour of the Haven was known as a safe port and was exploited for several historical military operations throughout the second millennium.
VIRTUAL TOUR
Ground Floor-Flat A: Lounge, kitchen, bathroom, bedroom
First Floor-Flat B: 2 reception rooms, kitchen, bathroom, bedroom
Outside: Both flats benefit from a share of the rear garden and parking. Flat B has rear access via staircase
A
To be sold with vacant possession
INVESTORS: If you are looking for assistance in tenant find and/or management packages, information on rental income/interest potential we have a Lettings Department that can help you. Please call us or email sarah@paulfoshlettings.com for invaluable advice.
Advised Freehold - to be verified by solicitor
Auction fees: The sale of each lot is subject to a buyer’s premium/admin fee of 1.5% of the purchase price (subject to a minimum of £1,500 for sale prices between £1 and £50,000 or subject to a minimum of £2,400 for sale prices of £50,001 upwards) including VAT unless otherwise stated.
Additional costs: The purchase of the property may be subject to (but are not limited to), VAT (if applicable), reimbursement of the seller’s search fees, reimbursement of seller’s legal and/or sales costs, stamp duty/land transaction tax (LTT). Please check accompanying legal pack for further details.
* Generally speaking Guide Prices are provided as an indication of each seller's minimum expectation, i.e. 'The Reserve'. They are not necessarily figures which a property will sell for and may change at any time prior to the auction. Virtually every property will be offered subject to a Reserve (a figure below which the Auctioneer cannot sell the property during the auction) which we expect will be set within the Guide Range or no more than 10% above a single figure Guide.
As a trusted partner of Paul Fosh Auctions, Together could offer the auction finance you need, when you need it. Visit togethermoney.com for more information.
If considering a mortgage, we advise that you inspect and consider the property carefully with your lender before bidding.
By setting a proxy bid, the system will automatically bid on your behalf to maintain your position as the highest bidder, up to your proxy bid amount. If you are outbid, you will be notified via email so you can opt to increase your bid if you so choose.
If two of more users place identical bids, the bid that was placed first takes precedence, and this includes proxy bids.
Another bidder placed an automatic proxy bid greater or equal to the bid you have just placed. You will need to bid again to stand a chance of winning.