Waiting for video...
ONLINE AUCTION from 25th JULY - 27th JULY
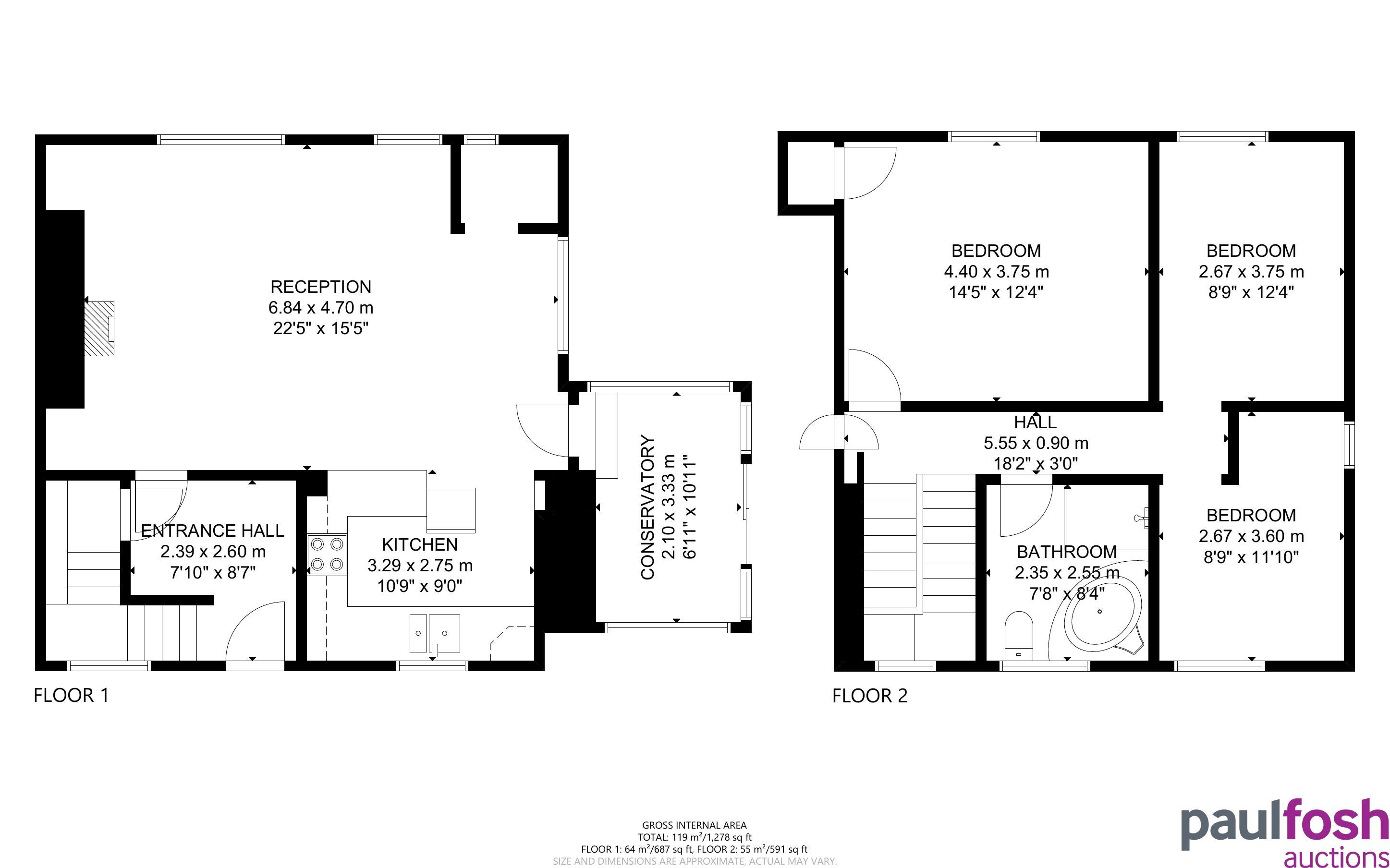
This tucked away end of terrace house (in a block of three) was once a substantial detached property belonging to the church. Having suffered fire damage, the property will require full renovation. Due to the size of the extensive gardens to the side and rear there may be potential to build, subject to the necessary planning consents. The property provides lounge, kitchen, conservatory, three bedrooms, bathroom and off road parking. Access is via a short lane off Chepstow Road (see viewing note). The property is to be sold with vacant possession. We anticipate a rental of approximately £995 pcm.
Newport is a city and county borough in Wales, situated on the River Usk close to its confluence with the Severn Estuary, 12 miles (19 km) north east of Cardiff. Newport is the third largest authority with city status in Wales and has seen extensive re-generation in recent years. Excellent rail and M4 transport links to Bristol, Cardiff and London.
Viewing: By appointment. Access for viewing is via the top of Springfield Drive across the neighbours front gardens. (Lane access off Chepstow Road currently temporarily blocked by vendor)
VIRTUAL TOUR
Ground Floor: Lounge, kitchen, conservatory
First Floor: 3 bedrooms, bathroom
Outside: Large rear and side garden, off road parking
D
To be sold with vacant possession
Investors: If you are looking for assistance in tenant find and/or management packages, information on rental income/interest potential we have a Lettings Department that can help you. Please call us or email sarah@paulfoshlettings.com for invaluable advice.
Advised Freehold - to be verified by solicitor
Auction fees: The sale of each lot is subject to a buyer’s premium/admin fee of 1.5% of the purchase price (subject to a minimum of £1,500 for sale prices between £1 and £50,000 or subject to a minimum of £2,400 for sale prices of £50,001 upwards) including VAT unless otherwise stated.
Additional costs: The purchase of the property may be subject to (but are not limited to), VAT (if applicable), reimbursement of the seller’s search fees, reimbursement of seller’s legal and/or sales costs, stamp duty/land transaction tax (LTT). Please check accompanying legal pack for further details.
* Generally speaking Guide Prices are provided as an indication of each seller's minimum expectation, i.e. 'The Reserve'. They are not necessarily figures which a property will sell for and may change at any time prior to the auction. Virtually every property will be offered subject to a Reserve (a figure below which the Auctioneer cannot sell the property during the auction) which we expect will be set within the Guide Range or no more than 10% above a single figure Guide.
As a trusted partner of Paul Fosh Auctions, Together could offer the auction finance you need, when you need it. Visit togethermoney.com for more information.
If considering a mortgage, we advise that you inspect and consider the property carefully with your lender before bidding.
By setting a proxy bid, the system will automatically bid on your behalf to maintain your position as the highest bidder, up to your proxy bid amount. If you are outbid, you will be notified via email so you can opt to increase your bid if you so choose.
If two of more users place identical bids, the bid that was placed first takes precedence, and this includes proxy bids.
Another bidder placed an automatic proxy bid greater or equal to the bid you have just placed. You will need to bid again to stand a chance of winning.