Waiting for video...
ONLINE AUCTION from 25th JULY-27th JULY
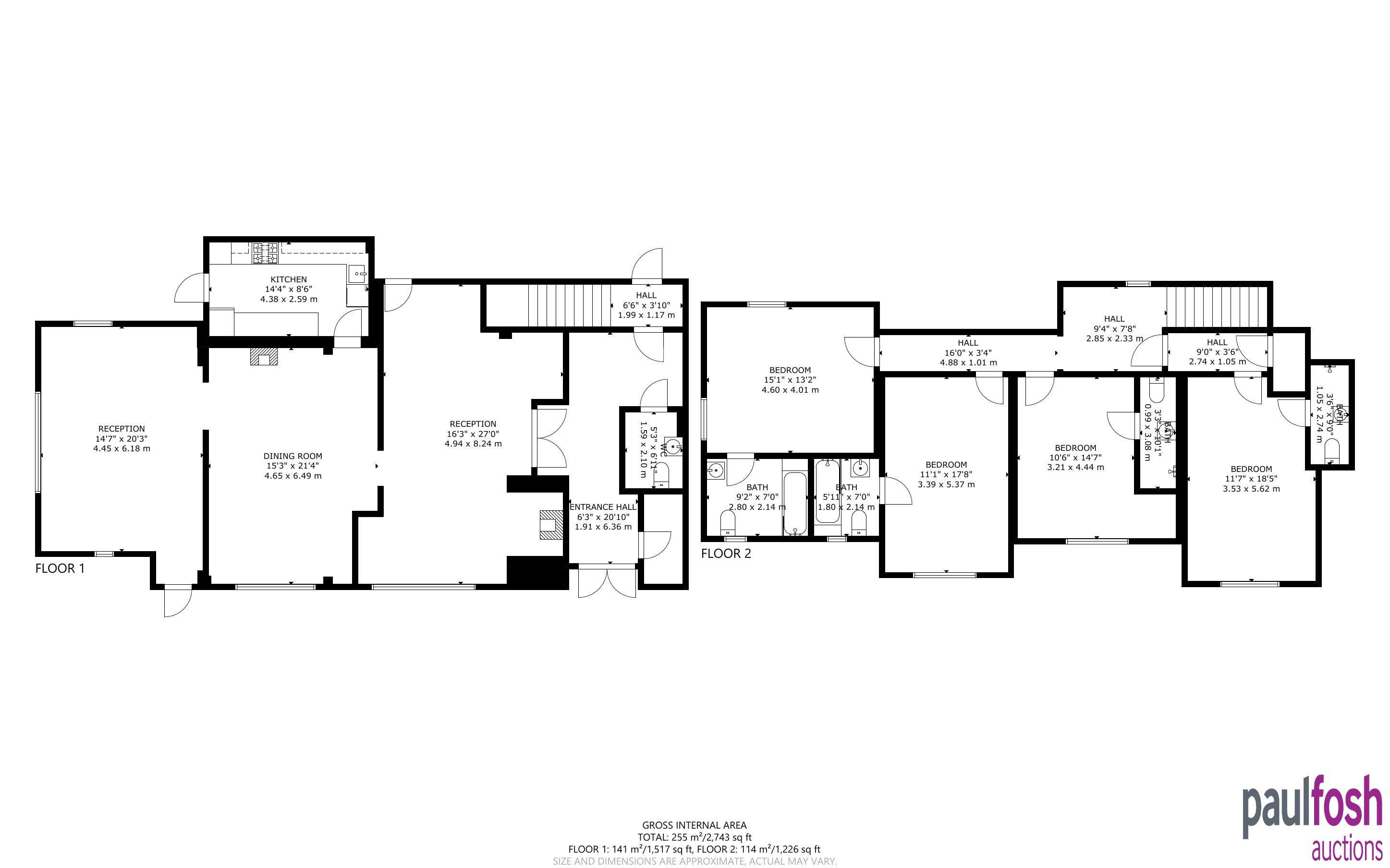
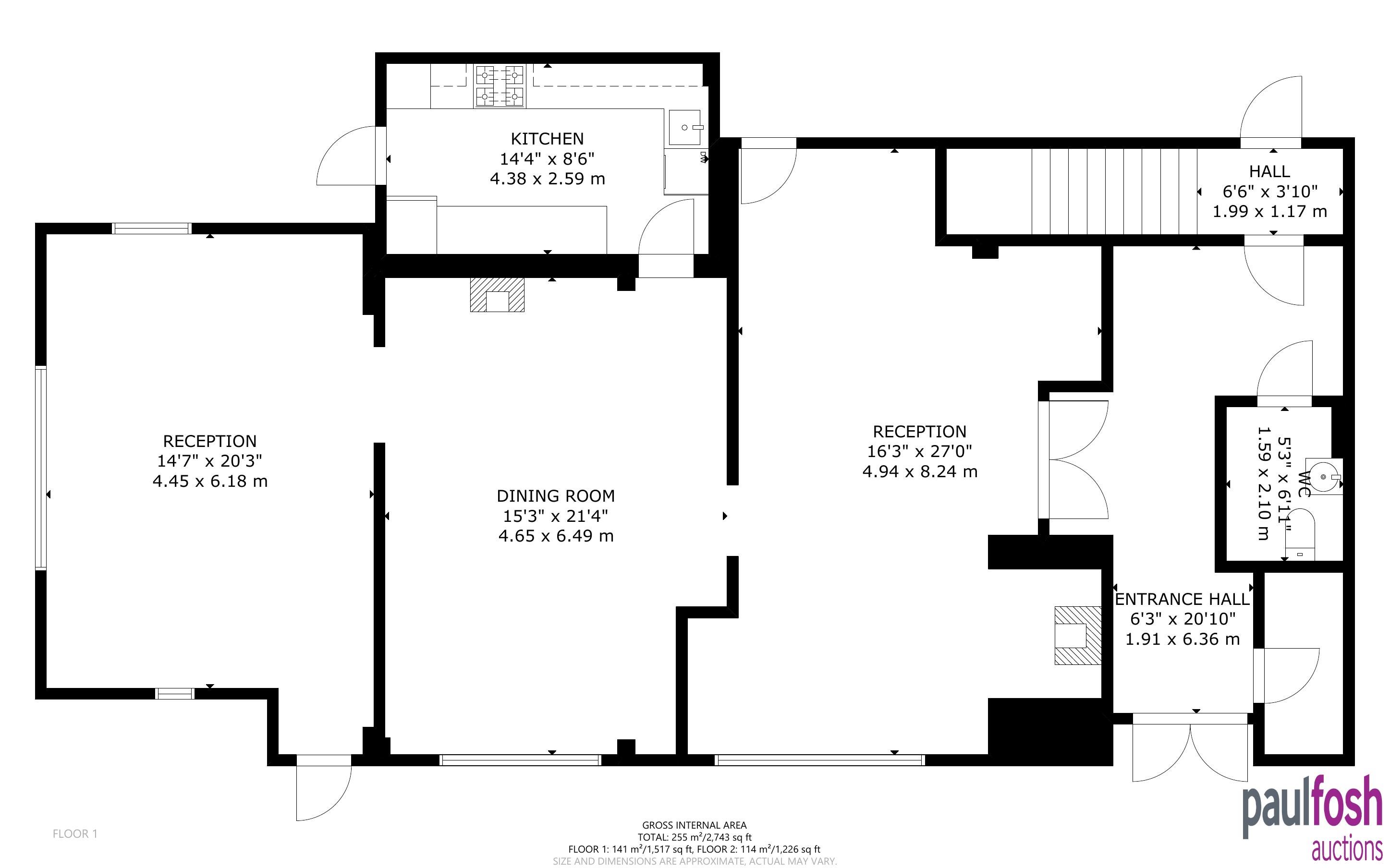
A spacious semi-detached house set within the grounds of Ross Leigh Manor, in an elevated position with far reaching views. The property includes three reception rooms, kitchen, cloak room and laundry room, four bedrooms each with an en-suite and walk-in wardrobe/nursery room. Outside there is an enclosed courtyard garden with two storage rooms, a lawned side garden and decked area adjacent to fields and open countryside and a gravel driveway providing parking for several cars. The property is to be sold with vacant possession and would make a delightful versatile family home and could also lend itself to care home or holiday let investment due to the year round tourism in the area – Elan Valley and Brecon Beacons National Park.
Crossgates is a village in Powys, mid Wales in the historic county of Radnorshire. Crossgates is located three miles northeast of the bustling spa town Llandrindod Wells and eight miles southeast of Ryahyader. The area is surrounded by the breath-taking countryside of the spectacular Elan Valley - 70 Square miles of dams, reservoirs and rugged Welsh landscapes. The village is served by two schools.
Virtual Tour:
Ground Floor: Lounge with Inglenook fireplace, dining room, family/television room, kitchen, laundry room, cloakroom
First Floor: 4 bedrooms each with en-suite, large walk-in wardrobe/nursery room
Outside: Rear fully enclosed courtyard garden, side lawned garden with decked area, gravel driveway with parking for several cars
G
To be sold with vacant possession
Investors: If you are looking for assistance in tenant find and/or management packages, information on rental income/interest potential we have a Lettings Department that can help you. Please call us or email sarah@paulfoshlettings.com for invaluable advice.
Advised Freehold - to be verified by solicitor
Auction fees: The sale of each lot is subject to a buyer’s premium/admin fee of 1.5% of the purchase price (subject to a minimum of £1,500 for sale prices between £1 and £50,000 or subject to a minimum of £2,400 for sale prices of £50,001 upwards) including VAT unless otherwise stated.
Additional costs: The purchase of the property may be subject to (but are not limited to), VAT (if applicable), reimbursement of the seller’s search fees, reimbursement of seller’s legal and/or sales costs, stamp duty/land transaction tax (LTT). Please check accompanying legal pack for further details.
* Generally speaking Guide Prices are provided as an indication of each seller's minimum expectation, i.e. 'The Reserve'. They are not necessarily figures which a property will sell for and may change at any time prior to the auction. Virtually every property will be offered subject to a Reserve (a figure below which the Auctioneer cannot sell the property during the auction) which we expect will be set within the Guide Range or no more than 10% above a single figure Guide.
As a trusted partner of Paul Fosh Auctions, Together could offer the auction finance you need, when you need it. Visit togethermoney.com for more information.
If considering a mortgage, we advise that you inspect and consider the property carefully with your lender before bidding.
By setting a proxy bid, the system will automatically bid on your behalf to maintain your position as the highest bidder, up to your proxy bid amount. If you are outbid, you will be notified via email so you can opt to increase your bid if you so choose.
If two of more users place identical bids, the bid that was placed first takes precedence, and this includes proxy bids.
Another bidder placed an automatic proxy bid greater or equal to the bid you have just placed. You will need to bid again to stand a chance of winning.