Waiting for video...
ONLINE AUCTION from 20th JUNE-22nd JUNE
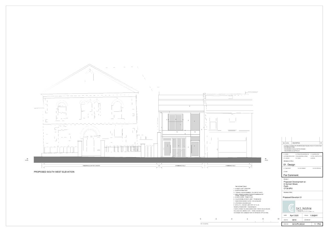
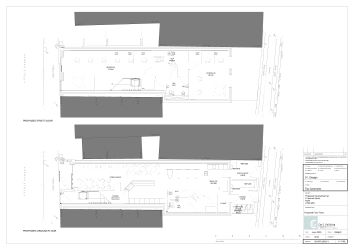
The site has been granted planning permission for construction of a new building providing A3 commercial use at ground floor and office use at first floor with a small courtyard to the rear of the site. The overall site area extends to 149 metres/0.03 acres. Situated in the high street (next to the church) the area of land has the benefit of rear lane access and is a short distance to Porth railway station. We have been informed by the current owner that a council grant was available for the build, however this would need to be re-applied for by the new purchaser (enquiries direct to Rhondda Cynon Taff County council).
The council are re-generating the area to include the development of a modern and quality Transport Hub and Station Quarter that efficiently links commercial development with residential areas. The Transport Hub will provide an integrated and improved interchange that aligns both the bus and train stations that will allow them to cope with future, increased passenger numbers and increased services, whilst offering easy access to the whole public transport network.
Porth is a town in the county borough of Rhondda Cynon Taf, within the historic county boundaries of Glamorgan, Wales. Lying in the Rhondda Valley, it is regarded as the gateway connecting the Rhondda Fawr and Rhondda Fach valleys due to both valleys meeting at Porth. Cardiff is approximately 15 miles away.
Planning:
Planning permission has been granted for A3 commercial use at ground floor and office use at first floor
Planning ref: 20/0610/10 (Please contact Rhondda Cynon Taff Local Authority for further information)
To be sold with vacant possession
Advised Freehold - to be verified by solicitor
Auction fees: The sale of each lot is subject to a buyer’s premium/admin fee of 1.5% of the purchase price (subject to a minimum of £1,500 for sale prices between £1 and £50,000 or subject to a minimum of £2,400 for sale prices of £50,001 upwards) including VAT unless otherwise stated.
Additional costs: The purchase of the property may be subject to (but are not limited to), VAT (if applicable), reimbursement of the seller’s search fees, reimbursement of seller’s legal and/or sales costs, stamp duty/land transaction tax (LTT). Please check accompanying legal pack for further details.
* Generally speaking Guide Prices are provided as an indication of each seller's minimum expectation, i.e. 'The Reserve'. They are not necessarily figures which a property will sell for and may change at any time prior to the auction. Virtually every property will be offered subject to a Reserve (a figure below which the Auctioneer cannot sell the property during the auction) which we expect will be set within the Guide Range or no more than 10% above a single figure Guide.
As a trusted partner of Paul Fosh Auctions, Together could offer the auction finance you need, when you need it. Visit togethermoney.com for more information.
If considering a mortgage, we advise that you inspect and consider the property carefully with your lender before bidding.
By setting a proxy bid, the system will automatically bid on your behalf to maintain your position as the highest bidder, up to your proxy bid amount. If you are outbid, you will be notified via email so you can opt to increase your bid if you so choose.
If two of more users place identical bids, the bid that was placed first takes precedence, and this includes proxy bids.
Another bidder placed an automatic proxy bid greater or equal to the bid you have just placed. You will need to bid again to stand a chance of winning.