Waiting for video...
The property has been withdrawn from auction.
ONLINE AUCTION from 20th JUNE-22nd JUNE
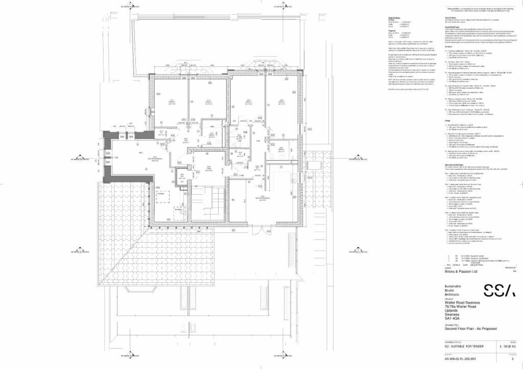
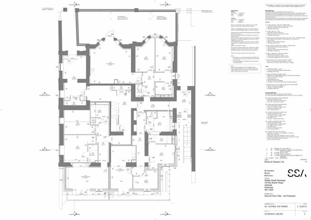
This remarkable property, consisting of a former nightclub and an adjoining office building, presents a compelling investment proposition with detailed planning permission for the development of nine high-end residential apartments. This investment opportunity includes technical drawings (Architectural, MEP and Structural design) and all required surveys (Bat, Asbestos, Acoustic survey and Party Wall agreement) making this plot a Plug and Play property for a keen developer saving valuable time and efort.
*** 56 day completion ***
Location
This property benefits from its prime location situated in the Uplands area close to the city center, which is experiencing rapid growth with strong rental demand and increasing property values.
With excellent transport links, proximity to local amenities, and a thriving community, this location close to the city center is highly sought after by residents and professionals alike. this location appeals to a diverse range of tenants, ensuring a high demand for quality rental and serviced accommodation.The convenient access to Westbury Lane at the rear of the property provides ample onsite parking for up to 9 cars, with the possibility of further development (subject to necessary planning consents).
Planning
The current planning proposal can be found on Swansea Council planning portal under references 2022/2678/S73 & 2022/2290/NMA. Planning has been granted for nine apartments, seven x 2 bedroom and two x 1 bedroom.
Business Rates
The property is no longer on the ratings website.
To be sold with vacant possession
Advised Freehold - to be verified by solicitor
Auction fees: The sale of each lot is subject to a buyer’s premium/admin fee of 1.5% of the purchase price (subject to a minimum of £1,500 for sale prices between £1 and £50,000 or subject to a minimum of £2,400 for sale prices of £50,001 upwards) including VAT unless otherwise stated.
Additional costs: The purchase of the property may be subject to (but are not limited to), VAT (if applicable), reimbursement of the seller’s search fees, reimbursement of seller’s legal and/or sales costs, stamp duty/land transaction tax (LTT). Please check accompanying legal pack for further details.
* Generally speaking Guide Prices are provided as an indication of each seller's minimum expectation, i.e. 'The Reserve'. They are not necessarily figures which a property will sell for and may change at any time prior to the auction. Virtually every property will be offered subject to a Reserve (a figure below which the Auctioneer cannot sell the property during the auction) which we expect will be set within the Guide Range or no more than 10% above a single figure Guide.
As a trusted partner of Paul Fosh Auctions, Together could offer the auction finance you need, when you need it. Visit togethermoney.com for more information.
If considering a mortgage, we advise that you inspect and consider the property carefully with your lender before bidding.
By setting a proxy bid, the system will automatically bid on your behalf to maintain your position as the highest bidder, up to your proxy bid amount. If you are outbid, you will be notified via email so you can opt to increase your bid if you so choose.
If two of more users place identical bids, the bid that was placed first takes precedence, and this includes proxy bids.
Another bidder placed an automatic proxy bid greater or equal to the bid you have just placed. You will need to bid again to stand a chance of winning.