Waiting for video...
ONLINE AUCTION from 20th JUNE-22nd JUNE
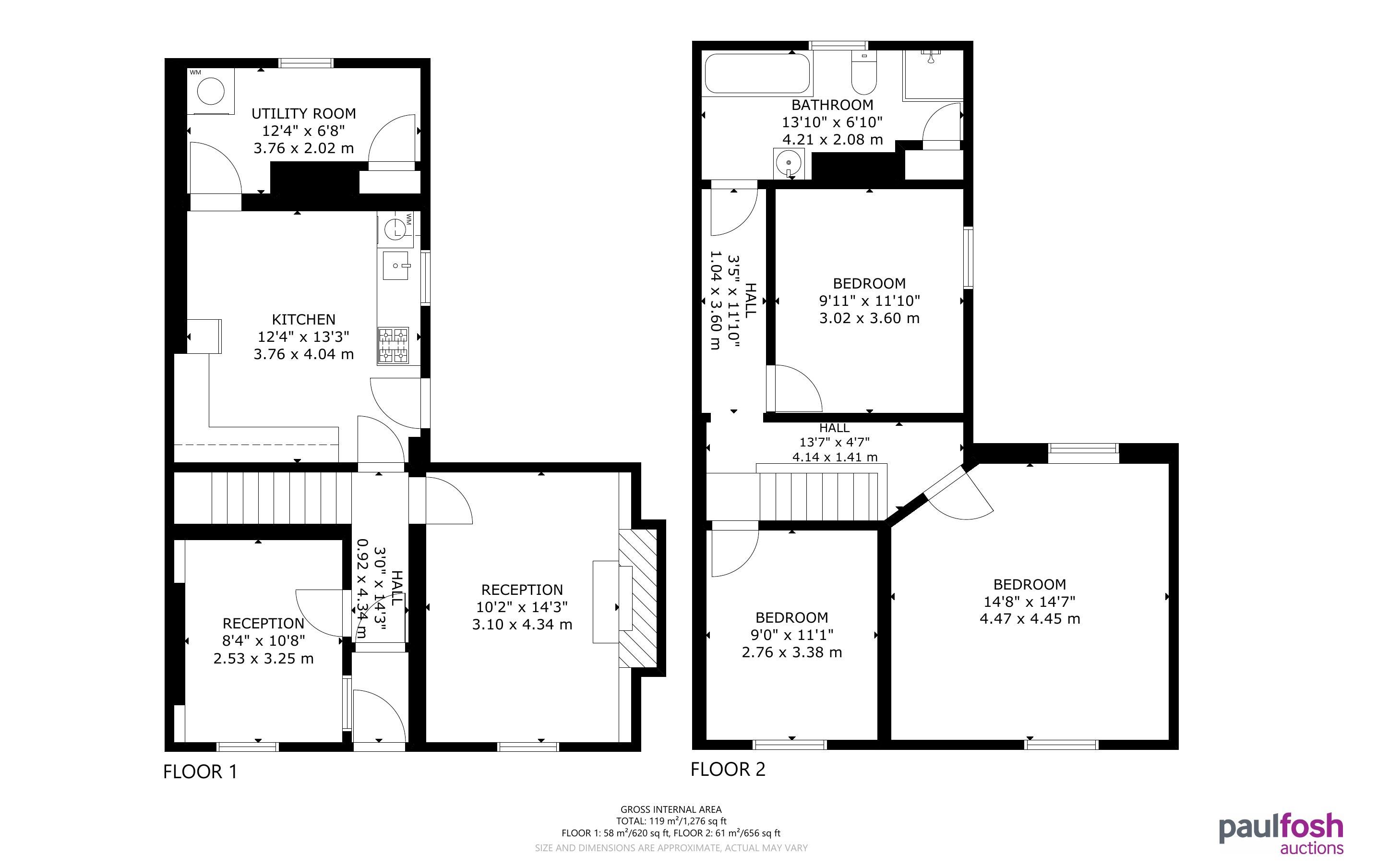
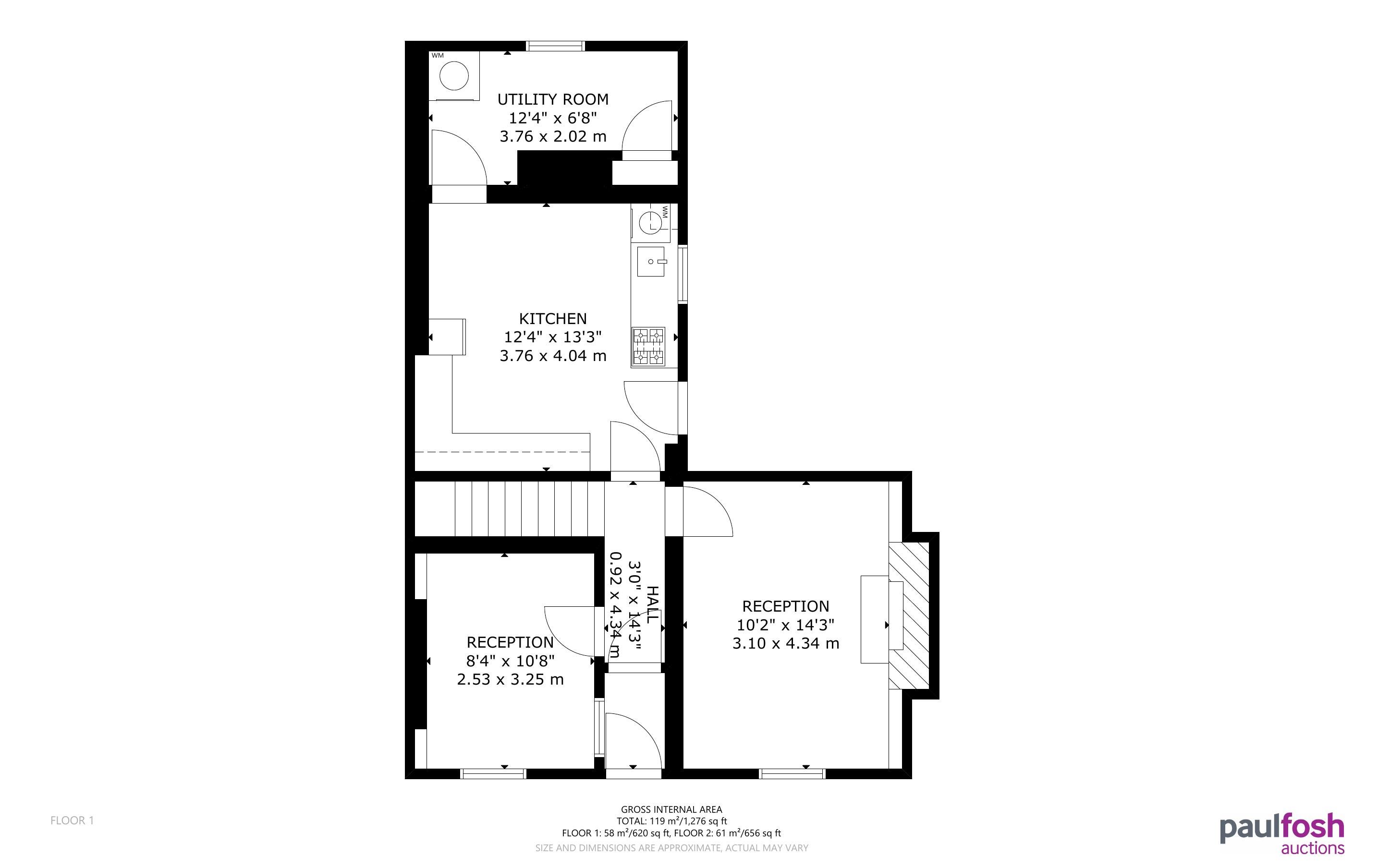
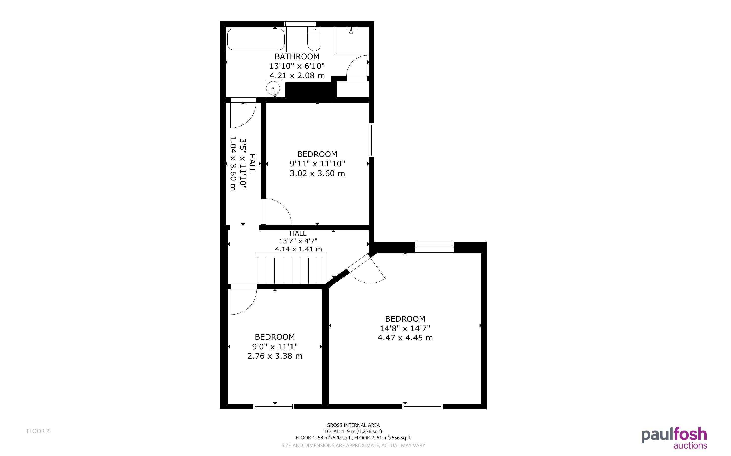
A double fronted mid terraced house situated near local shops and to be sold with tenant in situ. The property provides spacious accommodation to include two reception rooms, kitchen/dining room, utility room, three bedrooms and bathroom. The courtyard area leads to a terraced rear garden which is overgrown and has Japanese Knotweed - however, the vendor informs us that he has paid for treatment to commence (see Legal Pack for certificate). The current tenants pay a rental of £445 pcm though we anticipate a more realistic rent of £525 pcm. The tenants have lived there for 3 years and would very much like to stay.
Tylorstown is a village and community located in the Rhondda valley, in the county borough of Rhondda Cynon Taf, Wales. It is neighboured by the villages of Blaenllechau, Ferndale, Penrhys, Pontygwaith and Stanleytown. The surrounding area benefits from scenic views.
Virtual Tour:
Ground Floor: Lounge, sitting room, kitchen/breakfast room, utility room
First Floor: 3 bedrooms, bathroom
Outside: Rear garden with side access
A
To be sold with tenant in situ
The property is let at £445 pcm (£5,340 pa)
Advised Freehold - to be verified by solicitor
Auction fees: The sale of each lot is subject to a buyer’s premium/admin fee of 1.5% of the purchase price (subject to a minimum of £1,500 for sale prices between £1 and £50,000 or subject to a minimum of £2,400 for sale prices of £50,001 upwards) including VAT unless otherwise stated.
Additional costs: The purchase of the property may be subject to (but are not limited to), VAT (if applicable), reimbursement of the seller’s search fees, reimbursement of seller’s legal and/or sales costs, stamp duty/land transaction tax (LTT). Please check accompanying legal pack for further details.
* Generally speaking Guide Prices are provided as an indication of each seller's minimum expectation, i.e. 'The Reserve'. They are not necessarily figures which a property will sell for and may change at any time prior to the auction. Virtually every property will be offered subject to a Reserve (a figure below which the Auctioneer cannot sell the property during the auction) which we expect will be set within the Guide Range or no more than 10% above a single figure Guide.
As a trusted partner of Paul Fosh Auctions, Together could offer the auction finance you need, when you need it. Visit togethermoney.com for more information.
If considering a mortgage, we advise that you inspect and consider the property carefully with your lender before bidding.
By setting a proxy bid, the system will automatically bid on your behalf to maintain your position as the highest bidder, up to your proxy bid amount. If you are outbid, you will be notified via email so you can opt to increase your bid if you so choose.
If two of more users place identical bids, the bid that was placed first takes precedence, and this includes proxy bids.
Another bidder placed an automatic proxy bid greater or equal to the bid you have just placed. You will need to bid again to stand a chance of winning.