Waiting for video...
ONLINE AUCTION from 20th June - 22nd June
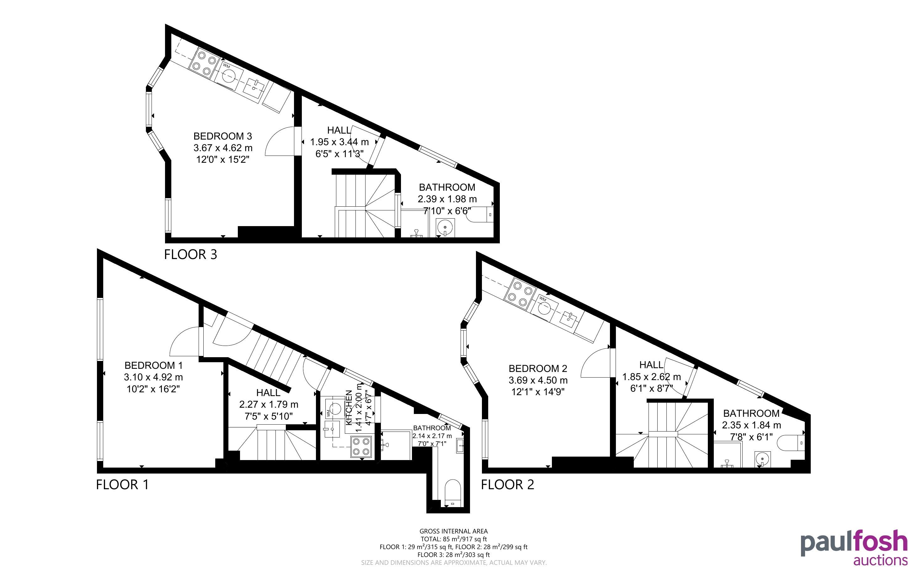
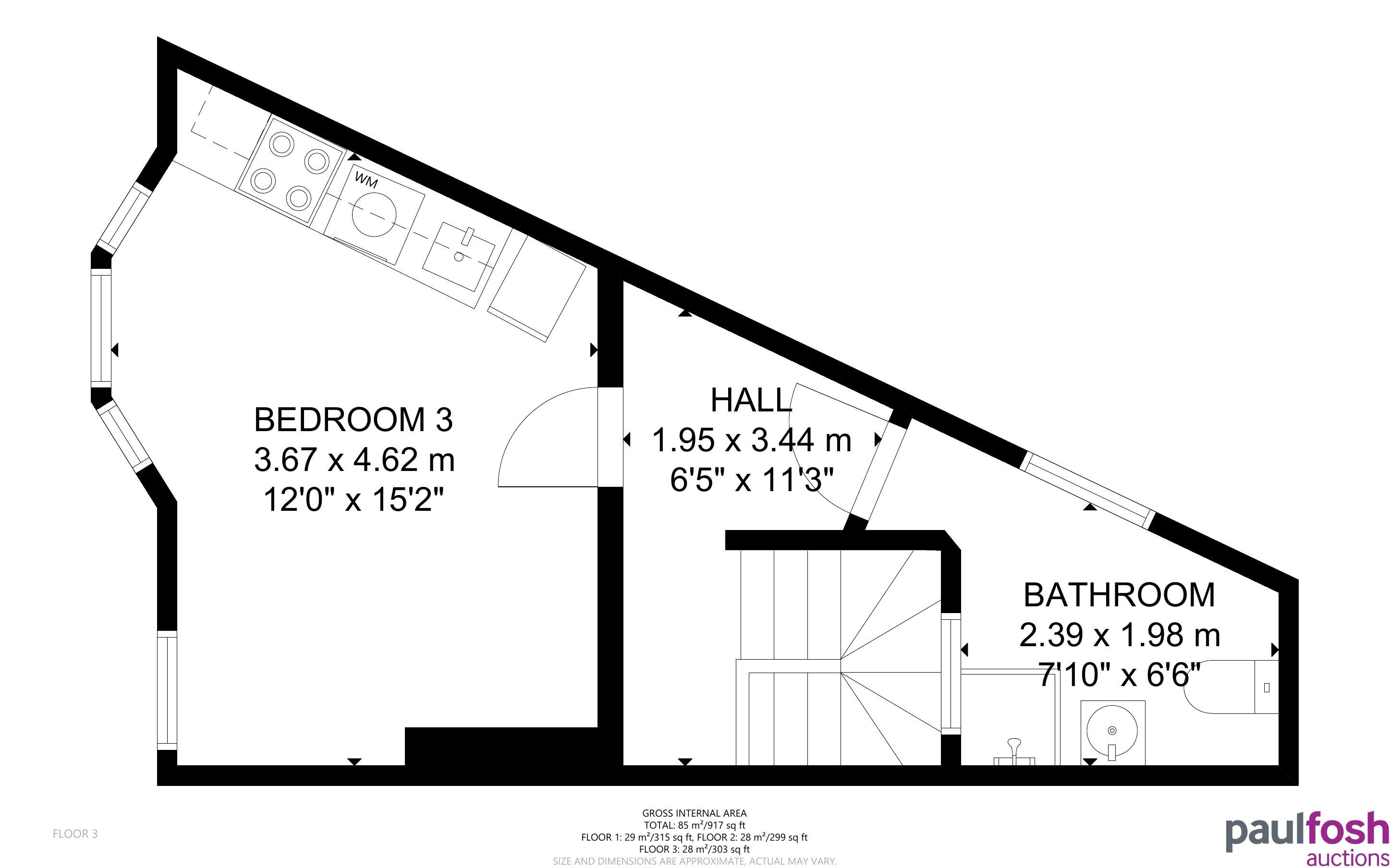
A three storey end of terraced town house within walking distance of the local shops. The property has been converted to a high standard and provides 3 flats over three floors – currently run as an Airbnb. Each flat provides open plan bed/dining rooms, kitchens and shower rooms. We are informed that the property, x 3 flats at full capacity, achieves £2,100 pcm. The property could provide HMO accommodation subject the necessary change of use consents.
The property is to be sold with vacant possession.
Cardiff is the capital and largest city of Wales and the eleventh-largest city in the United Kingdom. Investment in the area is buoyant due to tourism and Cardiff University. Excellent commuter links via the railway stations and M4 motorway.
VIRTUAL TOUR
ACCOMMODATION via communal areas
Ground Floor: Open plan bedroom/dining room, private kitchen and shower room via communal staircase area
First Floor: Open plan bedroom/kitchen/dining room, private shower room via communal staircase area
Second Floor: Open plan bedroom/kitchen/dining room, private shower room via communal staircase area
D
To be sold with vacant possession
Advised Freehold - to be verified by solicitor
The property is let (Airbnb) for up to £2,100 pcm (£25,200 pa)
INVESTORS:If you are looking for assistance in tenant find and/or management packages, information on rental income/interest potential we have a Lettings Department that can help you. Please call us or email sarah@paulfoshlettings.com for invaluable advice.
Auction fees: The sale of each lot is subject to a buyer’s premium/admin fee of 1.5% of the purchase price (subject to a minimum of £1,500 for sale prices between £1 and £50,000 or subject to a minimum of £2,400 for sale prices of £50,001 upwards) including VAT unless otherwise stated.
Additional costs: The purchase of the property may be subject to (but are not limited to), VAT (if applicable), reimbursement of the seller’s search fees, reimbursement of seller’s legal and/or sales costs, stamp duty/land transaction tax (LTT). Please check accompanying legal pack for further details.
* Generally speaking Guide Prices are provided as an indication of each seller's minimum expectation, i.e. 'The Reserve'. They are not necessarily figures which a property will sell for and may change at any time prior to the auction. Virtually every property will be offered subject to a Reserve (a figure below which the Auctioneer cannot sell the property during the auction) which we expect will be set within the Guide Range or no more than 10% above a single figure Guide.
As a trusted partner of Paul Fosh Auctions, Together could offer the auction finance you need, when you need it. Visit togethermoney.com for more information.
If considering a mortgage, we advise that you inspect and consider the property carefully with your lender before bidding.
By setting a proxy bid, the system will automatically bid on your behalf to maintain your position as the highest bidder, up to your proxy bid amount. If you are outbid, you will be notified via email so you can opt to increase your bid if you so choose.
If two of more users place identical bids, the bid that was placed first takes precedence, and this includes proxy bids.
Another bidder placed an automatic proxy bid greater or equal to the bid you have just placed. You will need to bid again to stand a chance of winning.