Waiting for video...
ONLINE AUCTION from 7th MARCH-9th MARCH
A substantial detached four bedroom house set in ample grounds.
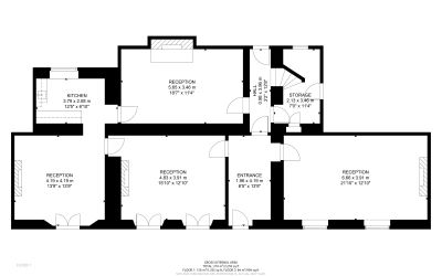
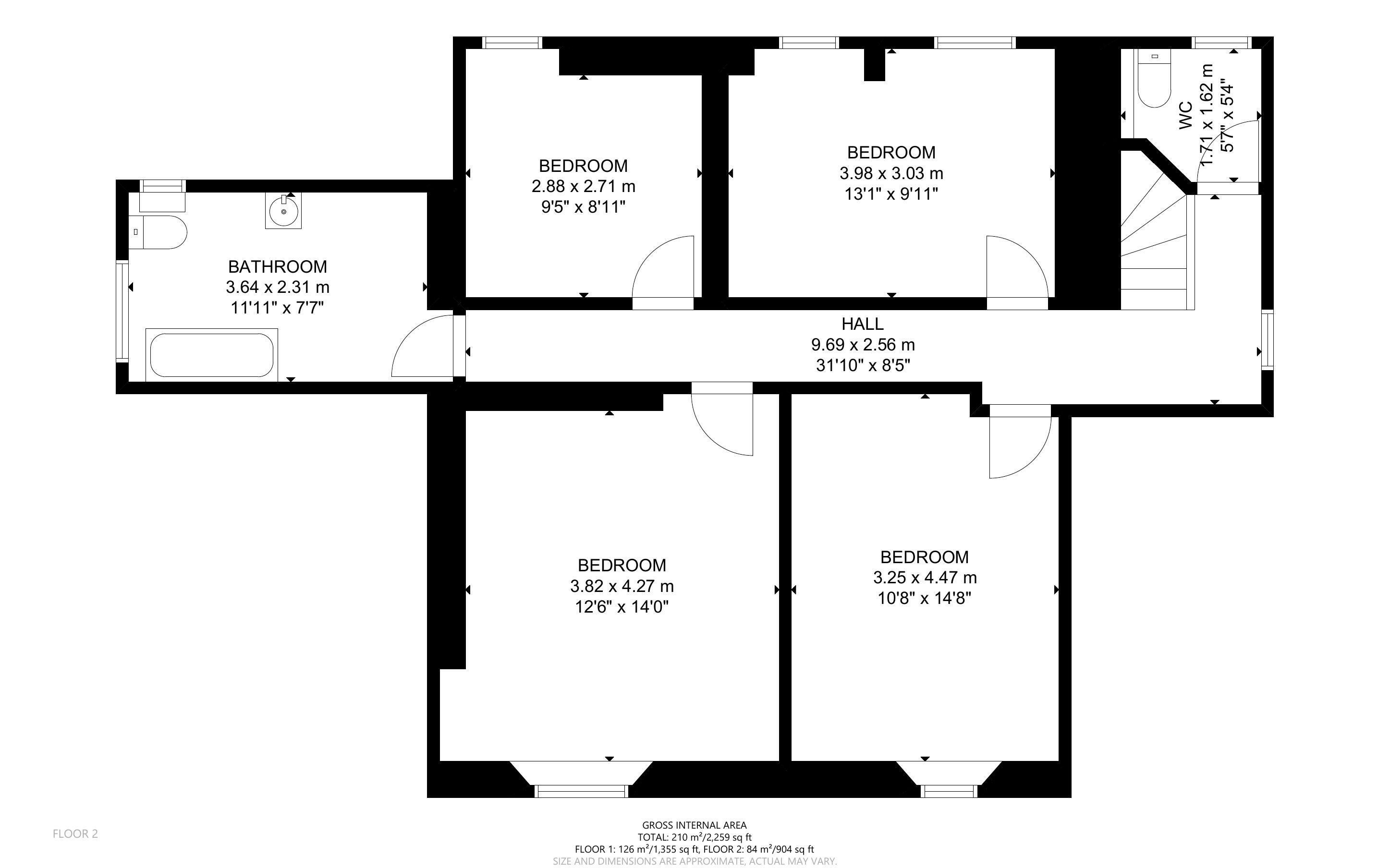
This extended property could offer a number of uses (subject to any necessary consents) and comprises entrance hallway, kitchen, three reception rooms and utility to the ground floor. There is also a partial extension to the rear. The first floor offers four bedrooms and family bathroom.
The property will require full renovation works and offers ample land which could be ideal for development (subject to any necessary planning consents).
The property also benefits from a gated driveway and car port area.
The property is situated in an ideal location for access to the Brecon Beacons National Park, with good road links to the M4, Swansea, The Mumbles and Gower. There are a good range of local amenities and shopping facilities, with additional facilities and amenities available in the nearby larger towns of Ystradgynlais and Pontardawe.
VIRTUAL TOUR
Ground Floor: Entrance hallway, 3 reception rooms, utility, partial extension
First Floor: 4 bedrooms, bathroom, WC
Outside: Gated driveway, carport, private garden to front and side and sloping land to rear
To be sold with vacant possession
Advised Freehold - to be verified by solicitor
Auction fees: The sale of each lot is subject to a buyer’s premium/admin fee of 1.5% of the purchase price (subject to a minimum of £1,500 for sale prices between £1 and £50,000 or subject to a minimum of £2,400 for sale prices of £50,001 upwards) including VAT unless otherwise stated.
Additional costs: The purchase of the property may be subject to (but are not limited to), VAT (if applicable), reimbursement of the seller’s search fees, reimbursement of seller’s legal and/or sales costs, stamp duty/land transaction tax (LTT). Please check accompanying legal pack for further details.
* Generally speaking Guide Prices are provided as an indication of each seller's minimum expectation, i.e. 'The Reserve'. They are not necessarily figures which a property will sell for and may change at any time prior to the auction. Virtually every property will be offered subject to a Reserve (a figure below which the Auctioneer cannot sell the property during the auction) which we expect will be set within the Guide Range or no more than 10% above a single figure Guide.
As a trusted partner of Paul Fosh Auctions, Together could offer the auction finance you need, when you need it. Visit togethermoney.com for more information.
If considering a mortgage, we advise that you inspect and consider the property carefully with your lender before bidding.
By setting a proxy bid, the system will automatically bid on your behalf to maintain your position as the highest bidder, up to your proxy bid amount. If you are outbid, you will be notified via email so you can opt to increase your bid if you so choose.
If two of more users place identical bids, the bid that was placed first takes precedence, and this includes proxy bids.
Another bidder placed an automatic proxy bid greater or equal to the bid you have just placed. You will need to bid again to stand a chance of winning.