Lot 40 - Valley House, Central Lydbrook, Lydbrook, Gloucestershire, GL17 9PP

  • Unconditional Online Auction Sale
  • Guide Price* : £230,000+
  • Bedrooms: 4

Lot 40 - Period Property for Owner Occupation / Investment

Description

ONLINE AUCTION from 7th MARCH-9th MARCH

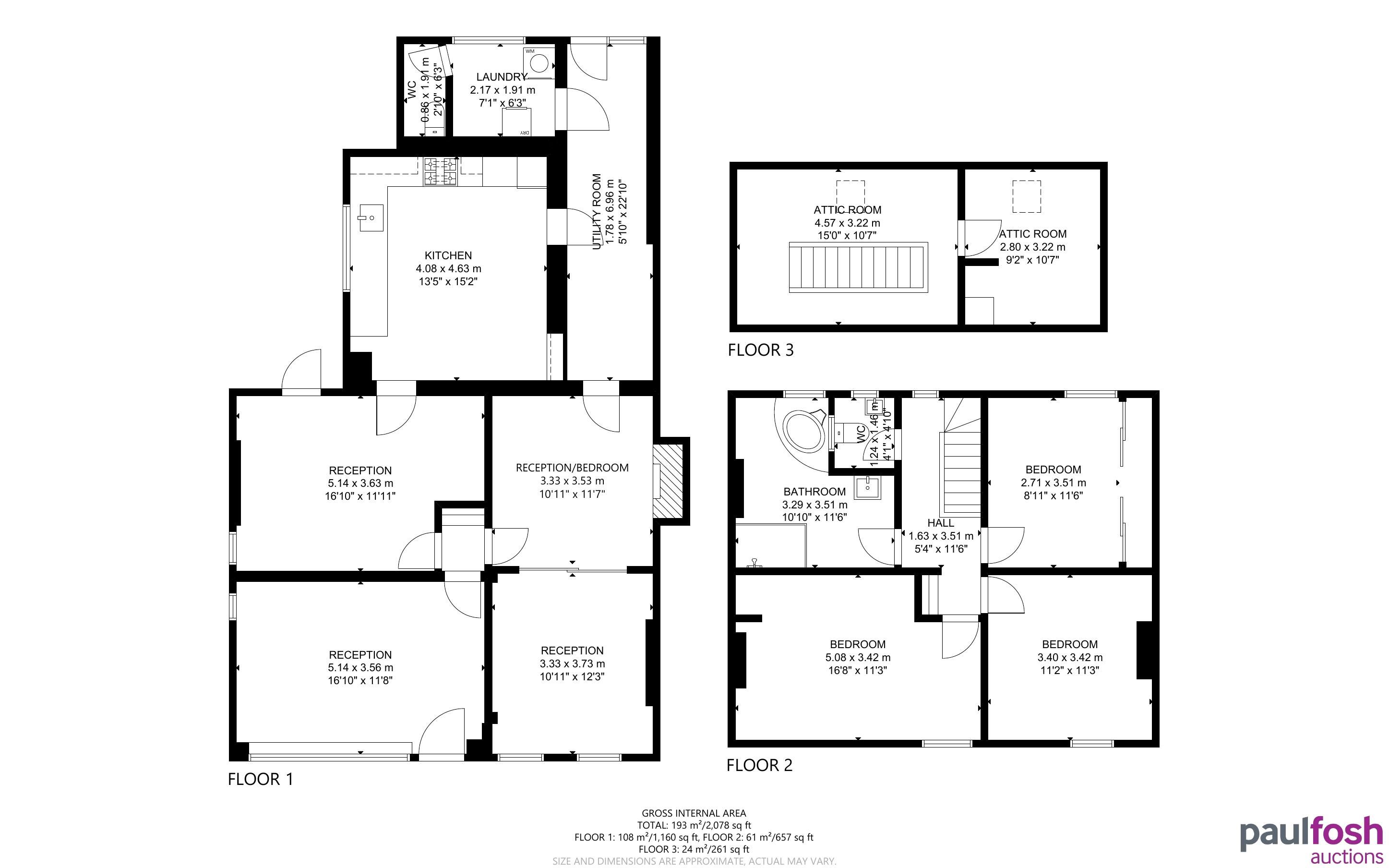
An opportunity to acquire a substantial period property in the delightful village of Lydbrook in Forest of Dean. The property benefits from generous accommodation over three floors including four reception rooms and four bedrooms and occupies a spacious plot with wonderful gardens & driveway leading to a good size garage/workshop and views onto open woodland to the rear.

The property dates back to the late Victorian period and was historically the local post office and would be ideal for a number of uses such as a large family home or conversation to flats or holiday let. It also has potential to extend or develop the adjacent garden (subject to neccessary planning consents). The property benefits from gas central heating (not tested) and mostly UPVC double glazing.

The village benefits from local amenities and shops and local primary school and is ideally situated for access to the wide range of activities and outdoor pursuits and attractions.

VIRTUAL TOUR

Accommodation

Ground Floor: Sitting room, lobby, sitting room/study, kitchen/breakfast room, dining room, boot room, utility/cloakroom
First Floor: Landing, 3 bedrooms, bathroom, cloakroom
Second Floor: Attic space, bedroom 4/Hobby room
Outside: Spacious garden areas with drive and carparking space for a number of vehicles leading to garage/workshop

Council Tax Band

C

Tenancies

To be sold with vacant possession

Tenure

Advised Freehold - to be verified by solicitor

Auction Fees And Additional Costs

Auction fees: The sale of each lot is subject to a buyer’s premium/admin fee of 1.5% of the purchase price (subject to a minimum of £1,500 for sale prices between £1 and £50,000 or subject to a minimum of £2,400 for sale prices of £50,001 upwards) including VAT unless otherwise stated.

Additional costs: The purchase of the property may be subject to (but are not limited to), VAT (if applicable), reimbursement of the seller’s search fees, reimbursement of seller’s legal and/or sales costs, stamp duty/land transaction tax (LTT). Please check accompanying legal pack for further details.

* Generally speaking Guide Prices are provided as an indication of each seller's minimum expectation, i.e. 'The Reserve'. They are not necessarily figures which a property will sell for and may change at any time prior to the auction. Virtually every property will be offered subject to a Reserve (a figure below which the Auctioneer cannot sell the property during the auction) which we expect will be set within the Guide Range or no more than 10% above a single figure Guide.

Loading the bidding panel...

Want Auction updates? Sign up here

Viewing

Paul Fosh Auctions
01633 254044

Joint Agent

Ferrino & Partners

Office Contact

Sean Roper
01633254044

Documents

Related Documents

Auction Finance

As a trusted partner of Paul Fosh Auctions, Together could offer the auction finance you need, when you need it. Visit togethermoney.com for more information.

If considering a mortgage, we advise that you inspect and consider the property carefully with your lender before bidding.

Follow