Waiting for video...
ONLINE AUCTION from 7th MARCH-9th MARCH
Previously a public house, this property has recently been granted planning in principle for four flats.
Location
Located in the Newport city centre, within walking distance to Newport train station and local bus routes, this property would make an ideal investment.
Planning Permission
Pre application planning has been submitted for two one bedroom flats, one two bedroom flat, and a studio apartment. However, there may be potential for the studio apartment to be a one bedroom flat, (subject to the relevant planning consent).
Further information can be found via Newport City Council – planning reference: PRELET/PS/22/0074
Additionally, the current vendor has submit a planning application for X2 two bed flats, and a commercial unit on the ground floor. The vendor has not yet advertised the property to let but has had interest from a local business wishing to let the commercial unit for £10,000 per annum. Further information can be found via Newport City Council Planning ref: 22/1027
Services
The property benefits from water, gas and electric (not tested).
VAT
Vendor has advised that there is no VAT due on the sale of this property (to be confirmed by a solicitor).
VIRTUAL TOUR
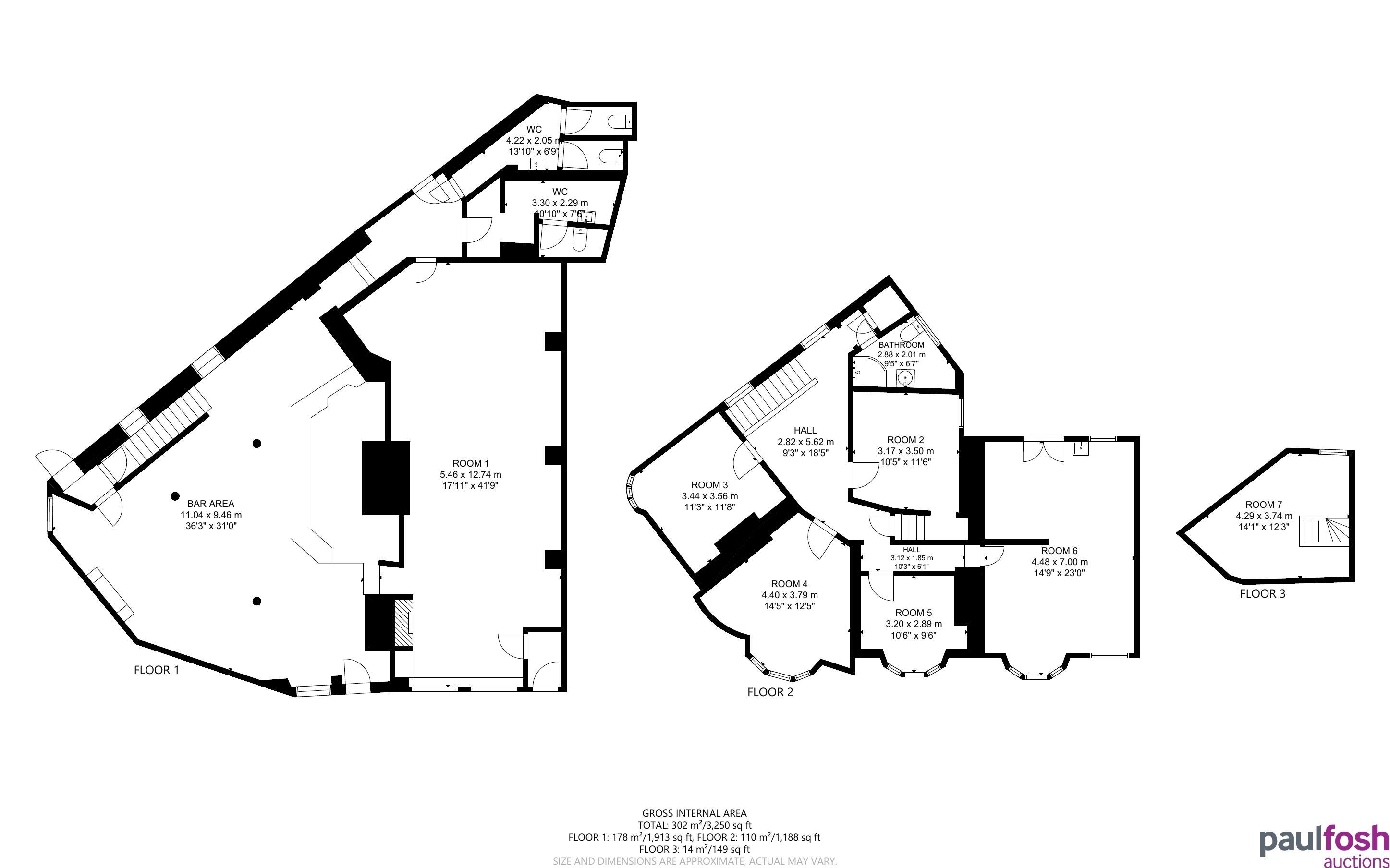
| Floor | Description | Area Sq Ft | Area Sq M |
|---|---|---|---|
| Ground Floor | Bar Area | 1,124.18 | 104.44 |
| Room 1 | 748.74 | 69.56 | |
| Female WC | 93.11 | 8.65 | |
| Male WC | 81.37 | 7.56 | |
| First Floor | Room 2 | 119.37 | 11.09 |
| Room 3 | 131.86 | 12.25 | |
| Room 4 | 179.54 | 16.68 | |
| Room 5 | 99.57 | 9.25 | |
| Room 6/Kitchen Area | 337.55 | 31.36 | |
| Bathroom | 62.32 | 5.79 | |
| Second Floor | Room 7 | 172.65 | 16.04 |
| Basement | Cellar |
To be sold with vacant possession
Advised Freehold - to be verified by solicitor
Auction fees: The sale of each lot is subject to a buyer’s premium/admin fee of 1.5% of the purchase price (subject to a minimum of £1,500 for sale prices between £1 and £50,000 or subject to a minimum of £2,400 for sale prices of £50,001 upwards) including VAT unless otherwise stated.
Additional costs: The purchase of the property may be subject to (but are not limited to), VAT (if applicable), reimbursement of the seller’s search fees, reimbursement of seller’s legal and/or sales costs, stamp duty/land transaction tax (LTT). Please check accompanying legal pack for further details.
* Generally speaking Guide Prices are provided as an indication of each seller's minimum expectation, i.e. 'The Reserve'. They are not necessarily figures which a property will sell for and may change at any time prior to the auction. Virtually every property will be offered subject to a Reserve (a figure below which the Auctioneer cannot sell the property during the auction) which we expect will be set within the Guide Range or no more than 10% above a single figure Guide.
As a trusted partner of Paul Fosh Auctions, Together could offer the auction finance you need, when you need it. Visit togethermoney.com for more information.
If considering a mortgage, we advise that you inspect and consider the property carefully with your lender before bidding.
By setting a proxy bid, the system will automatically bid on your behalf to maintain your position as the highest bidder, up to your proxy bid amount. If you are outbid, you will be notified via email so you can opt to increase your bid if you so choose.
If two of more users place identical bids, the bid that was placed first takes precedence, and this includes proxy bids.
Another bidder placed an automatic proxy bid greater or equal to the bid you have just placed. You will need to bid again to stand a chance of winning.