Waiting for video...
Guide price reduced
ONLINE AUCTION from 7th MARCH-9th MARCH
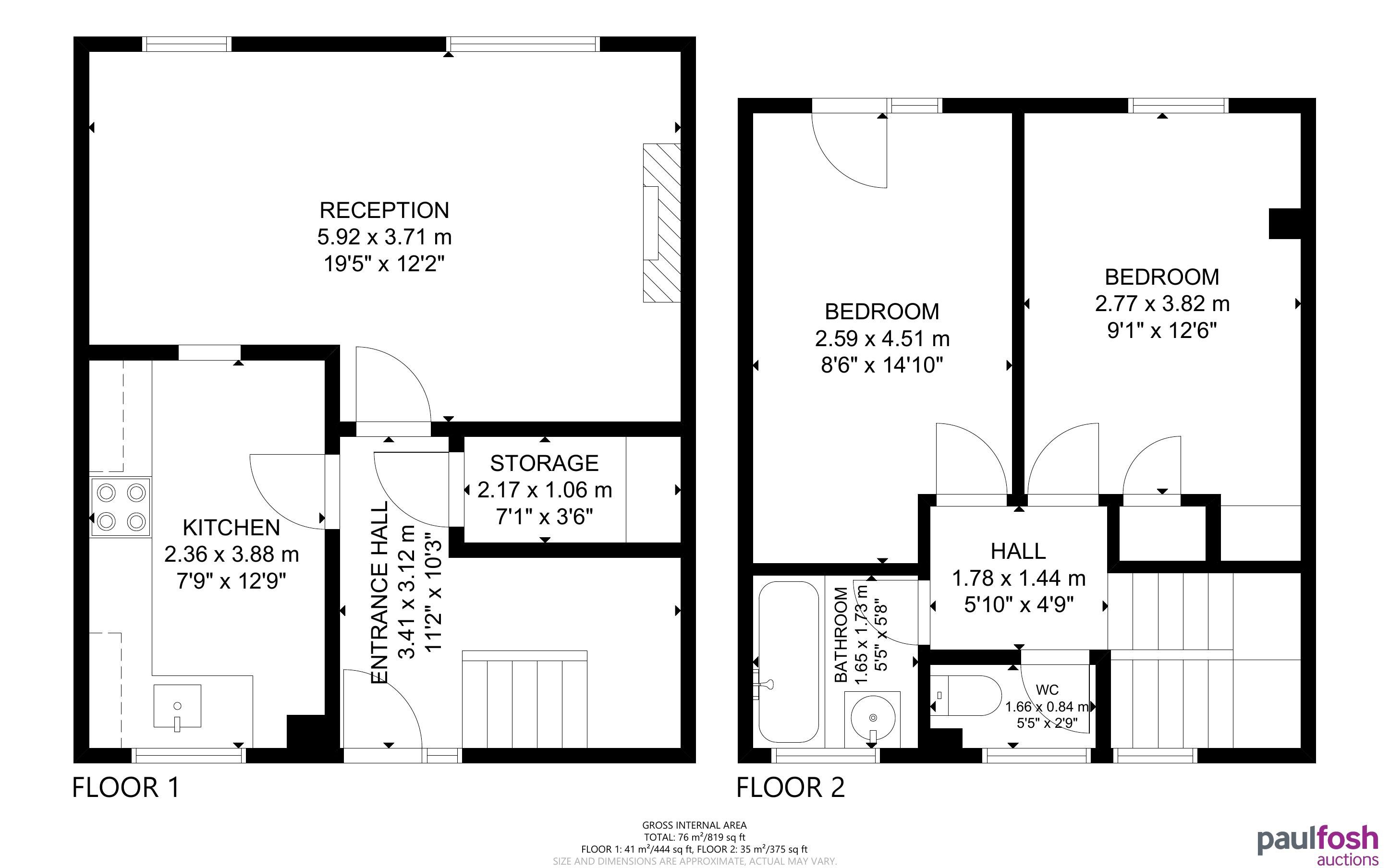
A first floor ex local authority maisonette situated at the end of the development with far reaching hillside views. The local primary school is only a few steps away and offers a green and open outlook. Accommodation is over two floors and includes open plan lounge/dining room, kitchen, two bedrooms - one with small balcony, separate w.c. and bathroom. A large communal parking area can be found at the front and central communal grassed area at the rear. The property is to be sold with vacant possession. We anticipate a rental of approximately £495 pcm.
Aberdare is a town in the Cynon Valley area of Rhondda Cynon Taf, Wales. Aberdare is 4 miles (6 km) south-west of Merthyr Tydfil, 20 miles (32 km) north-west of Cardiff and 22 miles (35 km) east-north-east of Swansea.
VIRTUAL TOUR
First Floor: Lounge/dining room, kitchen
Second Floor: 2 bedrooms - one with small balcony, w.c, bathroom
Outside: Communal grassed area to rear, communal parking to front
A
To be sold with vacant possession
Investors:If you are looking for assistance in tenant find and/or management packages, information on rental income/interest potential we have a Lettings Department that can help you. Please call us or email rhys@paulfoshlettings.com for invaluable advice.
Advised Leasehold - To be verified by a solicitor
Auction fees: The sale of each lot is subject to a buyer’s premium/admin fee of 1.5% of the purchase price (subject to a minimum of £1,500 for sale prices between £1 and £50,000 or subject to a minimum of £2,400 for sale prices of £50,001 upwards) including VAT unless otherwise stated.
Additional costs: The purchase of the property may be subject to (but are not limited to), VAT (if applicable), reimbursement of the seller’s search fees, reimbursement of seller’s legal and/or sales costs, stamp duty/land transaction tax (LTT). Please check accompanying legal pack for further details.
* Generally speaking Guide Prices are provided as an indication of each seller's minimum expectation, i.e. 'The Reserve'. They are not necessarily figures which a property will sell for and may change at any time prior to the auction. Virtually every property will be offered subject to a Reserve (a figure below which the Auctioneer cannot sell the property during the auction) which we expect will be set within the Guide Range or no more than 10% above a single figure Guide.
As a trusted partner of Paul Fosh Auctions, Together could offer the auction finance you need, when you need it. Visit togethermoney.com for more information.
If considering a mortgage, we advise that you inspect and consider the property carefully with your lender before bidding.
By setting a proxy bid, the system will automatically bid on your behalf to maintain your position as the highest bidder, up to your proxy bid amount. If you are outbid, you will be notified via email so you can opt to increase your bid if you so choose.
If two of more users place identical bids, the bid that was placed first takes precedence, and this includes proxy bids.
Another bidder placed an automatic proxy bid greater or equal to the bid you have just placed. You will need to bid again to stand a chance of winning.