Waiting for video...
ONLINE AUCTION from 31st JANUARY - 2nd FEBRUARY
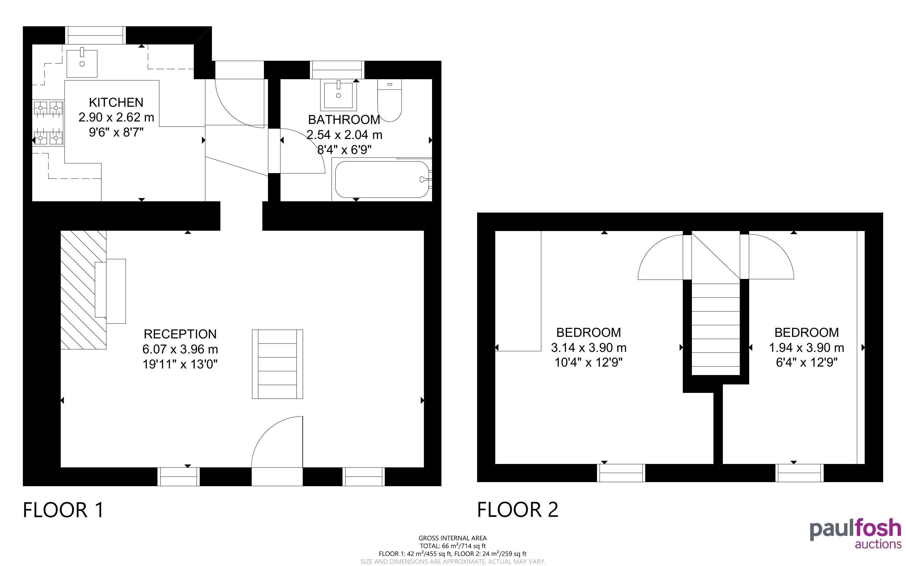
A detached cottage which has had recent internal and external renovations, sitting in a large plot with development potential (subject to the necessary planning consents) and situated in a sought after area with excellent commuter links via the M4. Accommodation includes an open plan lounge/dining room with wood-burner, kitchen, bathroom and two bedrooms. The large rear lawned garden includes outbuildings and off road parking via the side driveway. There is also a larger area of garden beyond the fence that could be developed (subject to the necessary consents). The property would make an ideal holiday home/investment.
Cross Hands is a town in Carmarthenshire, Wales, approximately 12 miles (19 km) from Carmarthen. Cross Hands Public Hall is one of only three of its kind in Wales. The Public Hall was erected in 1920 and designed by an unknown Italian designer in the classic Art Deco Style. Fully restored, the Public Hall has a fully functioning stage and cinema screen and is protected as a Grade II listed building. Ammanford railway station is approximately 4 miles away.
VIRTUAL TOUR
Ground Floor: Open plan lounge/dining room
First Floor: 2 bedrooms, bathroom
Outside: Rear garden with side access, outbuildings, driveway to side
C
To be sold with vacant possession
Investors: If you are looking for assistance in tenant find and/or management packages, information on rental income/interest potential we have a Lettings Department that can help you. Please call us or email rhys@paulfoshlettings.com for invaluable advice.
Advised Freehold - to be verified by solicitor
Auction fees: The sale of each lot is subject to a buyer’s premium/admin fee of 1.5% of the purchase price (subject to a minimum of £1,500 for sale prices between £1 and £50,000 or subject to a minimum of £2,400 for sale prices of £50,001 upwards) including VAT unless otherwise stated.
Additional costs: The purchase of the property may be subject to (but are not limited to), VAT (if applicable), reimbursement of the seller’s search fees, reimbursement of seller’s legal and/or sales costs, stamp duty/land transaction tax (LTT). Please check accompanying legal pack for further details.
* Generally speaking Guide Prices are provided as an indication of each seller's minimum expectation, i.e. 'The Reserve'. They are not necessarily figures which a property will sell for and may change at any time prior to the auction. Virtually every property will be offered subject to a Reserve (a figure below which the Auctioneer cannot sell the property during the auction) which we expect will be set within the Guide Range or no more than 10% above a single figure Guide.
As a trusted partner of Paul Fosh Auctions, Together could offer the auction finance you need, when you need it. Visit togethermoney.com for more information.
If considering a mortgage, we advise that you inspect and consider the property carefully with your lender before bidding.
By setting a proxy bid, the system will automatically bid on your behalf to maintain your position as the highest bidder, up to your proxy bid amount. If you are outbid, you will be notified via email so you can opt to increase your bid if you so choose.
If two of more users place identical bids, the bid that was placed first takes precedence, and this includes proxy bids.
Another bidder placed an automatic proxy bid greater or equal to the bid you have just placed. You will need to bid again to stand a chance of winning.