Waiting for video...
ONLINE AUCTION from 13th DECEMBER - 15th DECEMBER
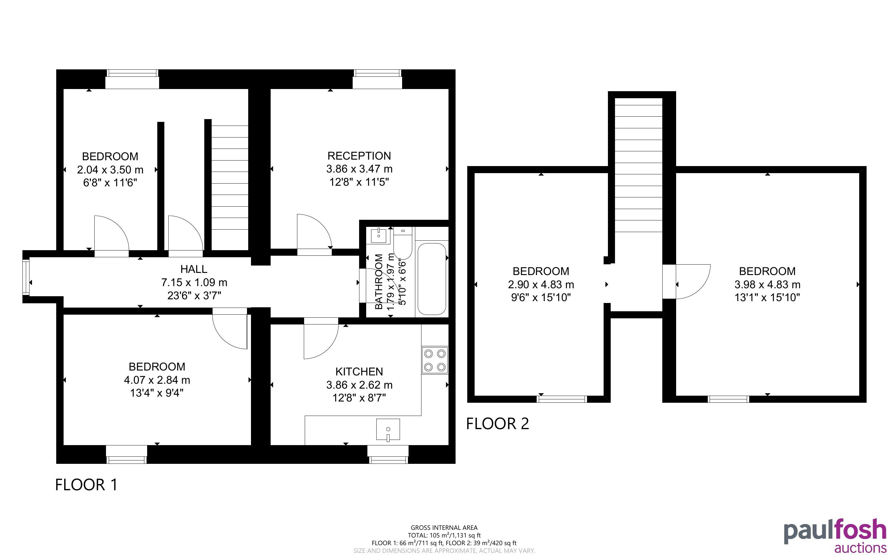
A detached property set on a large plot, being sold as seen. The property provides two x 2 bedroom flats PLUS a four bed HMO, all with separate entrances. The garden (overgrown) has side access to the front and backs onto a stream. The rear could be split into three to provide a private garden area for each of the flats. Excellent commuter links via the A465 and train station in Neath approximately 1.2 miles away.
PLANNING PERMISSION APPROVAL – Neath Port Talbot County Borough Council Application No: P2020/0700
Neath Abbey was a Cistercian monastery, located near the present-day town of Neath in South Wales, UK. It was once the largest abbey in Wales. Substantial ruins can still be seen, and are in the care of Cadw. Tudor historian John Leland called Neath Abbey "the fairest abbey of all Wales''. Neath Abbey was established in 1129 AD when Richard I de Grenville, one of the Twelve Knights of Glamorgan, gave 8,000 acres (3,200 ha) of his estate in Glamorgan, Wales, to Savigniac monks from western Normandy. The first monks arrived in 1130.
Viewings: Please take care when viewing the property (N.B. first floor flat (HMO) not available to view - no secure staircase in place – please see virtual film)
VIRTUAL TOUR
First Floor and Loft Conversion - HMO: Side entrance, living/dining room, kitchen, 4 bedrooms, bathroom, loft storage
Ground Floor Flat: Front entrance, living/dining room, kitchen, 2 bedrooms, bathroom
Lower Ground Floor Flat: Rear entrance, open plan lounge/diner/kitchen, 2 bedrooms, bathroom
Outside: Rear garden (overgrown) with side access to front
To be sold with vacant possession
Investors: If you are looking for assistance in tenant find and/or management packages, information on rental income/interest potential we have a Lettings Department that can help you. Please call us or email rhys@paulfoshlettings.com for invaluable advice.
Advised Freehold - to be verified by solicitor
Auction fees: The sale of each lot is subject to a buyer’s premium/admin fee of 1.5% of the purchase price (subject to a minimum of £1,500 for sale prices between £1 and £50,000 or subject to a minimum of £2,400 for sale prices of £50,001 upwards) including VAT unless otherwise stated.
Additional costs: The purchase of the property may be subject to (but are not limited to), VAT (if applicable), reimbursement of the seller’s search fees, reimbursement of seller’s legal and/or sales costs, stamp duty/land transaction tax (LTT). Please check accompanying legal pack for further details.
* Generally speaking Guide Prices are provided as an indication of each seller's minimum expectation, i.e. 'The Reserve'. They are not necessarily figures which a property will sell for and may change at any time prior to the auction. Virtually every property will be offered subject to a Reserve (a figure below which the Auctioneer cannot sell the property during the auction) which we expect will be set within the Guide Range or no more than 10% above a single figure Guide.
As a trusted partner of Paul Fosh Auctions, Together could offer the auction finance you need, when you need it. Visit togethermoney.com for more information.
If considering a mortgage, we advise that you inspect and consider the property carefully with your lender before bidding.
By setting a proxy bid, the system will automatically bid on your behalf to maintain your position as the highest bidder, up to your proxy bid amount. If you are outbid, you will be notified via email so you can opt to increase your bid if you so choose.
If two of more users place identical bids, the bid that was placed first takes precedence, and this includes proxy bids.
Another bidder placed an automatic proxy bid greater or equal to the bid you have just placed. You will need to bid again to stand a chance of winning.