Waiting for video...
This property has been postponed.
ONLINE AUCTION from 4th OCTOBER - 6th OCTOBER
A well-established fish and chip shop with a good client base. The fish and chip shop has been running in excess of 18 years and during this time has proven to be popular with local residents.
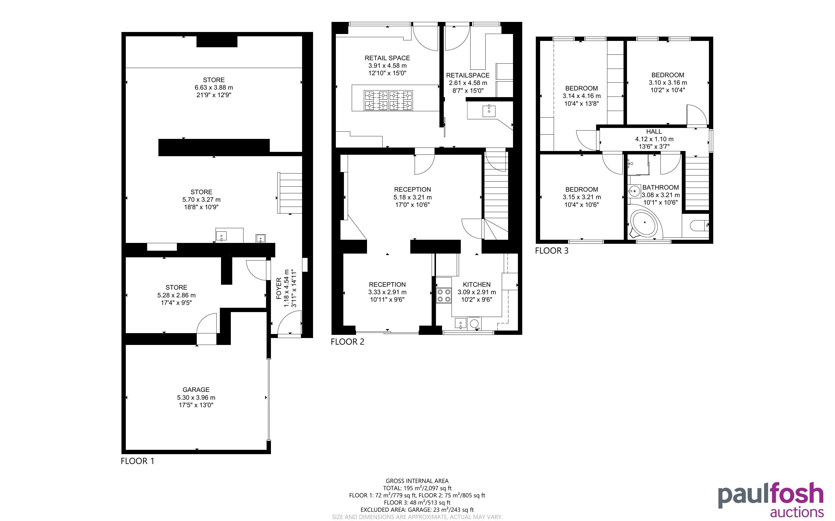
The property briefly comprises of a ground floor retail unit with lower ground preparation/ storage area, a three bed maisonette/ owners accommodation. Subject to the relevant consents there may be possibility to convert the property into a fully residential dwelling.
There is a garden to the rear of the property, and a parcel of land on the opposite side of the lane which subject to the relevant consents may be suitable as a building plot for a double garage.
Benefiting from a roof terrace and garage this property would make the ideal investment for anyone looking to start a business as well as own a family home.
Location
Located in Wainfelin, Pontypool this end of terrace property is situated in a predominately residential area. Within close proximity to local amenities, this property is approximately a 5 minute drive to Pontypool town centre.
Services
Gas water and electric – not tested
Business Rates
This property is currently exempt from business rates
VAT
We have been informed that no VAT is due on the sale of this property.
| Floor | Size (Approx.) |
|---|---|
| Ground Floor (retail) Retail Area Foyer Kitchenette |
151.04 sqft / 14.03 sqm |
| Ground Floor (residential) Kitchen Living room |
63.86 sqft / 5.9 sqm 235.32 sqft / 21.86 sqm |
| Lower Ground Floor / Basement Room 1 Room 2 Room 3 |
220 sqft / 20.4 sqm 218.16 sqft / 20.26 sqm 90.48 sqft / 8.4 sqm |
| First Floor Bedroom 1 Bedroom 2 Bedroom 3 Bathroom |
90 sqft / 8.36 sqm 100 sqft / 9.2 sqm 157.95 sqft / 14.67 71.5 sqft / 6.6 sqm |
This property is to be sold with vacant possession
Auction fees: The sale of each lot is subject to a buyer’s premium/admin fee of 1.5% of the purchase price (subject to a minimum of £1,500 for sale prices between £1 and £50,000 or subject to a minimum of £2,400 for sale prices of £50,001 upwards) including VAT unless otherwise stated.
Additional costs: The purchase of the property may be subject to (but are not limited to), VAT (if applicable), reimbursement of the seller’s search fees, reimbursement of seller’s legal and/or sales costs, stamp duty/land transaction tax (LTT). Please check accompanying legal pack for further details.
* Generally speaking Guide Prices are provided as an indication of each seller's minimum expectation, i.e. 'The Reserve'. They are not necessarily figures which a property will sell for and may change at any time prior to the auction. Virtually every property will be offered subject to a Reserve (a figure below which the Auctioneer cannot sell the property during the auction) which we expect will be set within the Guide Range or no more than 10% above a single figure Guide.
As a trusted partner of Paul Fosh Auctions, Together could offer the auction finance you need, when you need it. Visit togethermoney.com for more information.
If considering a mortgage, we advise that you inspect and consider the property carefully with your lender before bidding.
By setting a proxy bid, the system will automatically bid on your behalf to maintain your position as the highest bidder, up to your proxy bid amount. If you are outbid, you will be notified via email so you can opt to increase your bid if you so choose.
If two of more users place identical bids, the bid that was placed first takes precedence, and this includes proxy bids.
Another bidder placed an automatic proxy bid greater or equal to the bid you have just placed. You will need to bid again to stand a chance of winning.