Waiting for video...
The guide price has been reduced.
ONLINE AUCTION 30th AUGUST - 1st SEPTEMBER
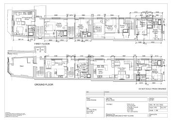
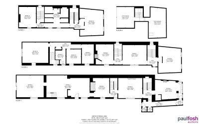
A substantial mid terraced property, situated in the popular town of Carmarthen, which has been cleared and ready for renovation with planning for a 13 bed HMO the property will provide 4 self-contained studio flats and 9 HMO bedrooms with communal areas. Rooms on the first/second floors can be accessed via three staircases. The ground floor has several entrances and offers 4 rooms, open plan room, cloakroom areas. The first floor provides seven rooms. The second floor provides 2 rooms and bath/shower room areas. The third floor offers 2 loft rooms. There is also a small cellar. There is a rear courtyard leading to a large lawned garden part of which has planning/highway consent to create a parking area via a side shared driveway. The vendor has provided a rental valuation of £90,600 by a local independent agent. Please refer to legal documents.
Carmarthen is the county town of Carmarthenshire in Wales, lying on the River Towy. 8 miles (13 km) north of its estuary in Carmarthen Bay. It has a claim to be the oldest town in Wales – Old Carmarthen and New Carmarthen became one borough in 1546. It was the most populous borough in Wales in the 16th–18th centuries. The area provides excellent commuter links via the A40, A48, A484 and A485 and the M4 motorway, which links South Wales with London. Carmarthen railway station is on the West Wales Line has rail links to Cardiff via Swansea to the east and Fishguard Harbour, Milford Haven, Tenby, Pembroke and Pembroke Dock to the west. There are daily direct intercity trains to London. Best beaches in Carmarthenshire include Pendine Sands Beach, Pembrey Beach – LlanellI, Llanelli and Loughor Estuary Beach.
VIRTUAL TOUR
Ground Floor: 4 rooms, open plan room, cloakrooms area
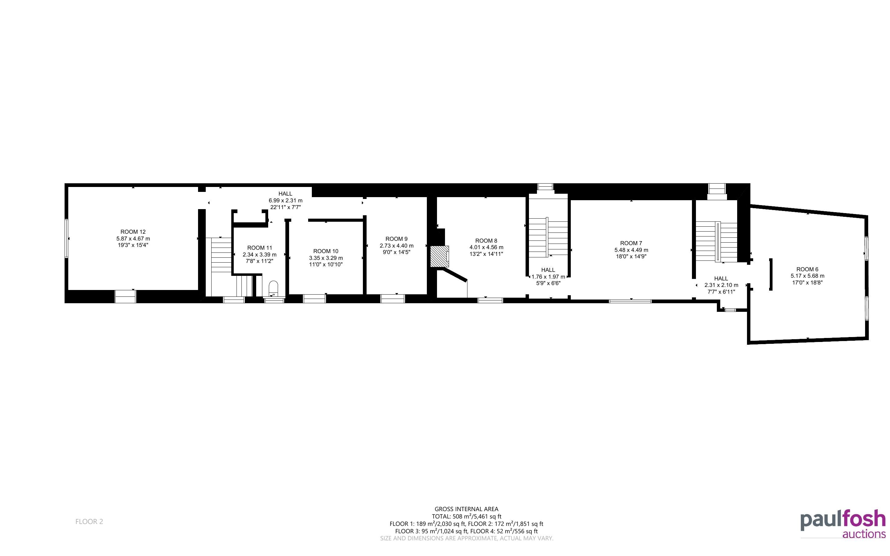
First Floor:7 rooms
Second Floor: 2 rooms, bath/shower rooms area
Third Floor: 2 Loft rooms
Outside: Rear courtyard and lawned gardens (part of which will contain the planned parking)
To be sold with vacant possession
INVESTORS: If you are looking for assistance in tenant find and/or management packages, information on rental income/interest potential we have a Lettings Department that can help you. Please call us or email rhys@paulfoshlettings.com for invaluable advice.
Advised Freehold - to be verified by solicitor
Auction fees: The sale of each lot is subject to a buyer’s premium/admin fee of 1.5% of the purchase price (subject to a minimum of £1,500 for sale prices between £1 and £50,000 or subject to a minimum of £2,400 for sale prices of £50,001 upwards) including VAT unless otherwise stated.
Additional costs: The purchase of the property may be subject to (but are not limited to), VAT (if applicable), reimbursement of the seller’s search fees, reimbursement of seller’s legal and/or sales costs, stamp duty/land transaction tax (LTT). Please check accompanying legal pack for further details.
* Generally speaking Guide Prices are provided as an indication of each seller's minimum expectation, i.e. 'The Reserve'. They are not necessarily figures which a property will sell for and may change at any time prior to the auction. Virtually every property will be offered subject to a Reserve (a figure below which the Auctioneer cannot sell the property during the auction) which we expect will be set within the Guide Range or no more than 10% above a single figure Guide.
As a trusted partner of Paul Fosh Auctions, Together could offer the auction finance you need, when you need it. Visit togethermoney.com for more information.
If considering a mortgage, we advise that you inspect and consider the property carefully with your lender before bidding.
By setting a proxy bid, the system will automatically bid on your behalf to maintain your position as the highest bidder, up to your proxy bid amount. If you are outbid, you will be notified via email so you can opt to increase your bid if you so choose.
If two of more users place identical bids, the bid that was placed first takes precedence, and this includes proxy bids.
Another bidder placed an automatic proxy bid greater or equal to the bid you have just placed. You will need to bid again to stand a chance of winning.