Waiting for video...
The guide price has increased to £145,000+
ONLINE AUCTION from 30th AUGUST-1st SEPTEMBER
A delightful semi detached cottage situated in the highly sought after location of Rogerstone. The property has many original features and offers huge potential. There is an exceptionally spacious rear garden and parking to the front.
The property would be ideal for a homeowner, buy to let investor or holiday let. The local area benefits from a excellent range of amenities and shops and also well regarded schools. There are good road links to the M4 motorway for Cardiff & Bristol.
VIRTUAL TOUR
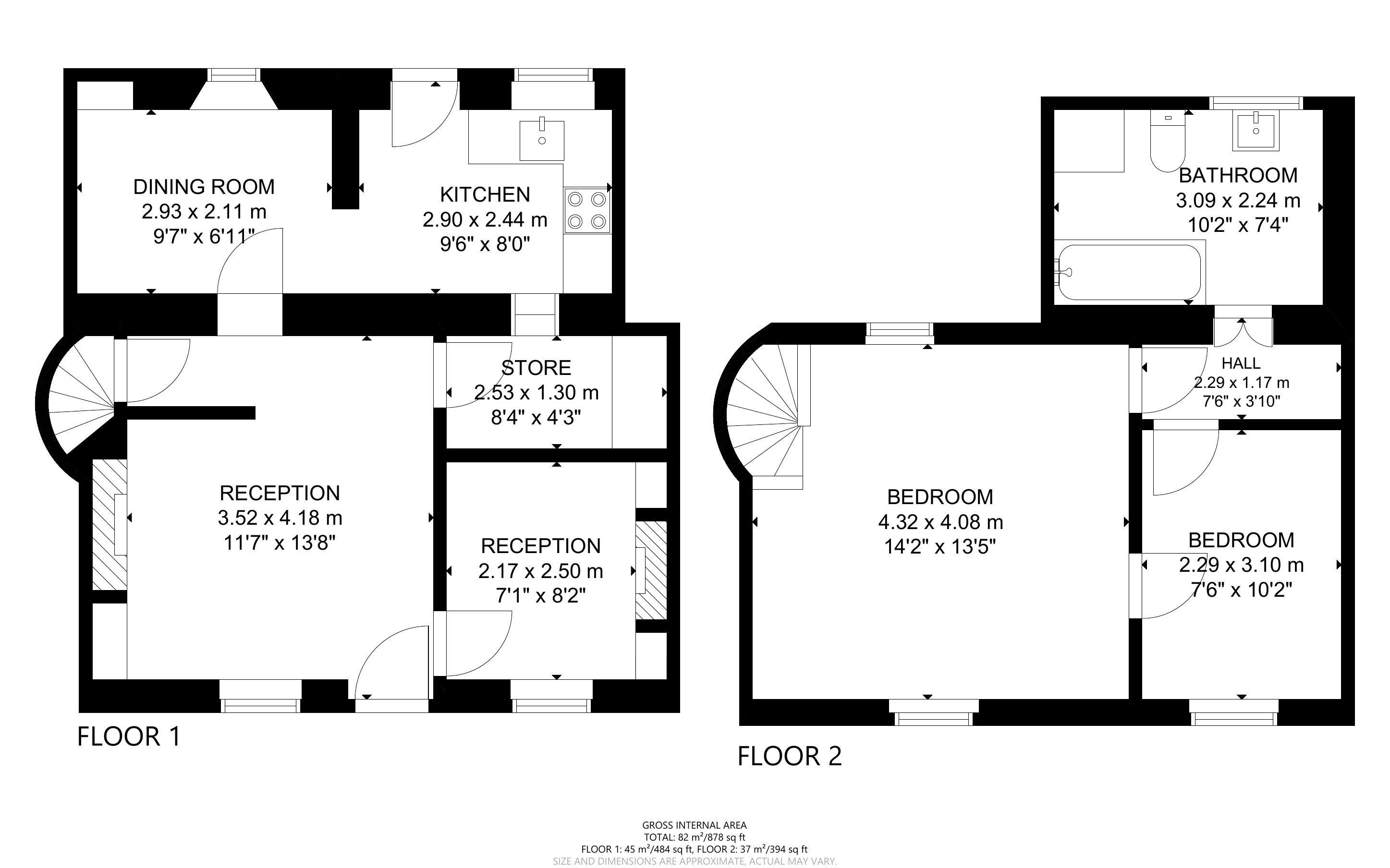
Ground Floor: Entrance, lounge, Study (possible bedroom), kitchen/dining area, pantry
First Floor: 1/2 bedrooms (interconnecting but offers scope to separate), bathroom
Outside: Parking bay to front & exceptionally spacious rear garden with scope to develop the rear part for a sun house similar to other properties close by.
D
To be sold with vacant possession but should let at £950.00 pcm
INVESTORSIf you are looking for assistance in tenant find and/or management packages, information on rental income/interest potential, we have a Lettings Department that can help you. Please call us on 01633 746800 or email rhys@paulfoshlettings.com for invaluable advice.
Advised Freehold - to be verified by solicitor
Auction fees: The sale of each lot is subject to a buyer’s premium/admin fee of 1.5% of the purchase price (subject to a minimum of £1,500 for sale prices between £1 and £50,000 or subject to a minimum of £2,400 for sale prices of £50,001 upwards) including VAT unless otherwise stated.
Additional costs: The purchase of the property may be subject to (but are not limited to), VAT (if applicable), reimbursement of the seller’s search fees, reimbursement of seller’s legal and/or sales costs, stamp duty/land transaction tax (LTT). Please check accompanying legal pack for further details.
* Generally speaking Guide Prices are provided as an indication of each seller's minimum expectation, i.e. 'The Reserve'. They are not necessarily figures which a property will sell for and may change at any time prior to the auction. Virtually every property will be offered subject to a Reserve (a figure below which the Auctioneer cannot sell the property during the auction) which we expect will be set within the Guide Range or no more than 10% above a single figure Guide.
As a trusted partner of Paul Fosh Auctions, Together could offer the auction finance you need, when you need it. Visit togethermoney.com for more information.
If considering a mortgage, we advise that you inspect and consider the property carefully with your lender before bidding.
By setting a proxy bid, the system will automatically bid on your behalf to maintain your position as the highest bidder, up to your proxy bid amount. If you are outbid, you will be notified via email so you can opt to increase your bid if you so choose.
If two of more users place identical bids, the bid that was placed first takes precedence, and this includes proxy bids.
Another bidder placed an automatic proxy bid greater or equal to the bid you have just placed. You will need to bid again to stand a chance of winning.