Waiting for video...
ONLINE AUCTION from 30th AUGUST-1st SEPTEMBER
The site is briefly comprised of a former recording studio and two out-buildings which were previously used as office and studio facilities. Additionally, there is a large yard to the rear which subject to the relevant consents could offer parking spaces, or scope for additional development.
As the property is currently a commercial building it may able be suitable for a variety of uses such as a microbrewery, recording studio or storage. Subject to the relevant consents, this property may make an ideal investment for residential housing, AirBnB or student accommodation.
Location
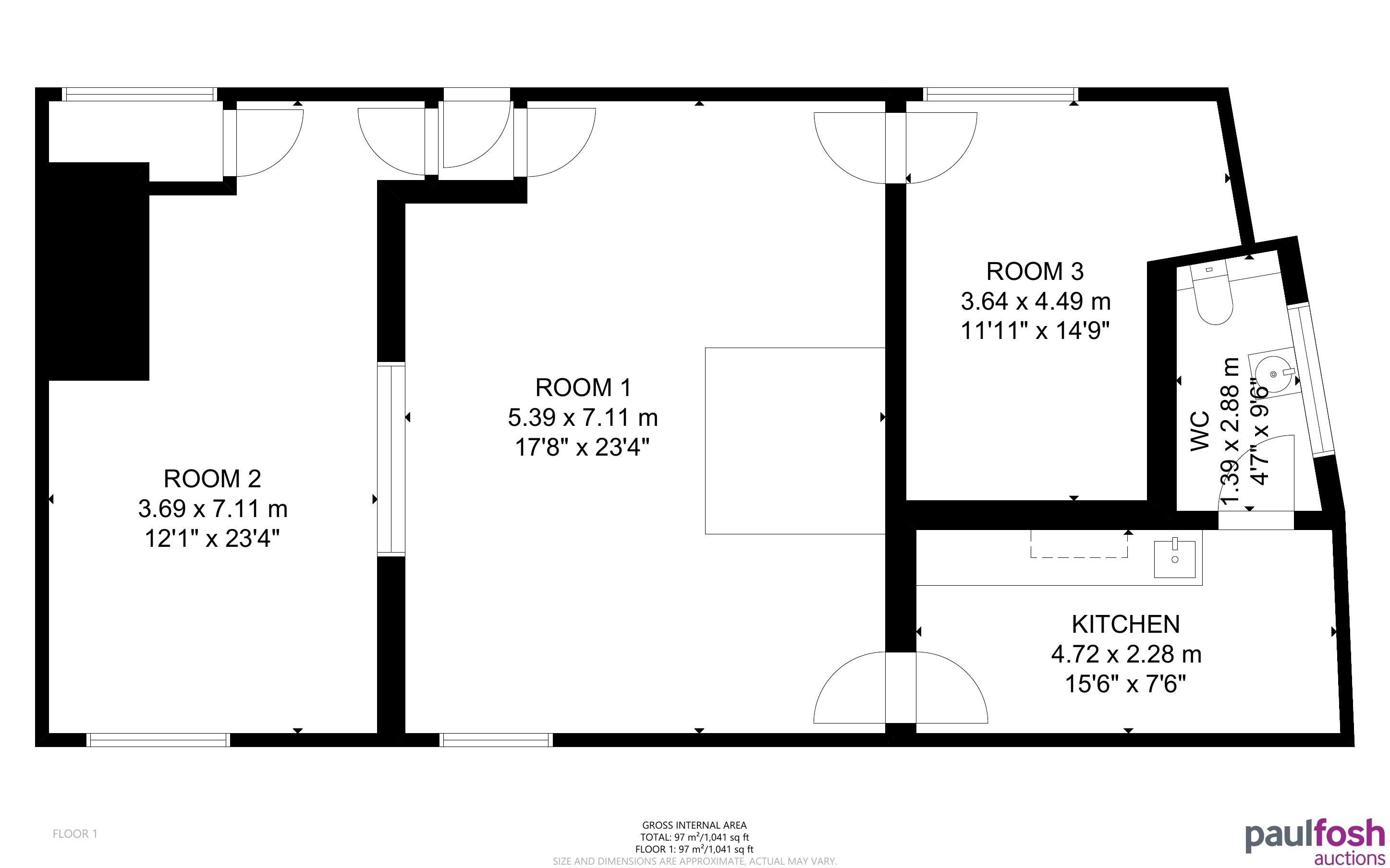
Located in a prime position in Swansea, close to Swansea University, Singleton Hospital and a short walk from the beach. The site is approximately 485sqm, (5214sqft) and includes a two storey former recording studio GIA 184sqm (1981sqft), and there is a further two storey building GIA 146sqm (1572sqft).
Planning Permission
The property currently has outline planning permission for one pair of semi-detached dwellings – planning reference 2021/0998/S73. Furthermore, outline planning permission has been granted for two residential flats – planning reference 2020/1498/S73.
Services
The site is secure and we have been informed that water, power and drainage services all connected.
Business Rates
Current rateable value is £1,300. The property is classified as 'Store and premises'.
VAT
Vendor has advised that there is no VAT due on the sale of this property (to be confirmed by a solicitor)
VIRTUAL TOUR:
| Floor | Area Sq Ft | Area Sq M |
|---|---|---|
| Two Storey Former Recording Studio | 1,981 | 184 |
| Two Storey Building | 1,572 | 146 |
| Total Site | 5,214 | 485 |
Outside: Yard
Auction fees: The sale of each lot is subject to a buyer’s premium/admin fee of 1.5% of the purchase price (subject to a minimum of £1,500 for sale prices between £1 and £50,000 or subject to a minimum of £2,400 for sale prices of £50,001 upwards) including VAT unless otherwise stated.
Additional costs: The purchase of the property may be subject to (but are not limited to), VAT (if applicable), reimbursement of the seller’s search fees, reimbursement of seller’s legal and/or sales costs, stamp duty/land transaction tax (LTT). Please check accompanying legal pack for further details.
* Generally speaking Guide Prices are provided as an indication of each seller's minimum expectation, i.e. 'The Reserve'. They are not necessarily figures which a property will sell for and may change at any time prior to the auction. Virtually every property will be offered subject to a Reserve (a figure below which the Auctioneer cannot sell the property during the auction) which we expect will be set within the Guide Range or no more than 10% above a single figure Guide.
As a trusted partner of Paul Fosh Auctions, Together could offer the auction finance you need, when you need it. Visit togethermoney.com for more information.
If considering a mortgage, we advise that you inspect and consider the property carefully with your lender before bidding.
By setting a proxy bid, the system will automatically bid on your behalf to maintain your position as the highest bidder, up to your proxy bid amount. If you are outbid, you will be notified via email so you can opt to increase your bid if you so choose.
If two of more users place identical bids, the bid that was placed first takes precedence, and this includes proxy bids.
Another bidder placed an automatic proxy bid greater or equal to the bid you have just placed. You will need to bid again to stand a chance of winning.