Waiting for video...
ONLINE AUCTION from 26th JULY - 28TH JULY
A substantial freehold building comprising of ground floor offices and a spacious maisonette above. The property has been fully let until recently and enjoyed good occupancy historically but is now offered with vacant possession. Both the offices and the maisonette benefit from gas central heating (not tested) with their own boilers and the building has partial UPVC double glazing. There may be scope for change of use and conversion of the ground floor to a flat (subject to necessary planning consents).
There is a rear carpark with space for several vehicles, and we are informed there was previous planning for a rear extension but all enquires should be made via the local authority. The Town of Haverfordwest is the most populous area in Pembrokeshire and is the county’s administrivia area and also has a wealth of shops both with local and national traders. The town is also convenient for the coast and the national park making it ideal for potential holiday let/Airbnb.
INVESTORS: If you are looking for assistance in tenant find and/or management packages, information on rental income/interest potential we have a Lettings Department that can help you. Please call us or email rhys@paulfoshlettings.com for invaluable advice.
VIRTUAL TOUR
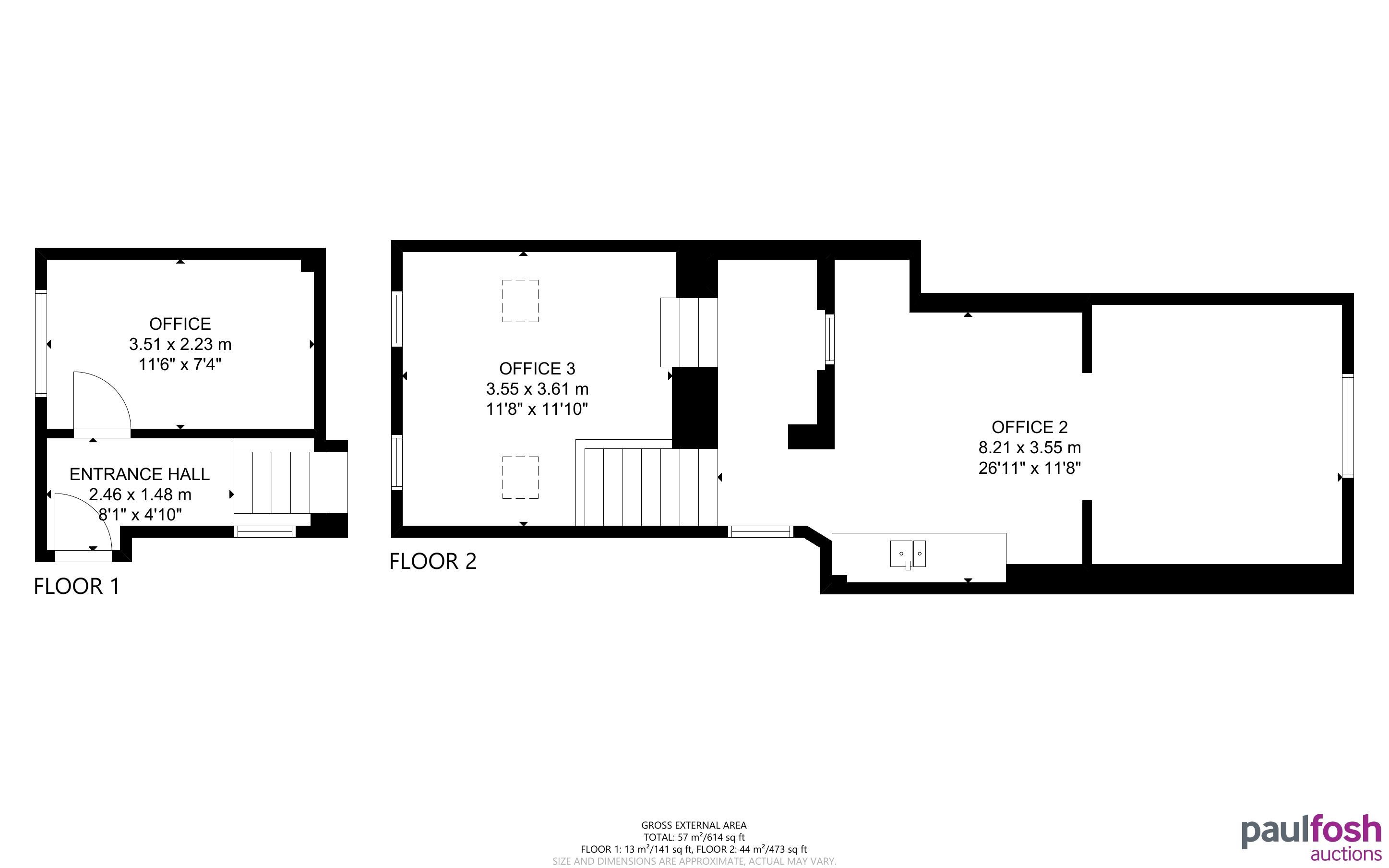
Ground floor: Main office to front leading to kitchenette and lower office
Lower Ground floor: Basement and w/c
Maisonette: (with access from Dark Street or rear carpark)
Ground Floor: Entrance hallway
First Floor: Landing, kitchen, lounge/diner
Second Floor: Landing, 2 bedrooms, bathroom
Third floor: Attic space
Outside: Rear carpark which is accessed from the Castle Park with ample parking for several vehicles
Office: To be sold with vacant possession. Was previously let at £500pcm
Maisonette:To be sold with vacant possession. Was recently let for £550pcm but would let for higher if offered now, potentially £650/700pcm.
Potential annual income approx. £20,400 per annum.
Auction fees: The sale of each lot is subject to a buyer’s premium/admin fee of 1.5% of the purchase price (subject to a minimum of £1,500 for sale prices between £1 and £50,000 or subject to a minimum of £2,400 for sale prices of £50,001 upwards) including VAT unless otherwise stated.
Additional costs: The purchase of the property may be subject to (but are not limited to), VAT (if applicable), reimbursement of the seller’s search fees, reimbursement of seller’s legal and/or sales costs, stamp duty/land transaction tax (LTT). Please check accompanying legal pack for further details.
* Generally speaking Guide Prices are provided as an indication of each seller's minimum expectation, i.e. 'The Reserve'. They are not necessarily figures which a property will sell for and may change at any time prior to the auction. Virtually every property will be offered subject to a Reserve (a figure below which the Auctioneer cannot sell the property during the auction) which we expect will be set within the Guide Range or no more than 10% above a single figure Guide.
As a trusted partner of Paul Fosh Auctions, Together could offer the auction finance you need, when you need it. Visit togethermoney.com for more information.
If considering a mortgage, we advise that you inspect and consider the property carefully with your lender before bidding.
By setting a proxy bid, the system will automatically bid on your behalf to maintain your position as the highest bidder, up to your proxy bid amount. If you are outbid, you will be notified via email so you can opt to increase your bid if you so choose.
If two of more users place identical bids, the bid that was placed first takes precedence, and this includes proxy bids.
Another bidder placed an automatic proxy bid greater or equal to the bid you have just placed. You will need to bid again to stand a chance of winning.