Waiting for video...
ONLINE AUCTION from 26th JULY-28th JULY
A substantial freehold building comprising two commercial units and two flats. The property occupies a main road position on the west side of Briton Ferry close to link roads for the M4 motorway and Swansea.
The property has been well managed and maintained and improvements including new roof, partial UPVC double glazing and gas central heating (not tested) in each of the units and flats.
Flat 32a has been let for approximately 5 years to the same tenant who has just vacated but demand is high for this type and size of accommodation.
Council Tax Band
32a B
32b A
VIRTUAL TOUR
;
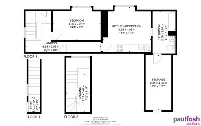
Ground Floor:
(Sports Therapy) Unit 2 (right): Reception area, 2 treatment rooms, kitchen and w/c
(Call Centre) Unit 1 (left): Office, rear kitchen and w/c
Middle Floor: Flat 32a: Entrance hall, lounge, 3 bedrooms, kitchen and bathroom (could be utilised as 2 reception rooms and 2 bedrooms if required)
Top Floor: Flat 32b: Entrance hall, lounge, bedroom, kitchen, bathroom and attic/storage space
Outside: Rear Garden area with tiered garden and storage shed
A
Unit 1 let at £400 pcm
Unit 2 let at £385 pcm
Flat 32a let until recently at £473 pcm but could achieve £550 pcm
Flat 32b let on AST at £385 pcm (but could acheive £450 pcm)
Total annual income currently £14,040
Total potential annual income when fully let at the suggested higher rent £21,420
Investors: If you are looking for assistance in tenant find and/or management packages, information on rental income/interest potential we have a Lettings Department that can help you. Please call us or email rhys@paulfoshlettings.com for invaluable advice.
Advised Freehold - to be verified by solicitor
Auction fees: The sale of each lot is subject to a buyer’s premium/admin fee of 1.5% of the purchase price (subject to a minimum of £1,500 for sale prices between £1 and £50,000 or subject to a minimum of £2,400 for sale prices of £50,001 upwards) including VAT unless otherwise stated.
Additional costs: The purchase of the property may be subject to (but are not limited to), VAT (if applicable), reimbursement of the seller’s search fees, reimbursement of seller’s legal and/or sales costs, stamp duty/land transaction tax (LTT). Please check accompanying legal pack for further details.
* Generally speaking Guide Prices are provided as an indication of each seller's minimum expectation, i.e. 'The Reserve'. They are not necessarily figures which a property will sell for and may change at any time prior to the auction. Virtually every property will be offered subject to a Reserve (a figure below which the Auctioneer cannot sell the property during the auction) which we expect will be set within the Guide Range or no more than 10% above a single figure Guide.
As a trusted partner of Paul Fosh Auctions, Together could offer the auction finance you need, when you need it. Visit togethermoney.com for more information.
If considering a mortgage, we advise that you inspect and consider the property carefully with your lender before bidding.
By setting a proxy bid, the system will automatically bid on your behalf to maintain your position as the highest bidder, up to your proxy bid amount. If you are outbid, you will be notified via email so you can opt to increase your bid if you so choose.
If two of more users place identical bids, the bid that was placed first takes precedence, and this includes proxy bids.
Another bidder placed an automatic proxy bid greater or equal to the bid you have just placed. You will need to bid again to stand a chance of winning.