Waiting for video...
ONLINE AUCTION from 30th AUGUST-1st SEPTEMBER
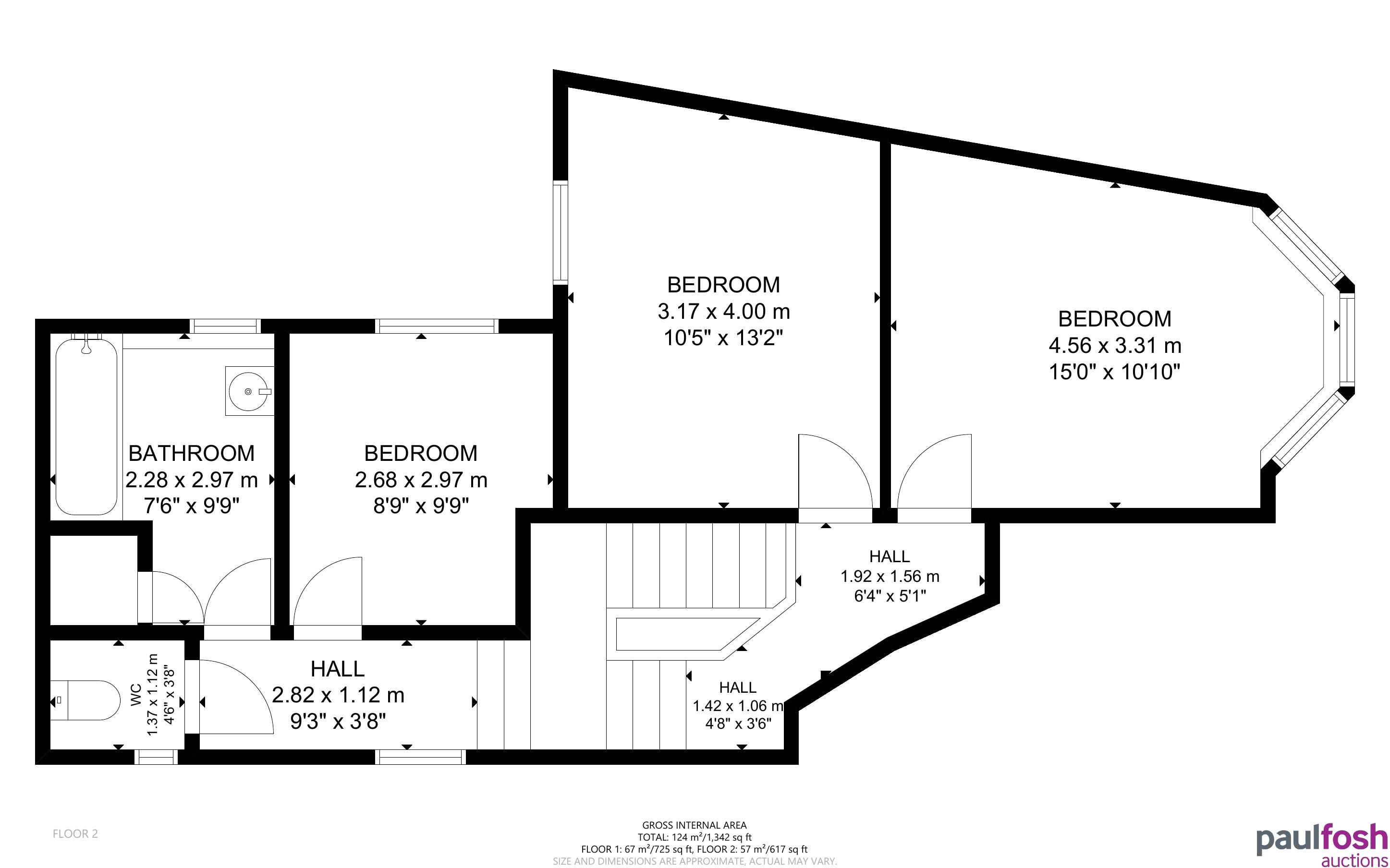
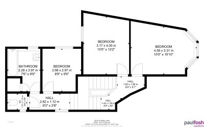
A semi-detached house requiring complete refurbishment and located in the popular area of Skewen. The property, still retaining some original features, offers lounge, dining room and kitchen plus three double bedrooms and a bathroom. The large attic could lend itself to conversion (subject to the necessary planning consents). The garden is currently overgrown and inaccessible. The property is to be sold with vacant possession.
Skewen is a village within the county borough of Neath Port Talbot, in Wales and is served by Skewen railway station. Skewen was once an industrial village and old top-loading blast furnaces can also be seen at Neath Abbey. To the south of Skewen lies the village of Llandarcy, the site of the country's first oil refinery. The site of this former oil refinery is now being developed as an urban village called Coed Darcy, a development which was promoted at its start by the Prince of Wales's Foundation for the Built Environment. The singer Bonnie Tyler was born here.
VIRTUAL TOUR
Ground Floor: Lounge, dining room, kitchen
First Floor: 3 double bedrooms, bathroom
Outside: Rear garden - currently overgrown and inaccessible
B
To be sold with vacant possession
Investors: If you are looking for assistance in tenant find and/or management packages, information on rental income/interest potential we have a Lettings Department that can help you. Please call us or email rhys@paulfoshlettings.com for invaluable advice.
Advised Freehold - to be verified by solicitor
Auction fees: The sale of each lot is subject to a buyer’s premium/admin fee of 1.5% of the purchase price (subject to a minimum of £1,500 for sale prices between £1 and £50,000 or subject to a minimum of £2,400 for sale prices of £50,001 upwards) including VAT unless otherwise stated.
Additional costs: The purchase of the property may be subject to (but are not limited to), VAT (if applicable), reimbursement of the seller’s search fees, reimbursement of seller’s legal and/or sales costs, stamp duty/land transaction tax (LTT). Please check accompanying legal pack for further details.
* Generally speaking Guide Prices are provided as an indication of each seller's minimum expectation, i.e. 'The Reserve'. They are not necessarily figures which a property will sell for and may change at any time prior to the auction. Virtually every property will be offered subject to a Reserve (a figure below which the Auctioneer cannot sell the property during the auction) which we expect will be set within the Guide Range or no more than 10% above a single figure Guide.
As a trusted partner of Paul Fosh Auctions, Together could offer the auction finance you need, when you need it. Visit togethermoney.com for more information.
If considering a mortgage, we advise that you inspect and consider the property carefully with your lender before bidding.
By setting a proxy bid, the system will automatically bid on your behalf to maintain your position as the highest bidder, up to your proxy bid amount. If you are outbid, you will be notified via email so you can opt to increase your bid if you so choose.
If two of more users place identical bids, the bid that was placed first takes precedence, and this includes proxy bids.
Another bidder placed an automatic proxy bid greater or equal to the bid you have just placed. You will need to bid again to stand a chance of winning.