Waiting for video...
ONLINE AUCTION from 26th JULY-28th JULY
A substantial freehold building comprising a ground floor retail unit and 3 floors of ancillary accommodation above. The building is let to Ladbrokes the bookmakers however we are informed that there may be scope to renegotiate the lease for occupation of the ground floor to allow future development of the upper floors to residential.
The upper floors should offer the potential to develop 4 possibly 5 flats subject to planning and would be in an ideal location for letting. The town of Porth is currently seeing a huge amount of regeneration and investment with the ongoing development of the Transport hub just opposite the property. There may be an opportunity for Grants and all enquires should be made via the local authority.
INVESTORS If you are looking for assistance in tenant find and/or management packages, information on rental income/interest potential we have a Lettings Department that can help you. Please call us or email rhys@paulfoshlettings.com for invaluable advice.
VIRTUAL TOUR
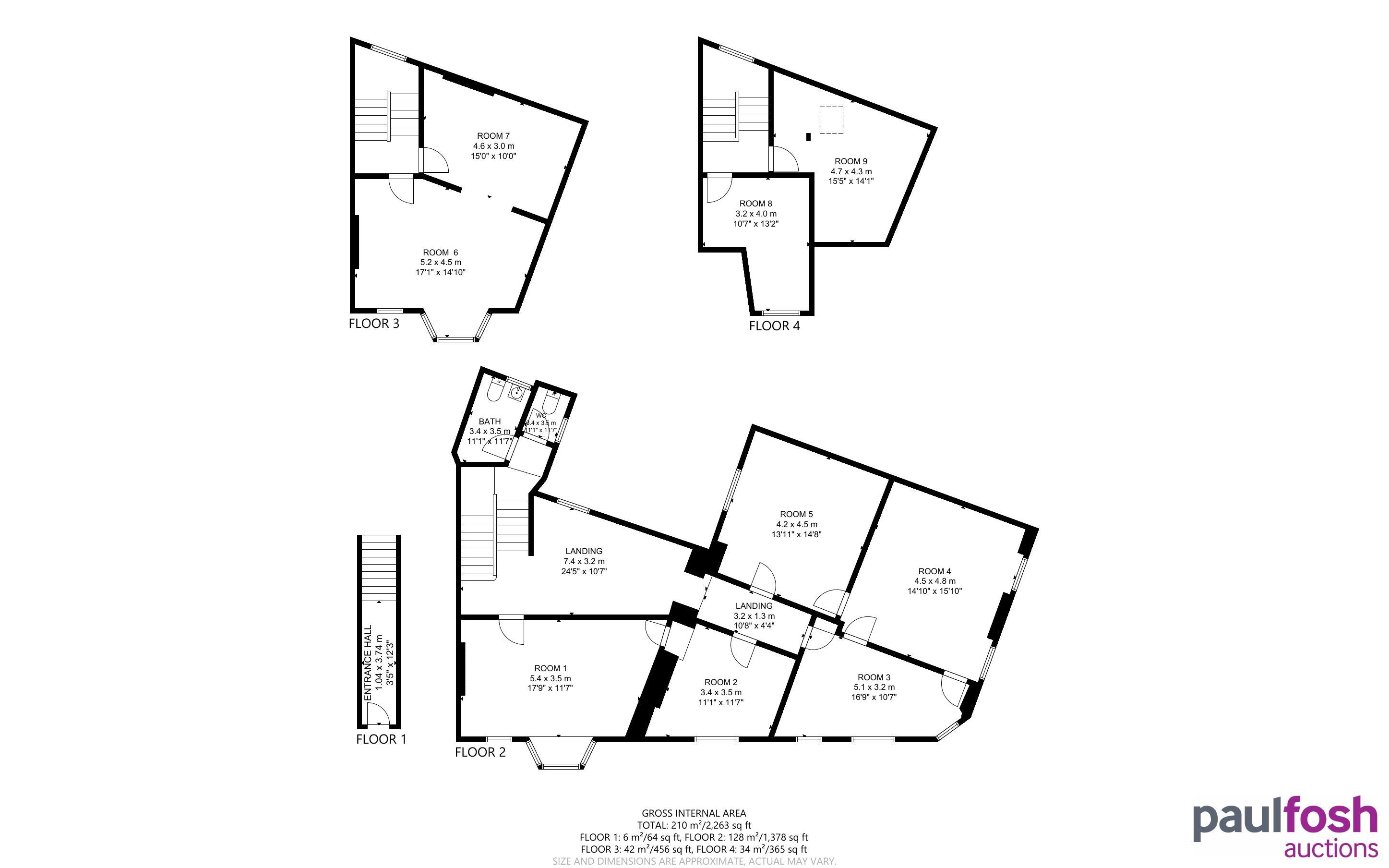
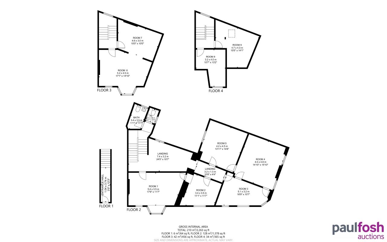
Please note no internal inspection was available on the ground floor however we believe it comprises
Ground Floor: Retail sales area, rear offices and kitchen and w/c
First Floor: Landing, 4 rooms
Second Floor: 2 rooms
Third Floor: 2 rooms
The property is Let on 5 year lease from 2020 at £12,750 p/a
Advised Freehold - to be verified by solicitor
Auction fees: The sale of each lot is subject to a buyer’s premium/admin fee of 1.5% of the purchase price (subject to a minimum of £1,500 for sale prices between £1 and £50,000 or subject to a minimum of £2,400 for sale prices of £50,001 upwards) including VAT unless otherwise stated.
Additional costs: The purchase of the property may be subject to (but are not limited to), VAT (if applicable), reimbursement of the seller’s search fees, reimbursement of seller’s legal and/or sales costs, stamp duty/land transaction tax (LTT). Please check accompanying legal pack for further details.
* Generally speaking Guide Prices are provided as an indication of each seller's minimum expectation, i.e. 'The Reserve'. They are not necessarily figures which a property will sell for and may change at any time prior to the auction. Virtually every property will be offered subject to a Reserve (a figure below which the Auctioneer cannot sell the property during the auction) which we expect will be set within the Guide Range or no more than 10% above a single figure Guide.
As a trusted partner of Paul Fosh Auctions, Together could offer the auction finance you need, when you need it. Visit togethermoney.com for more information.
If considering a mortgage, we advise that you inspect and consider the property carefully with your lender before bidding.
By setting a proxy bid, the system will automatically bid on your behalf to maintain your position as the highest bidder, up to your proxy bid amount. If you are outbid, you will be notified via email so you can opt to increase your bid if you so choose.
If two of more users place identical bids, the bid that was placed first takes precedence, and this includes proxy bids.
Another bidder placed an automatic proxy bid greater or equal to the bid you have just placed. You will need to bid again to stand a chance of winning.