Waiting for video...
ONLINE AUCTION from 21st JUNE- 23rd JUNE
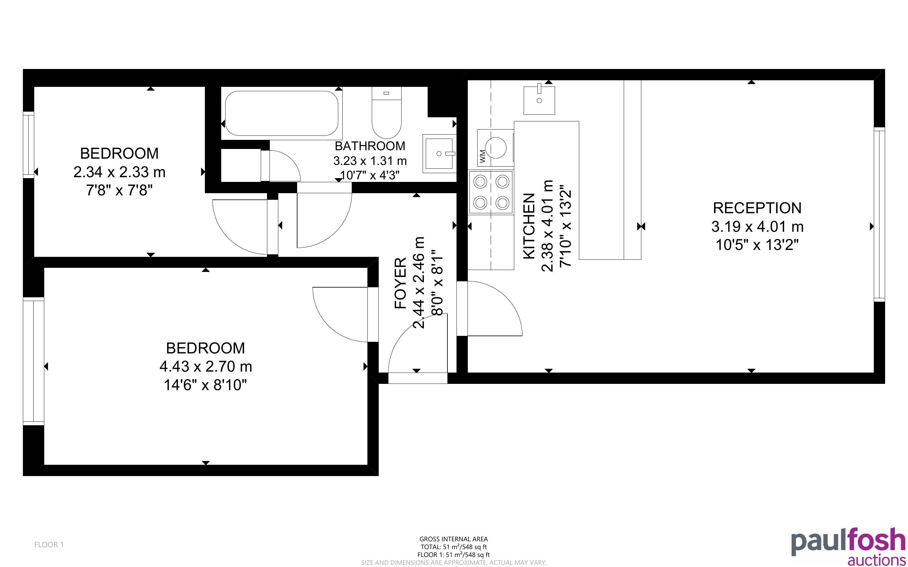
A ground floor two bedroomed flat set in a two storey purpose built apartment block of eight flats, situated in a pleasant position being opposite Victoria Gardens which boasts elevated views. The property benefits from a secured communal garage with allocated parking for one car accessed via the rear with additional pedestrian gated access via the front of the building. The accommodation consists of open plan lounge and kitchen, bathroom and two bedrooms. There is a public parking bay to the front of the property with no current restrictions. The property is to be sold with tenant in situ who has been at the property for eleven years and would very much like to stay. The tenant pays £395 per month though we estimate a more accurate rent to be around £550 per month in the current rental market. There are shopping facilities close by. Barry Island pleasure beach is approximately 2.6 miles away which is famous for its golden beaches, family amusements, colourful beach huts and, of course, the highly acclaimed “Gavin & Stacey” BBC 1 series. Excellent commuter links via the M4.
Barry is a vibrant coastal town with a bustling High Street, gorgeous parks and the Goodsheds and Innovation Quarter – a shopping, eating and relaxing destination featuring independent businesses in an industrial heritage setting. Nearby is Porthkerry Country Park, a haven for wildlife with a café and digital AR trail, Barry Tourist Railway & War Museum, RNLI Visitor Centre, Wales Coast Path and Vale Trail 4.
N.B. Following the dissolution of the previous freeholder a Special condition of the sale includes the transfer of ownership of one ordinary share in ‘Church Road Apartments Limited’. Please refer to the legal pack for further information.
Investors:If you are looking for assistance in tenant find and/or management packages, information on rental income/interest potential we have a Lettings Department that can help you. Please call us or email rhys@paulfoshlettings.com for invaluable advice.
VIRTUAL TOUR
Ground floor: Open plan lounge and kitchen, 2 bedrooms, bathroom
Outside: Rear communal garden area, gated commiunal garage (servicing 8 properties) with allocated parking area
To be sold with tenant in situ who is holding over on a 6 monthly AST periodic tenancy basis.
Advised Leasehold - To be verified by a solicitor
Long leasehold, already extended to 24/03/2177 Approx. 155 years remaining.
Auction fees: The sale of each lot is subject to a buyer’s premium/admin fee of 1.5% of the purchase price (subject to a minimum of £1,500 for sale prices between £1 and £50,000 or subject to a minimum of £2,400 for sale prices of £50,001 upwards) including VAT unless otherwise stated.
Additional costs: The purchase of the property may be subject to (but are not limited to), VAT (if applicable), reimbursement of the seller’s search fees, reimbursement of seller’s legal and/or sales costs, stamp duty/land transaction tax (LTT). Please check accompanying legal pack for further details.
* Generally speaking Guide Prices are provided as an indication of each seller's minimum expectation, i.e. 'The Reserve'. They are not necessarily figures which a property will sell for and may change at any time prior to the auction. Virtually every property will be offered subject to a Reserve (a figure below which the Auctioneer cannot sell the property during the auction) which we expect will be set within the Guide Range or no more than 10% above a single figure Guide.
As a trusted partner of Paul Fosh Auctions, Together could offer the auction finance you need, when you need it. Visit togethermoney.com for more information.
If considering a mortgage, we advise that you inspect and consider the property carefully with your lender before bidding.
By setting a proxy bid, the system will automatically bid on your behalf to maintain your position as the highest bidder, up to your proxy bid amount. If you are outbid, you will be notified via email so you can opt to increase your bid if you so choose.
If two of more users place identical bids, the bid that was placed first takes precedence, and this includes proxy bids.
Another bidder placed an automatic proxy bid greater or equal to the bid you have just placed. You will need to bid again to stand a chance of winning.