Waiting for video...
ONLINE AUCTION from 21st JUNE-23rd JUNE
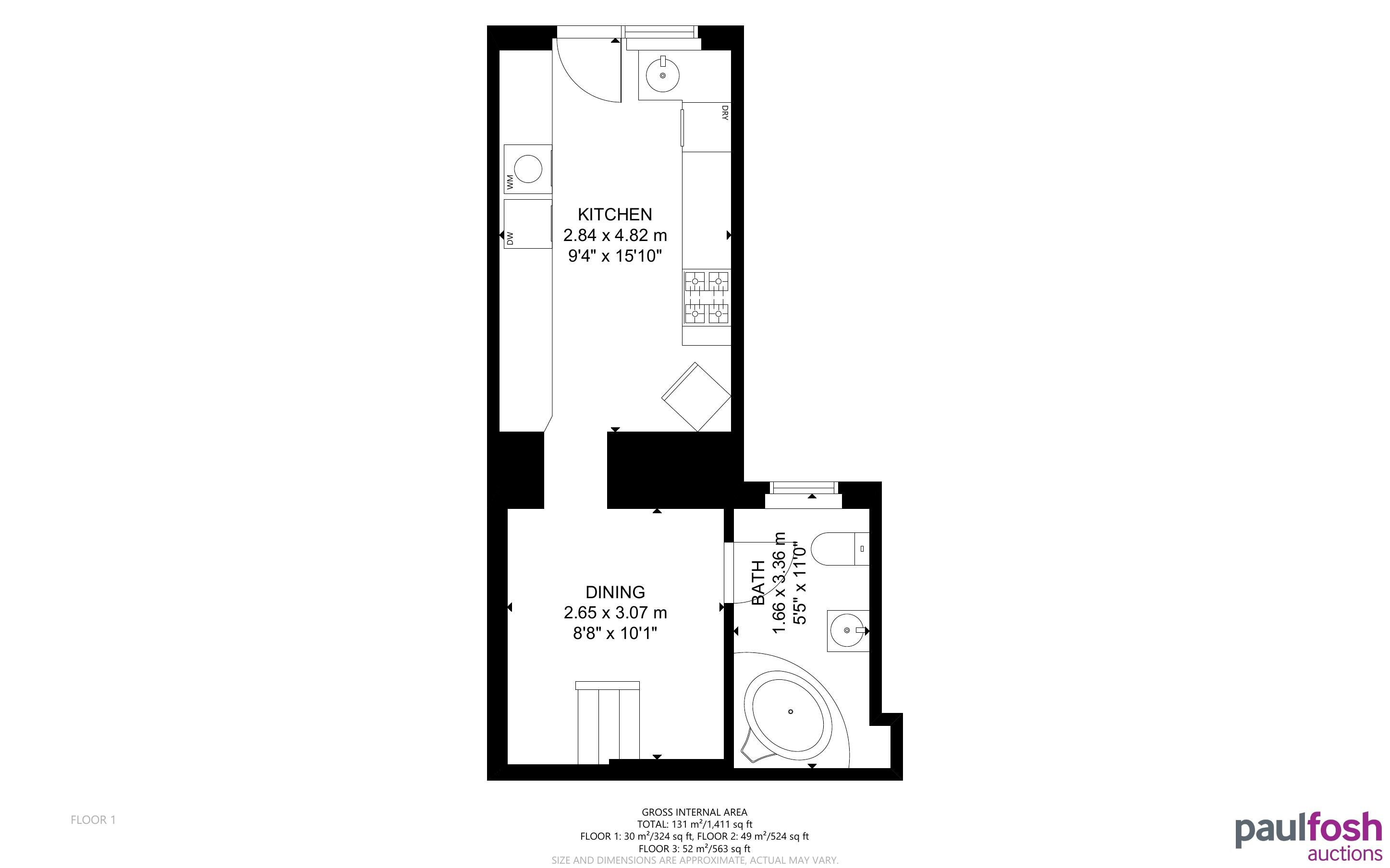
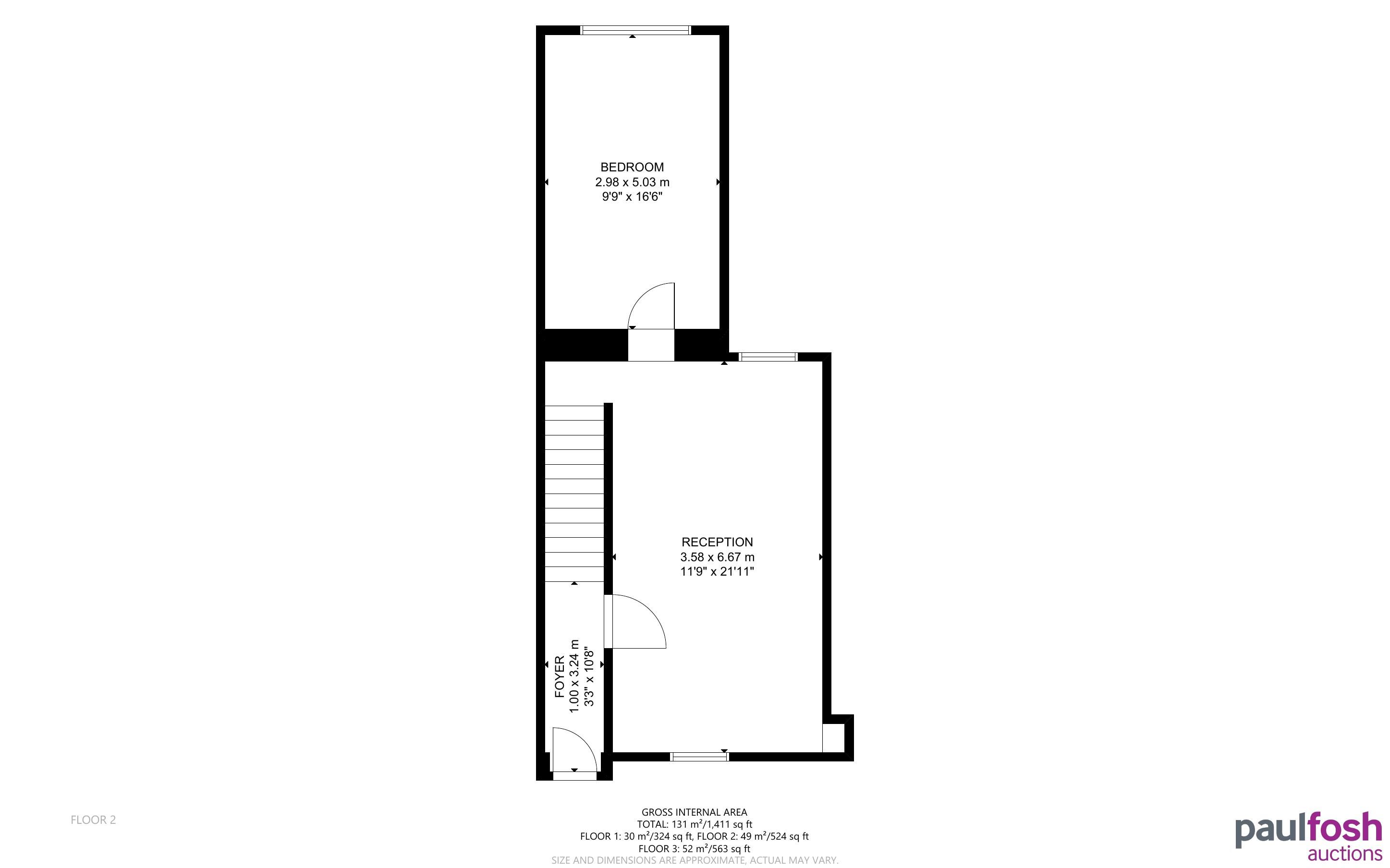
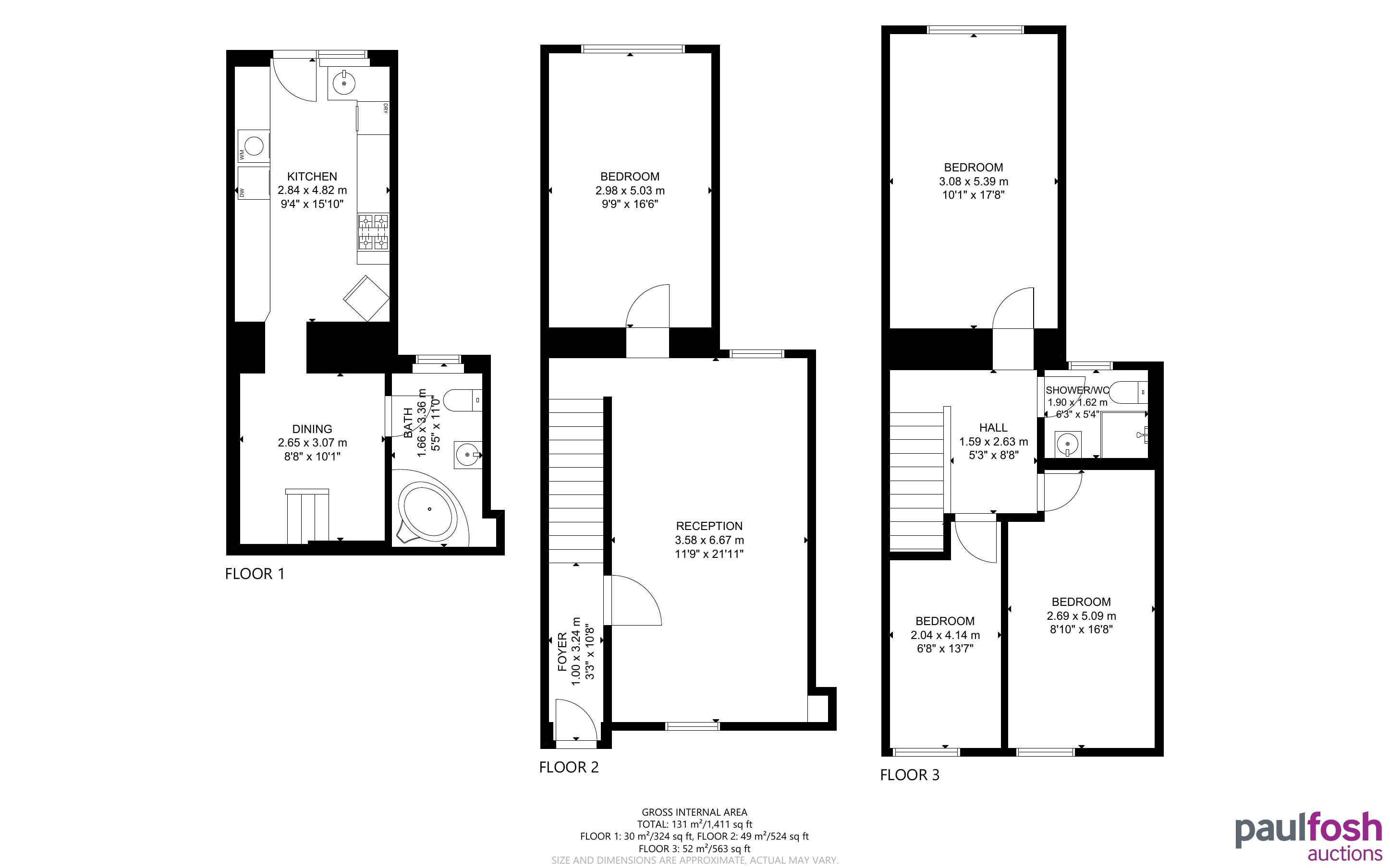
A spacious mid terrace house situated in the popular Mountain Ash area, benefitting from far reaching hillside views. Situated over three floors the accommodation consists of lounge/diner, dining room (currently bedroom 4), kitchen, breakfast room, bathroom, shower room and three bedrooms . The rear garden is terraced with a patio leading down to lawned garden. The property is to be sold with tenant in situ with a rent of £375 per month though a rent of approximately £500 could be achieved in the current market. The current tenant would very much like to stay.
Mountain Ash is a town and former community in the Cynon Valley, within the County Borough of Rhondda Cynon Taff, Wales, Aberdare lies about 4.5 miles (7.2 km) north-west, Cardiff 19 miles (31 km) south-east, and Penrhiwceiber a mile to the south-east. It divides into two electoral wards: West covers the town centre and the districts of Miskin, Darranlas, Fernhill and Glenboi, and East the districts of Cefnpennar, Cwmpennar, Caegarw and Newtown.
Investors: If you are looking for assistance in tenant find and/or management packages, information on rental income/interest potential we have a Lettings Department that can help you. Please call us or email rhys@paulfoshlettings.com for invaluable advice.
VIRTUAL TOUR
Lower ground floor: Breakfast room, kitchen, bathroom
Ground floor: Lounge/dining room
First Floor: 3 bedrooms, shower room
Outside: Terraced rear garden with patio and lawned area
To be sold with tenant in situ.
Advised Freehold - to be verified by solicitor
Auction fees: The sale of each lot is subject to a buyer’s premium/admin fee of 1.5% of the purchase price (subject to a minimum of £1,500 for sale prices between £1 and £50,000 or subject to a minimum of £2,400 for sale prices of £50,001 upwards) including VAT unless otherwise stated.
Additional costs: The purchase of the property may be subject to (but are not limited to), VAT (if applicable), reimbursement of the seller’s search fees, reimbursement of seller’s legal and/or sales costs, stamp duty/land transaction tax (LTT). Please check accompanying legal pack for further details.
* Generally speaking Guide Prices are provided as an indication of each seller's minimum expectation, i.e. 'The Reserve'. They are not necessarily figures which a property will sell for and may change at any time prior to the auction. Virtually every property will be offered subject to a Reserve (a figure below which the Auctioneer cannot sell the property during the auction) which we expect will be set within the Guide Range or no more than 10% above a single figure Guide.
As a trusted partner of Paul Fosh Auctions, Together could offer the auction finance you need, when you need it. Visit togethermoney.com for more information.
If considering a mortgage, we advise that you inspect and consider the property carefully with your lender before bidding.
By setting a proxy bid, the system will automatically bid on your behalf to maintain your position as the highest bidder, up to your proxy bid amount. If you are outbid, you will be notified via email so you can opt to increase your bid if you so choose.
If two of more users place identical bids, the bid that was placed first takes precedence, and this includes proxy bids.
Another bidder placed an automatic proxy bid greater or equal to the bid you have just placed. You will need to bid again to stand a chance of winning.