Waiting for video...
ONLINE AUCTION from 21st JUNE-23rd JUNE
A former care home situated in an affluent area of Newport. The property is located in a prime strategic location close to the border of England and Wales. It benefits from excellent access to the M4 motorway and wider motorway network and provides regular train services to London Paddington. The City has an immediate population of approximately 137,000.
The property is located on Fields Park Road in an desirable part of the city. Access to the M4 motorway at junction 27 is approximately one mile to the west. Newport train station is within a 15 minute walk.
The surrounding area provides largely residential occupiers. There is also a selection of local amenities including shops, bars and cafes all within walking distance.
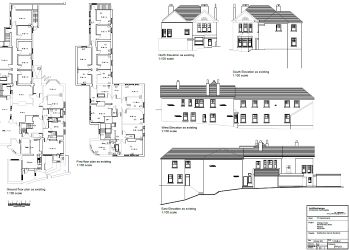
The property provides a large three storey, detached building previously used as a nursing home which could accommodate 30 residents. The building provides kitchen, lounge, dining room, office, bathrooms and bedroom accommodation.
The building is situated on a spacious parcel of land which may provide scope for further development (subject the relevant consent).
There is parking at the property for nine vehicles.
Planning: Planning permission has been granted for nine, self-contained luxury apartments. Further details regarding the planning consent can be found via Newport City Council – planning reference 21/1101
Luxury apartments in this area are well sought after, with the anticipated GDV for this property being £2.15m
Additionally, the SA01 agreement has been agreed at £0 contributions with no requirement for social housing.
Outside: Garden and parking
Please Note: Offers are invited – further documentation can be requested by contacting our offices directly.
VIRTUAL TOUR
To be sold with vacant possession
Advised Freehold - to be verified by solicitor
Auction fees: The sale of each lot is subject to a buyer’s premium/admin fee of 1.5% of the purchase price (subject to a minimum of £1,500 for sale prices between £1 and £50,000 or subject to a minimum of £2,400 for sale prices of £50,001 upwards) including VAT unless otherwise stated.
Additional costs: The purchase of the property may be subject to (but are not limited to), VAT (if applicable), reimbursement of the seller’s search fees, reimbursement of seller’s legal and/or sales costs, stamp duty/land transaction tax (LTT). Please check accompanying legal pack for further details.
* Generally speaking Guide Prices are provided as an indication of each seller's minimum expectation, i.e. 'The Reserve'. They are not necessarily figures which a property will sell for and may change at any time prior to the auction. Virtually every property will be offered subject to a Reserve (a figure below which the Auctioneer cannot sell the property during the auction) which we expect will be set within the Guide Range or no more than 10% above a single figure Guide.
As a trusted partner of Paul Fosh Auctions, Together could offer the auction finance you need, when you need it. Visit togethermoney.com for more information.
If considering a mortgage, we advise that you inspect and consider the property carefully with your lender before bidding.
By setting a proxy bid, the system will automatically bid on your behalf to maintain your position as the highest bidder, up to your proxy bid amount. If you are outbid, you will be notified via email so you can opt to increase your bid if you so choose.
If two of more users place identical bids, the bid that was placed first takes precedence, and this includes proxy bids.
Another bidder placed an automatic proxy bid greater or equal to the bid you have just placed. You will need to bid again to stand a chance of winning.