Waiting for video...
ONLINE AUCTION from 17th MAY-19th MAY
A substantial freehold building currently comprising a ground floor retail until and 5 flats. The property offers scope to improve in its current form or potential to reconfigure into 6 residential units with one commercial unit. There have been some initial works commenced in readiness for a proposed lease to the council however due to a change in the vendors circumstances the property is sold now with potential to improve and finish and fully let.
INVESTORS: If you are looking for assistance in tenant find and/or management packages, information on rental income/interest potential we have a Lettings Department that can help you. Please call us on 01633 746800 or email rhys@paulfoshlettings.com for invaluable advice.
VIRTUAL TOUR
Ground Floor: Retail/office, rear office, w/c, kitchen
Ground Floor: Communal access to flats
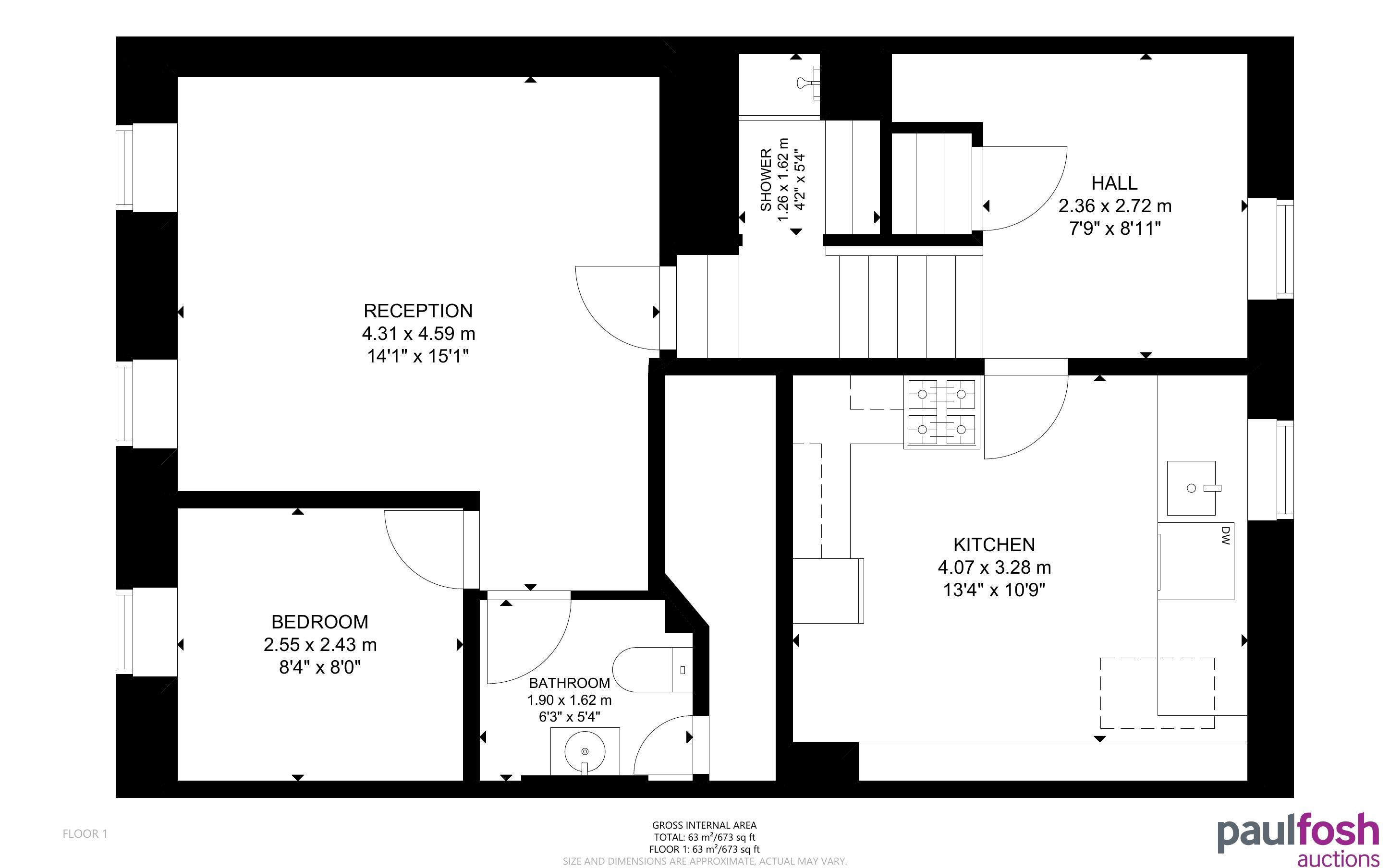
First Floor:
Flat 1:- Entrance, lounge/kitchen, bedroom, shower room/WC
Flat 2:- Lounge/kitchen, bedroom, shower room/WC
Flat 3:- Room with space for lounge/kitchen/bedroom & shower room/WC
Second Floor:
Flat 4: Lounge/kitchen, bedroom, Shower room
Flat 5: Kitchen area, bedroom/lounge area off bathroom
Outside: Rear garden area
Flat 2 is currently let on AST at £400 pcm (£4,800 p/a) with tenant keen to remain
The remainder of the building is vacant.
If rented out in its currrent arrangement (5 x £400 plus £550 for the commercial) produces a potential income of £30,600 p/a
The potential projected income when fully let is £40,200 p/a (7 x £400 plus £550)
Advised Freehold - to be verified by solicitor
Auction fees: The sale of each lot is subject to a buyer’s premium/admin fee of 1.5% of the purchase price (subject to a minimum of £1,500 for sale prices between £1 and £50,000 or subject to a minimum of £2,400 for sale prices of £50,001 upwards) including VAT unless otherwise stated.
Additional costs: The purchase of the property may be subject to (but are not limited to), VAT (if applicable), reimbursement of the seller’s search fees, reimbursement of seller’s legal and/or sales costs, stamp duty/land transaction tax (LTT). Please check accompanying legal pack for further details.
* Generally speaking Guide Prices are provided as an indication of each seller's minimum expectation, i.e. 'The Reserve'. They are not necessarily figures which a property will sell for and may change at any time prior to the auction. Virtually every property will be offered subject to a Reserve (a figure below which the Auctioneer cannot sell the property during the auction) which we expect will be set within the Guide Range or no more than 10% above a single figure Guide.
As a trusted partner of Paul Fosh Auctions, Together could offer the auction finance you need, when you need it. Visit togethermoney.com for more information.
If considering a mortgage, we advise that you inspect and consider the property carefully with your lender before bidding.
By setting a proxy bid, the system will automatically bid on your behalf to maintain your position as the highest bidder, up to your proxy bid amount. If you are outbid, you will be notified via email so you can opt to increase your bid if you so choose.
If two of more users place identical bids, the bid that was placed first takes precedence, and this includes proxy bids.
Another bidder placed an automatic proxy bid greater or equal to the bid you have just placed. You will need to bid again to stand a chance of winning.