Waiting for video...
ONLINE AUCTION from 12th APRIL-14th APRIL
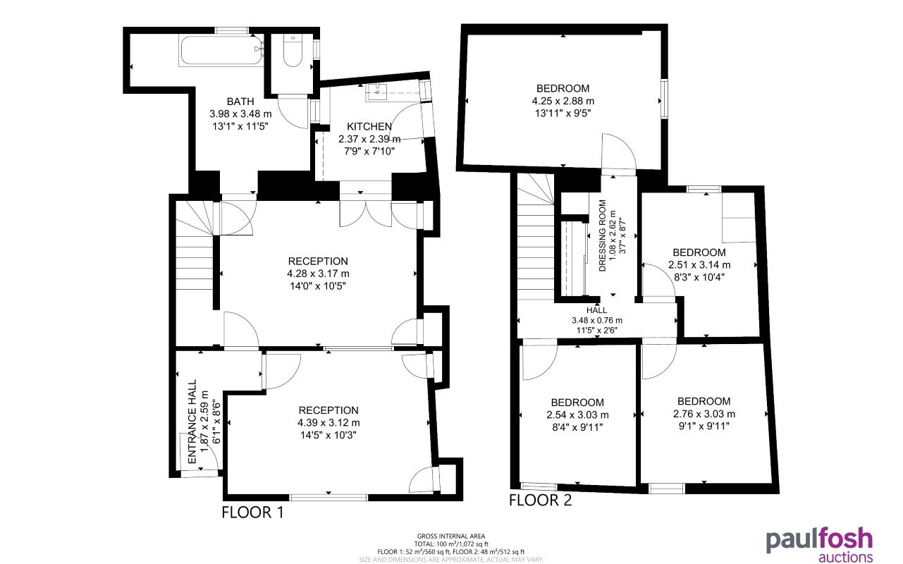
An end of terrace house situated adjacent to an area of shrubland and requiring complete renovation. The property offers two reception rooms, kitchen, spacious bathroom and four bedrooms – one with walk through dressing room. The rear garden, accessed via steps, is completely overgrown and inaccessible. There is a small courtyard area.
Pentre is a village, community and electoral ward near Treorchy in the Rhondda valley, falling within the county borough of Rhondda Cynon Taf, Wales. The village's name is taken from the Welsh word Pentref, which translates as homestead, though Pentre is named after a large farm that dominated the area before the coming of industrialisation. The community takes in the neighbouring village of Ton Pentre.
By the early 20th century, Pentre was a busy town and the main shopping area for the upper Rhondda and was also the centre for local government, with the local council offices built in Llewellyn Street in 1882. Pentre is also home to St Peter's Church (1890), the 'Cathedral of the Rhondda', the largest religious building in either valley.
Two of the most notable businesses to have existed in the Rhondda were both formed in Pentre; the Pentre Breweries and the Rhondda Engine Works.
Viewings: The garden will not be accessible for viewings (overgrown).
VIRTUAL TOUR
Ground Floor: Lounge, dining room, kitchen, bathroom
First Floor: 4 bedrooms, walk through dressing room
Outside: Small courtyard area, elevated garden (overgrown)
To be sold with vacant possession
Advised Freehold - to be verified by solicitor
Auction fees: The sale of each lot is subject to a buyer’s premium/admin fee of 1.5% of the purchase price (subject to a minimum of £1,500 for sale prices between £1 and £50,000 or subject to a minimum of £2,400 for sale prices of £50,001 upwards) including VAT unless otherwise stated.
Additional costs: The purchase of the property may be subject to (but are not limited to), VAT (if applicable), reimbursement of the seller’s search fees, reimbursement of seller’s legal and/or sales costs, stamp duty/land transaction tax (LTT). Please check accompanying legal pack for further details.
* Generally speaking Guide Prices are provided as an indication of each seller's minimum expectation, i.e. 'The Reserve'. They are not necessarily figures which a property will sell for and may change at any time prior to the auction. Virtually every property will be offered subject to a Reserve (a figure below which the Auctioneer cannot sell the property during the auction) which we expect will be set within the Guide Range or no more than 10% above a single figure Guide.
As a trusted partner of Paul Fosh Auctions, Together could offer the auction finance you need, when you need it. Visit togethermoney.com for more information.
If considering a mortgage, we advise that you inspect and consider the property carefully with your lender before bidding.
By setting a proxy bid, the system will automatically bid on your behalf to maintain your position as the highest bidder, up to your proxy bid amount. If you are outbid, you will be notified via email so you can opt to increase your bid if you so choose.
If two of more users place identical bids, the bid that was placed first takes precedence, and this includes proxy bids.
Another bidder placed an automatic proxy bid greater or equal to the bid you have just placed. You will need to bid again to stand a chance of winning.