Waiting for video...
Withdrawn - to be re-offered in June
ONLINE AUCTION from 12th APRIL-14th APRIL
An opportunity to acquire a substantial freehold building comprising 14 bedsit flats (guide price equates to approximately £38,000 per unit). The property is fully occupied and has had excellent occupancy levels historically. The property is well managed and maintained and benefits from UPVC double glazing and each flat has gas central heating (not tested). There is a spacious rear yard/car park and bin store to the rear with lane access.
The village of Taff’s Well lies just North of Cardiff and has an excellent range of local amenities and transport links inc train station. The A470 is easily accessible for access to the M4.
VIRTUAL TOUR
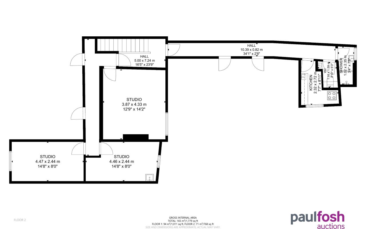
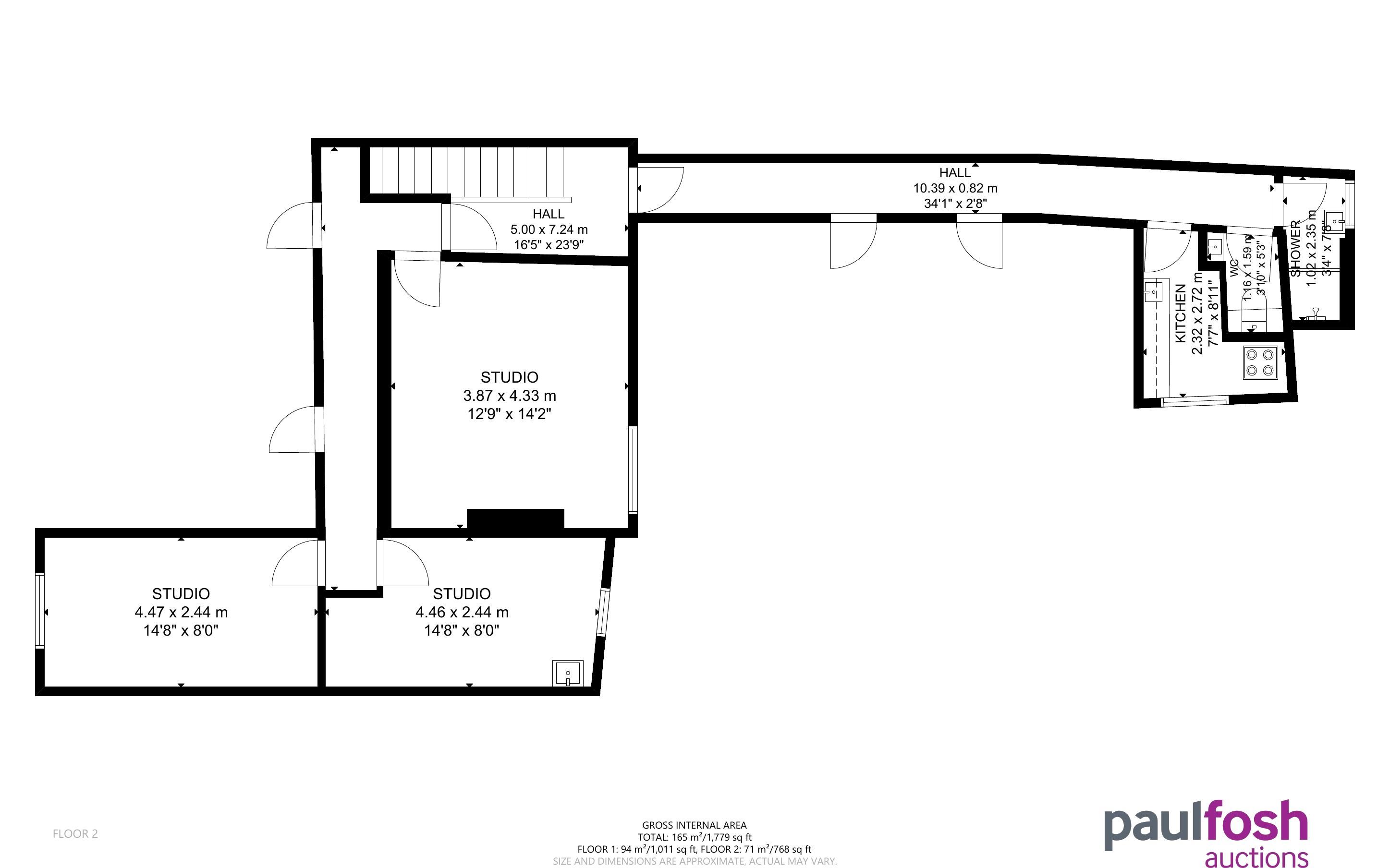
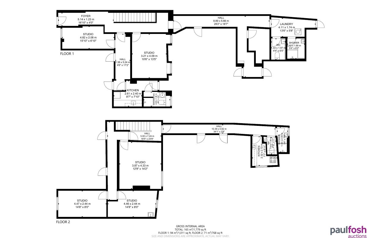
Ground Floor: 7 bedsits
First Floor: 7 bedsits
Communal kitchen x 2
Communal Bathroom x 2
WC X 2
Outside: Rear Yard/Carpark/Bin Store with lane access
Each flat is let on an AST at £360 pcm and the smaller room (room 8) is let on AST at £330 pcm
Total annual income £60,120
Advised Freehold - to be verified by solicitor
Auction fees: The sale of each lot is subject to a buyer’s premium/admin fee of 1.5% of the purchase price (subject to a minimum of £1,500 for sale prices between £1 and £50,000 or subject to a minimum of £2,400 for sale prices of £50,001 upwards) including VAT unless otherwise stated.
Additional costs: The purchase of the property may be subject to (but are not limited to), VAT (if applicable), reimbursement of the seller’s search fees, reimbursement of seller’s legal and/or sales costs, stamp duty/land transaction tax (LTT). Please check accompanying legal pack for further details.
* Generally speaking Guide Prices are provided as an indication of each seller's minimum expectation, i.e. 'The Reserve'. They are not necessarily figures which a property will sell for and may change at any time prior to the auction. Virtually every property will be offered subject to a Reserve (a figure below which the Auctioneer cannot sell the property during the auction) which we expect will be set within the Guide Range or no more than 10% above a single figure Guide.
As a trusted partner of Paul Fosh Auctions, Together could offer the auction finance you need, when you need it. Visit togethermoney.com for more information.
If considering a mortgage, we advise that you inspect and consider the property carefully with your lender before bidding.
By setting a proxy bid, the system will automatically bid on your behalf to maintain your position as the highest bidder, up to your proxy bid amount. If you are outbid, you will be notified via email so you can opt to increase your bid if you so choose.
If two of more users place identical bids, the bid that was placed first takes precedence, and this includes proxy bids.
Another bidder placed an automatic proxy bid greater or equal to the bid you have just placed. You will need to bid again to stand a chance of winning.