Lot 4 - Development Opportunity Washington Buildings, Stanwell Road, Penarth, Vale of Glamorgan, CF64 2AD

  • Unconditional Online Auction Sale
  • Guide Price* : NIL
  • Bedrooms: 0

Addendum

The property has been postponed until our 12th - 14th April auction.

View a Walkthrough of the Property

Development Opportunity

Description

ONLINE AUCTION from 8th MARCH-10th MARCH

A rare opportunity to acquire a spacious basement area in the highly sought after location of Penarth in the vale of Glamorgan. The basement offers scope for conversion to a flat or to integrate into existing accommodation within the building. The basement may also offer scope for office use or storage (subject to neccessary planning consents).

Washington Buildings is situated in the town centre and is convenient for the wealth of shops Penarth has to offer and close to the train station.

VIRTUAL TOUR

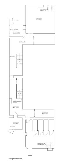
Accommodation

Please refer to plan and photographs.

Tenancies

To be sold with vacant possession

Tenure

Advised Leasehold - to be verified by solicitor

Auction Fees And Additional Costs

Auction fees: The sale of each lot is subject to a buyer’s premium/admin fee of 1.5% of the purchase price (subject to a minimum of £1,500 for sale prices between £1 and £50,000 or subject to a minimum of £2,400 for sale prices of £50,001 upwards) including VAT unless otherwise stated.

Additional costs: The purchase of the property may be subject to (but are not limited to), VAT (if applicable), reimbursement of the seller’s search fees, reimbursement of seller’s legal and/or sales costs, stamp duty/land transaction tax (LTT). Please check accompanying legal pack for further details.

* Generally speaking Guide Prices are provided as an indication of each seller's minimum expectation, i.e. 'The Reserve'. They are not necessarily figures which a property will sell for and may change at any time prior to the auction. Virtually every property will be offered subject to a Reserve (a figure below which the Auctioneer cannot sell the property during the auction) which we expect will be set within the Guide Range or no more than 10% above a single figure Guide.

Loading the bidding panel...

Want Auction updates? Sign up here

Viewing

Paul Fosh Auctions
01633 254044

Office Contact

Documents

Virtual Tour

Lot 4 - Washington Buildings

Auction Finance

As a trusted partner of Paul Fosh Auctions, Together could offer the auction finance you need, when you need it. Visit togethermoney.com for more information.

If considering a mortgage, we advise that you inspect and consider the property carefully with your lender before bidding.

Follow