ONLINE AUCTION from 8th MARCH-10th MARCH
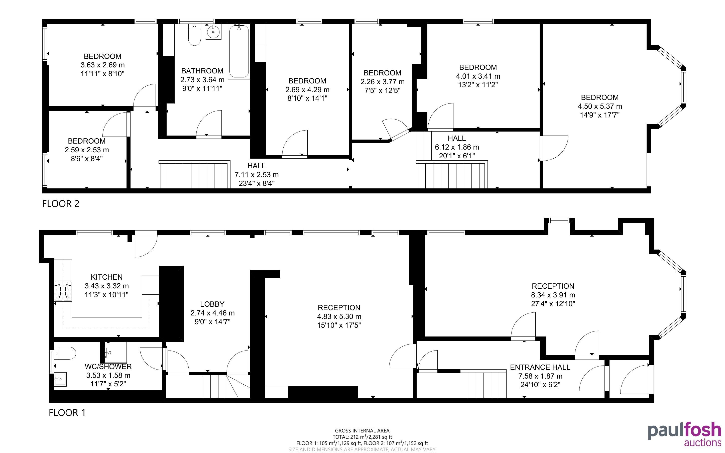
Located just off the high street in Aberdare this sizeable Victorian semi detached house offers great potential. With some original features remaining the accommodation offers six bedrooms, three reception rooms, kitchen, a bathroom plus shower room and two staircases. Outside there is a front garden with side access leading to the rear garden (overgrown) and attached outbuilding for storage. Requiring full refurbishment. To be sold with vacant possession.
Aberdare is a bustling town with its high street shops and cafes, supermarkets, surrounding countryside and good commuter links. Aberdare park dates from the Victorian ages and still has its original boating lake – and yes you can sail around it on either a swan or a dragon shaped paddle boat!
Aberdare is a town in the Cynon Valley area of Rhondda Cynon Taf, Wales. Aberdare is 4 miles south-west of Merthyr Tydfil, 20 miles north-west of Cardiff and 22 miles east-north-east of Swansea.
INVESTORS: If you are looking for assistance in tenant find and/or management packages, information on rental income/interest potential we have a Lettings Department that can help you. Please call us or email adrian@paulfoshlettings.com for invaluable advice.
VIRTUAL TOUR
Ground Floor: Porch, hallway with understairs shelved cupboard, 3 reception rooms, including 1 large open plan room, kitchen, shower room, 2 staircases
First Floor: Spacious landing, 6 bedrooms, bathroom
Outside: Front garden, side pathway, rear overgrown garden, attached dilapidated outbuilding for storage
To be sold with vacant possession
Advised Freehold - to be verified by solicitor
Auction fees: The sale of each lot is subject to a buyer’s premium/admin fee of 1.5% of the purchase price (subject to a minimum of £1,500 for sale prices between £1 and £50,000 or subject to a minimum of £2,400 for sale prices of £50,001 upwards) including VAT unless otherwise stated.
Additional costs: The purchase of the property may be subject to (but are not limited to), VAT (if applicable), reimbursement of the seller’s search fees, reimbursement of seller’s legal and/or sales costs, stamp duty/land transaction tax (LTT). Please check accompanying legal pack for further details.
* Generally speaking Guide Prices are provided as an indication of each seller's minimum expectation, i.e. 'The Reserve'. They are not necessarily figures which a property will sell for and may change at any time prior to the auction. Virtually every property will be offered subject to a Reserve (a figure below which the Auctioneer cannot sell the property during the auction) which we expect will be set within the Guide Range or no more than 10% above a single figure Guide.
As a trusted partner of Paul Fosh Auctions, Together could offer the auction finance you need, when you need it. Visit togethermoney.com for more information.
If considering a mortgage, we advise that you inspect and consider the property carefully with your lender before bidding.
By setting a proxy bid, the system will automatically bid on your behalf to maintain your position as the highest bidder, up to your proxy bid amount. If you are outbid, you will be notified via email so you can opt to increase your bid if you so choose.
If two of more users place identical bids, the bid that was placed first takes precedence, and this includes proxy bids.
Another bidder placed an automatic proxy bid greater or equal to the bid you have just placed. You will need to bid again to stand a chance of winning.