Waiting for video...
Guide price has been reduced.
ONLINE AUCTION from 8th MARCH-10th MARCH
Please Note: The property has not been inspected but the following description is believed to be accurate.
A basement flat with separate rear access to be sold with a long term sitting tenant with a rental of £295 per month. Situated in the town centre with excellent transport facilities including train station.
Pembroke Dock is a town and a community in Pembrokeshire, South West Wales, 3 miles northwest of Pembroke on the banks of the River Cleddau. Originally Paterchurch, a small fishing village, Pembroke Dock town expanded rapidly following the construction of the Royal Navy Dockyard in 1814. In 1930, four years after the Dockyard’s closure, the Royal Air Force began establishing a flying boat base – this continued for 29 years. Here in the 1930's several flying boats were introduced into service, including the Sunderland in 1938. In World War II Pembroke Dock became the world’s largest flying boat station and home base to airmen from many countries. Post war Sunderlands continued in service locally until 1957 and the station closed in 1959.
For 150 years Pembroke Dock was a military town, and home to all three Armed Services. The last military unit left in the 1960s and the town has striven to find new roles ever since.
This fine Victorian town with its grid-like street pattern and impressive buildings has expanded considerably in the past 50 years. It still has connections to its illustrious industrial past. Today the former dockyard is a commercial port and a gateway by ferry to Ireland.
INVESTORS: If you are looking for assistance in tenant find and/or management packages, information on rental income/interest potential we have a Lettings Department that can help you. Please call us or email adrian@paulfoshlettings.com for invaluable advice.
VIRTUAL TOUR
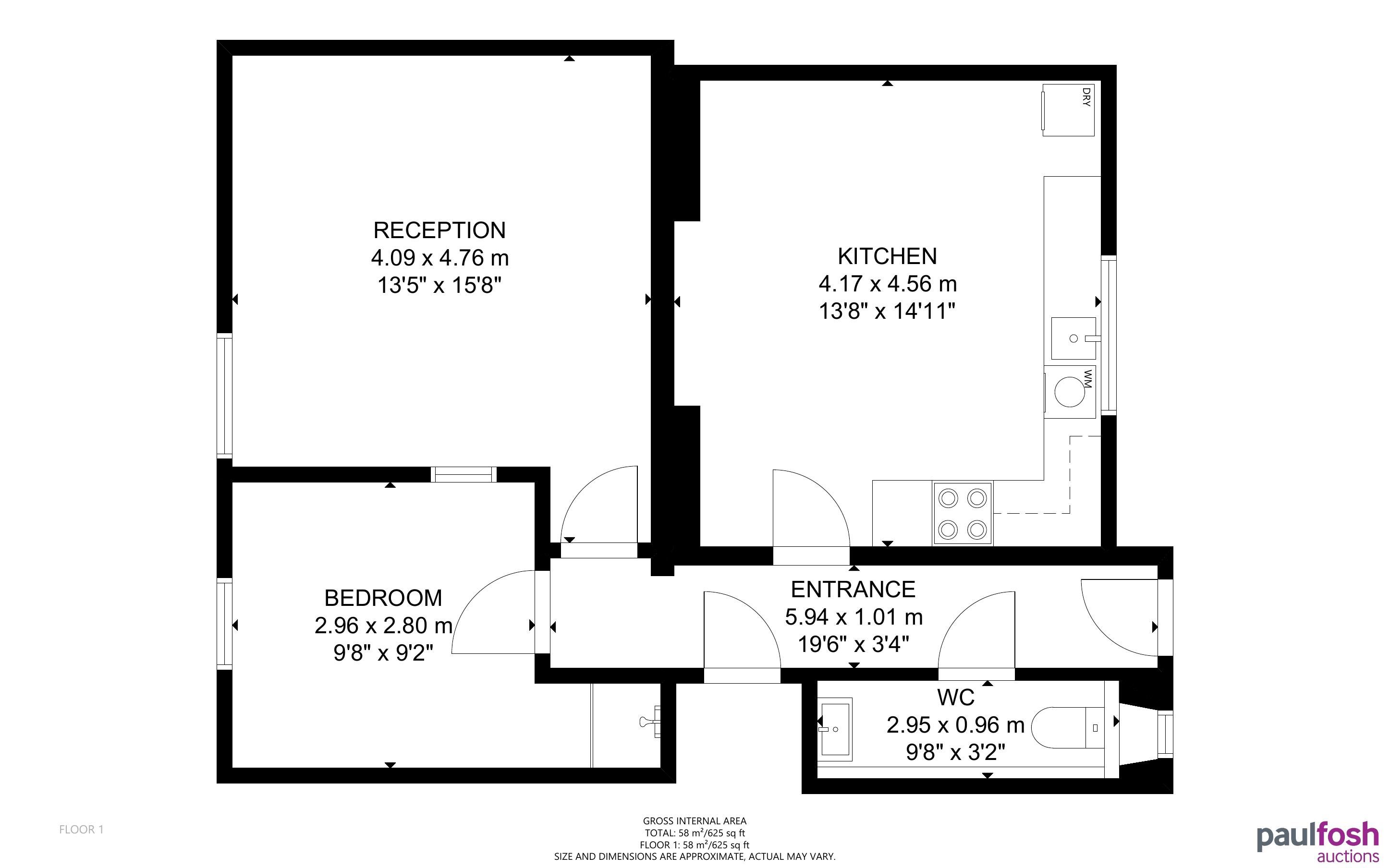
Basement: Lounge, kitchen, bedroom, shower room, separate wc
To be sold with sitting tenant
Advised Leasehold - to be verified by solicitor
Auction fees: The sale of each lot is subject to a buyer’s premium/admin fee of 1.5% of the purchase price (subject to a minimum of £1,500 for sale prices between £1 and £50,000 or subject to a minimum of £2,400 for sale prices of £50,001 upwards) including VAT unless otherwise stated.
Additional costs: The purchase of the property may be subject to (but are not limited to), VAT (if applicable), reimbursement of the seller’s search fees, reimbursement of seller’s legal and/or sales costs, stamp duty/land transaction tax (LTT). Please check accompanying legal pack for further details.
* Generally speaking Guide Prices are provided as an indication of each seller's minimum expectation, i.e. 'The Reserve'. They are not necessarily figures which a property will sell for and may change at any time prior to the auction. Virtually every property will be offered subject to a Reserve (a figure below which the Auctioneer cannot sell the property during the auction) which we expect will be set within the Guide Range or no more than 10% above a single figure Guide.
As a trusted partner of Paul Fosh Auctions, Together could offer the auction finance you need, when you need it. Visit togethermoney.com for more information.
If considering a mortgage, we advise that you inspect and consider the property carefully with your lender before bidding.
By setting a proxy bid, the system will automatically bid on your behalf to maintain your position as the highest bidder, up to your proxy bid amount. If you are outbid, you will be notified via email so you can opt to increase your bid if you so choose.
If two of more users place identical bids, the bid that was placed first takes precedence, and this includes proxy bids.
Another bidder placed an automatic proxy bid greater or equal to the bid you have just placed. You will need to bid again to stand a chance of winning.