Waiting for video...
The guide price has been increased.
ONLINE AUCTION from 1st FEBRUARY-3rd FEBRUARY
This three storey building is located on a popular commercial road. There are a number of independent and national retailers located within close proximity, namely Boots Pharmacy, Peacocks Clothing Store and Lloyds Bank.
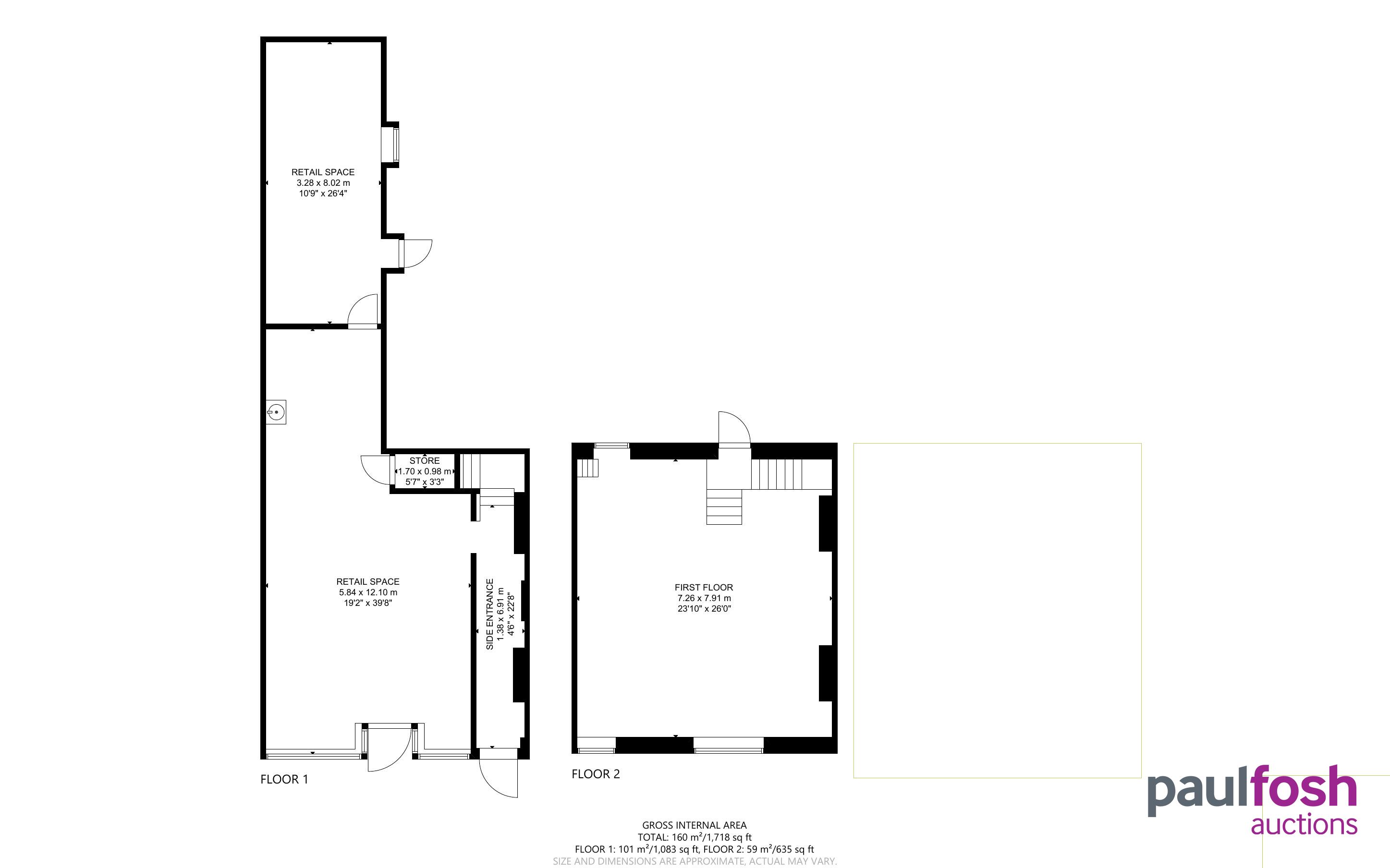
Formerly occupied as an opticians, this property is now ready for renovation. The vendor has informed us that the current planning permissions are for two commercial premises, with one occupying the basement and ground floor of the main building and the other the basement and first floor of the rear extension. The basement of the rear is at ground level. The new planning permission is for two flats on first and second floors of the main building - planning reference: C/2020/0152.
Government grants may be available to assist with the works on this property, for further information please speak directly with Blaenau Gwent Council.
The lower ground floor is comprised of a head height basement, the ground floor was formerly occupied as a opticians although is now ready for renovation, as are the top two floors. There is access to the rear of the property which also may provide space for parking.
VIRTUAL TOUR
Lower Ground Floor: Basement
Ground Floor: Former opticians
First Floor: Vacant space
Second Floor: Vacant space
Outside: Access to rear
To be sold with vacant possession
Advised Freehold - to be verified by solicitor
Auction fees: The sale of each lot is subject to a buyer’s premium/admin fee of 1.5% of the purchase price (subject to a minimum of £1,500 for sale prices between £1 and £50,000 or subject to a minimum of £2,400 for sale prices of £50,001 upwards) including VAT unless otherwise stated.
Additional costs: The purchase of the property may be subject to (but are not limited to), VAT (if applicable), reimbursement of the seller’s search fees, reimbursement of seller’s legal and/or sales costs, stamp duty/land transaction tax (LTT). Please check accompanying legal pack for further details.
* Generally speaking Guide Prices are provided as an indication of each seller's minimum expectation, i.e. 'The Reserve'. They are not necessarily figures which a property will sell for and may change at any time prior to the auction. Virtually every property will be offered subject to a Reserve (a figure below which the Auctioneer cannot sell the property during the auction) which we expect will be set within the Guide Range or no more than 10% above a single figure Guide.
As a trusted partner of Paul Fosh Auctions, Together could offer the auction finance you need, when you need it. Visit togethermoney.com for more information.
If considering a mortgage, we advise that you inspect and consider the property carefully with your lender before bidding.
By setting a proxy bid, the system will automatically bid on your behalf to maintain your position as the highest bidder, up to your proxy bid amount. If you are outbid, you will be notified via email so you can opt to increase your bid if you so choose.
If two of more users place identical bids, the bid that was placed first takes precedence, and this includes proxy bids.
Another bidder placed an automatic proxy bid greater or equal to the bid you have just placed. You will need to bid again to stand a chance of winning.