Waiting for video...
ONLINE AUCTION from 7th DECEMBER-9th DECEMBER
This property consists of a block of eleven apartments. Four studio apartments, six x1 bedroom apartments & one x2 bedroom apartment.
The apartments would benefit from some refurbishment so may interest buyers looking to renovate to re-sell or for buy to let as long terms investement. Benefitting from rear car parking area, new interlinked fire alarm system, the property also benefits from local shops and is within walking distance to the city centre and Royal Gwent hospital. Excellent commuter links via the M4 motorway.
Please Note: Access to all flats may not be possible.
VIRTUAL TOUR
Please note: The property has not been inspected internally, however we believe it comprises:
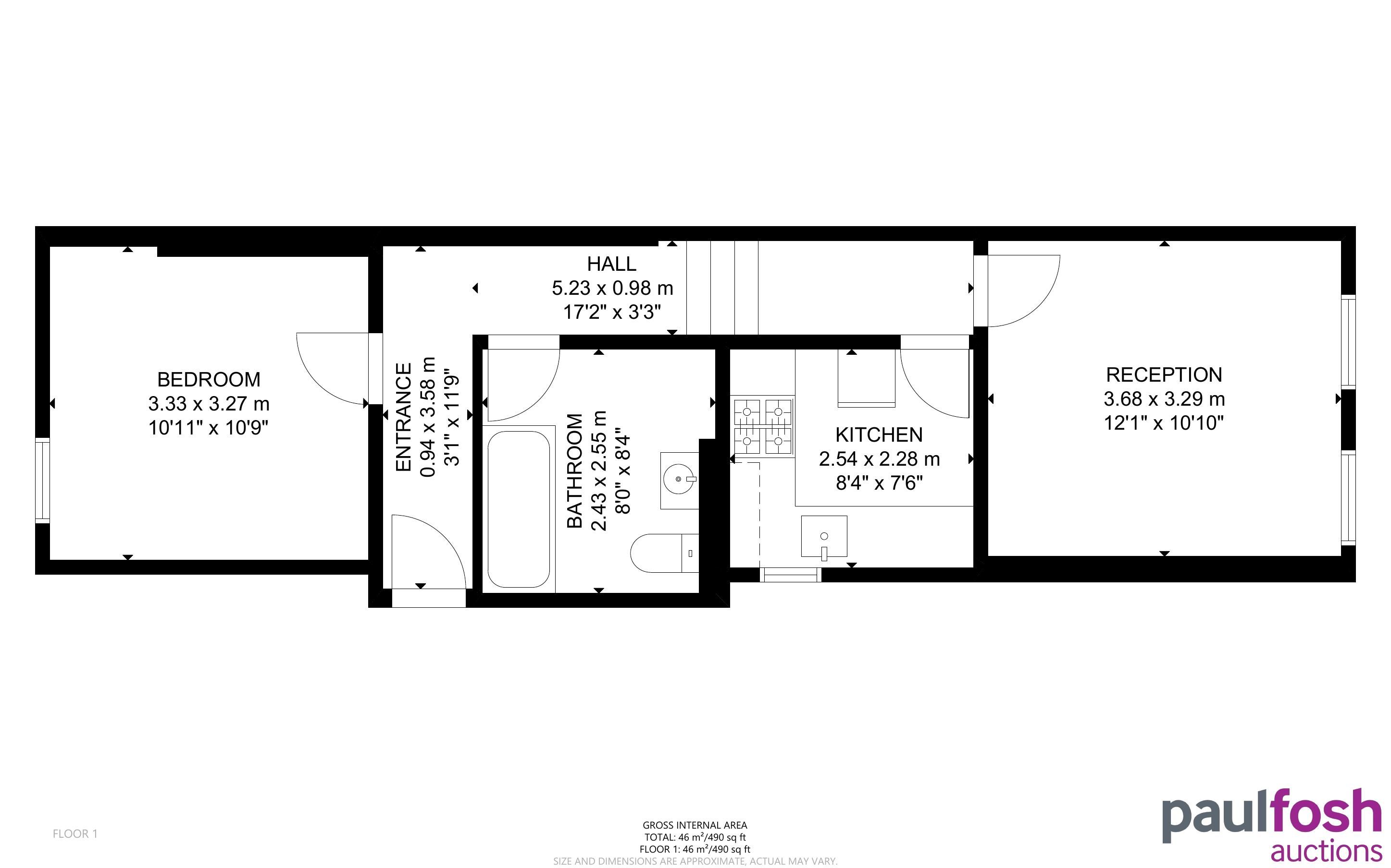
Studio Apartments: Living/bedroom, kitchenette, bathroom
One bedroom Apartments: Living room, bedroom, kitchen, bathroom
Two Bedroom Apartment: Living room, 2 bedrooms, kitchen, bathroom
Outside: Rear car parking area
Rental currently achieving:;
| Unit No. | Income per month | Income per annum |
|---|---|---|
| Four Studio Apartments | £1,280 | £15,360 |
| Six x1 Bedroom Apartments | £2,100 | £25,200 |
| One x2 Bedroom Apartment | £420 | £5,040 |
| Total | 3,800 | £45,600 |
All eleven apartments are currently let. If the flats were renovated to a good standard we believe the studio apartments would achieve in the region of £450 pcm, the one bedroom apartment in the region of £475 pcm and the two bedroom apartment in the region of £550 pcm. This offers a potential income of £62,400 per annum.
Advised Freehold - to be verified by solicitor
Auction fees: The sale of each lot is subject to a buyer’s premium/admin fee of 1.5% of the purchase price (subject to a minimum of £1,500 for sale prices between £1 and £50,000 or subject to a minimum of £2,400 for sale prices of £50,001 upwards) including VAT unless otherwise stated.
Additional costs: The purchase of the property may be subject to (but are not limited to), VAT (if applicable), reimbursement of the seller’s search fees, reimbursement of seller’s legal and/or sales costs, stamp duty/land transaction tax (LTT). Please check accompanying legal pack for further details.
* Generally speaking Guide Prices are provided as an indication of each seller's minimum expectation, i.e. 'The Reserve'. They are not necessarily figures which a property will sell for and may change at any time prior to the auction. Virtually every property will be offered subject to a Reserve (a figure below which the Auctioneer cannot sell the property during the auction) which we expect will be set within the Guide Range or no more than 10% above a single figure Guide.
As a trusted partner of Paul Fosh Auctions, Together could offer the auction finance you need, when you need it. Visit togethermoney.com for more information.
If considering a mortgage, we advise that you inspect and consider the property carefully with your lender before bidding.
By setting a proxy bid, the system will automatically bid on your behalf to maintain your position as the highest bidder, up to your proxy bid amount. If you are outbid, you will be notified via email so you can opt to increase your bid if you so choose.
If two of more users place identical bids, the bid that was placed first takes precedence, and this includes proxy bids.
Another bidder placed an automatic proxy bid greater or equal to the bid you have just placed. You will need to bid again to stand a chance of winning.