Waiting for video...
ONLINE AUCTION from 7th DECEMBER-9th DECEMBER
A substantial period semi detached property requiring updating and renovation and is situated in the heart of Risca.
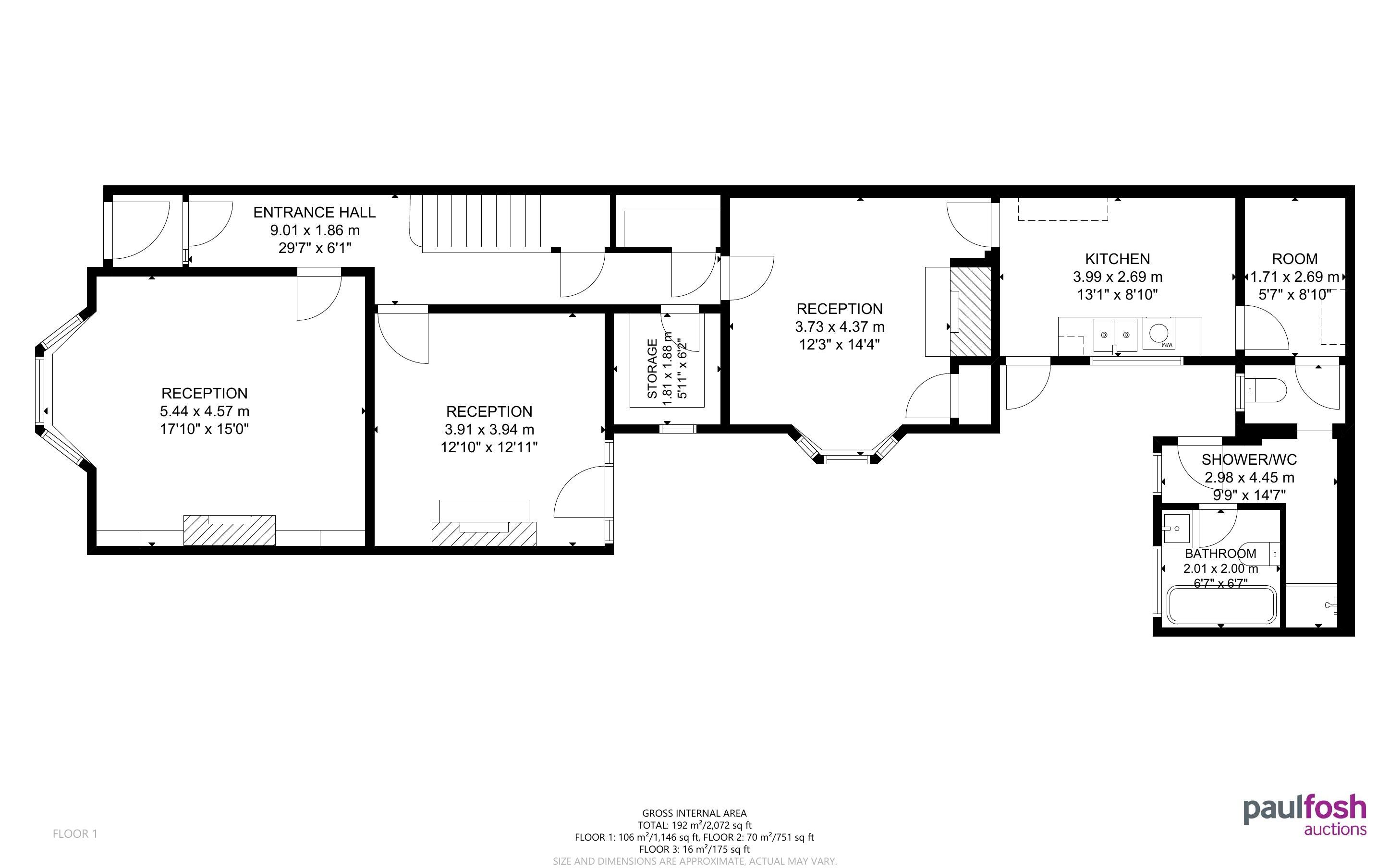
This sizeable property would make a superb family home or could be redeveloped into flats (subject to planning permission and necessary consents). To the ground floor there are three reception rooms with kitchen and ground floor bathroom with separate shower. The property also benefits from some original features.
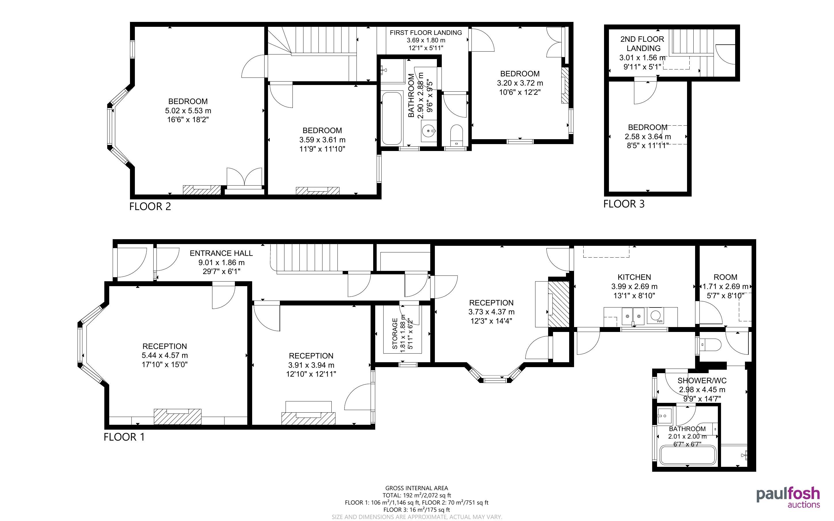
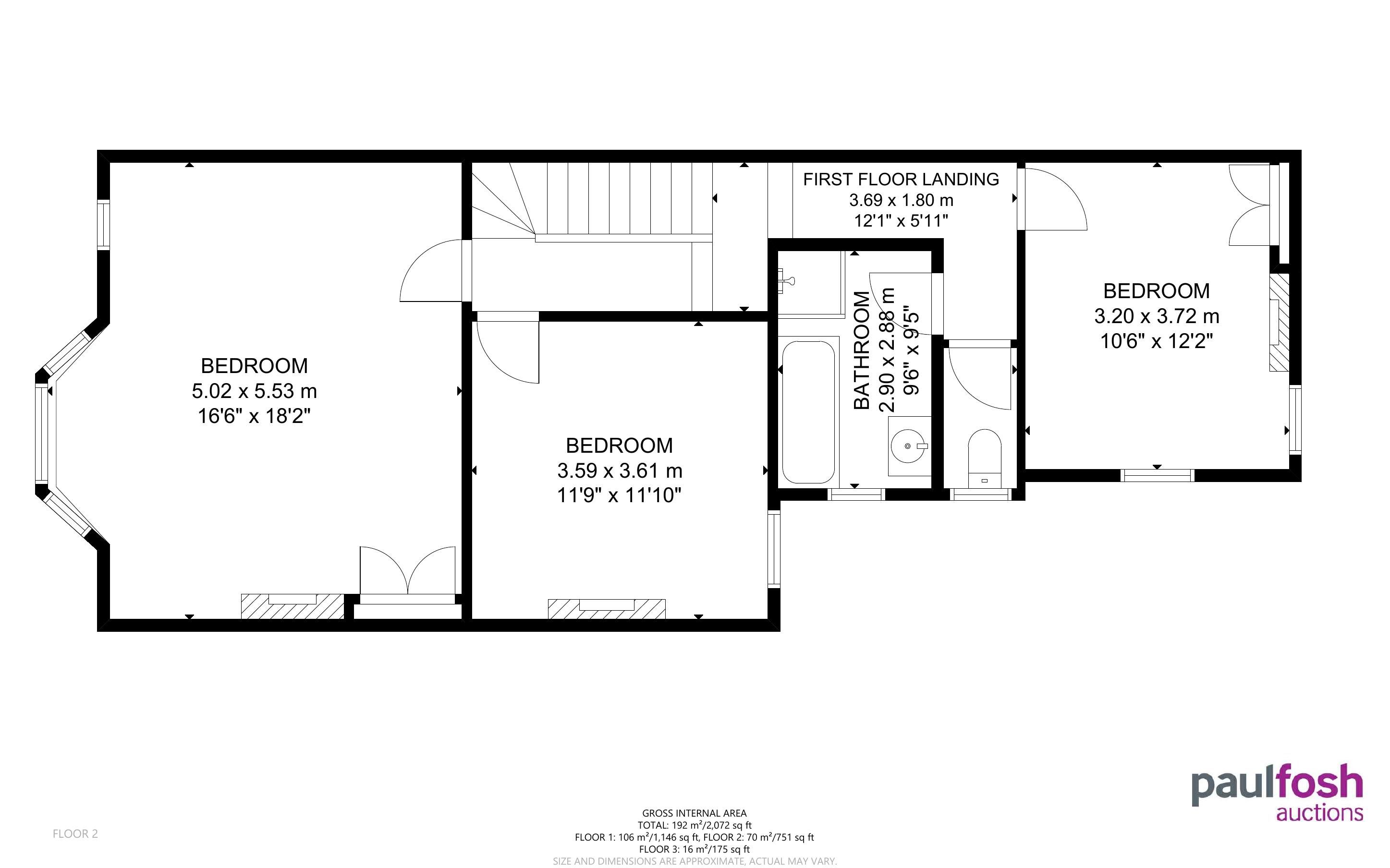
To the first floor there are three double bedrooms with the master offering views over the surrounding countryside and bathroom with separate wc. The top floor offers a loft room.
The outside benefits from a detached garage, car parking space for one car and gardens to the front and side.
The property is situated close to all local amenities with the train station within walking distance and the M4 (Junction 28) is only a short drive away.
VIRTUAL TOUR
Ground Floor: Entrance hallway, pantry cupboard, understairs storage cupboards, 3 reception rooms, kitchen, shower, bathroom
First Floor: 3 bedrooms, bathroom, wc
Top Floor: Loft room
Outside: Detached garage, gravelled area for parking, garden to side and front.
To be sold with vacant possession
Advised Freehold - to be verified by solicitor
Auction fees: The sale of each lot is subject to a buyer’s premium/admin fee of 1.5% of the purchase price (subject to a minimum of £1,500 for sale prices between £1 and £50,000 or subject to a minimum of £2,400 for sale prices of £50,001 upwards) including VAT unless otherwise stated.
Additional costs: The purchase of the property may be subject to (but are not limited to), VAT (if applicable), reimbursement of the seller’s search fees, reimbursement of seller’s legal and/or sales costs, stamp duty/land transaction tax (LTT). Please check accompanying legal pack for further details.
* Generally speaking Guide Prices are provided as an indication of each seller's minimum expectation, i.e. 'The Reserve'. They are not necessarily figures which a property will sell for and may change at any time prior to the auction. Virtually every property will be offered subject to a Reserve (a figure below which the Auctioneer cannot sell the property during the auction) which we expect will be set within the Guide Range or no more than 10% above a single figure Guide.
As a trusted partner of Paul Fosh Auctions, Together could offer the auction finance you need, when you need it. Visit togethermoney.com for more information.
If considering a mortgage, we advise that you inspect and consider the property carefully with your lender before bidding.
By setting a proxy bid, the system will automatically bid on your behalf to maintain your position as the highest bidder, up to your proxy bid amount. If you are outbid, you will be notified via email so you can opt to increase your bid if you so choose.
If two of more users place identical bids, the bid that was placed first takes precedence, and this includes proxy bids.
Another bidder placed an automatic proxy bid greater or equal to the bid you have just placed. You will need to bid again to stand a chance of winning.