Waiting for video...
ONLINE AUCTION from 19th OCTOBER-21st OCTOBER
An end of terrace house in an extremely popular area of Newport.
The property, now vacant, has previously been let on shorthold tenancies and prior as a HMO. The house has been divided into 3 properties – a house to the front and 2 studio apartments to the rear.
All three properties have separate entrances and benefit from use of the courtyard at the rear. There is a vehicular gate giving access to parking via the rear shared driveway. The Vendor informs us that there is a dispute regarding the boundary – please read the legal pack for more information on this. The property could be returned to one residence (subject to necessary consents).
Caerleon Road provides local shopping and schools within walking distance and excellent commuter links via the M4 and Newport train station.
Offering an excellent rental investment, rental income could achieve:-
96a £650 per month
96b £420 per month
96c £420 per month
VIRTUAL TOUR
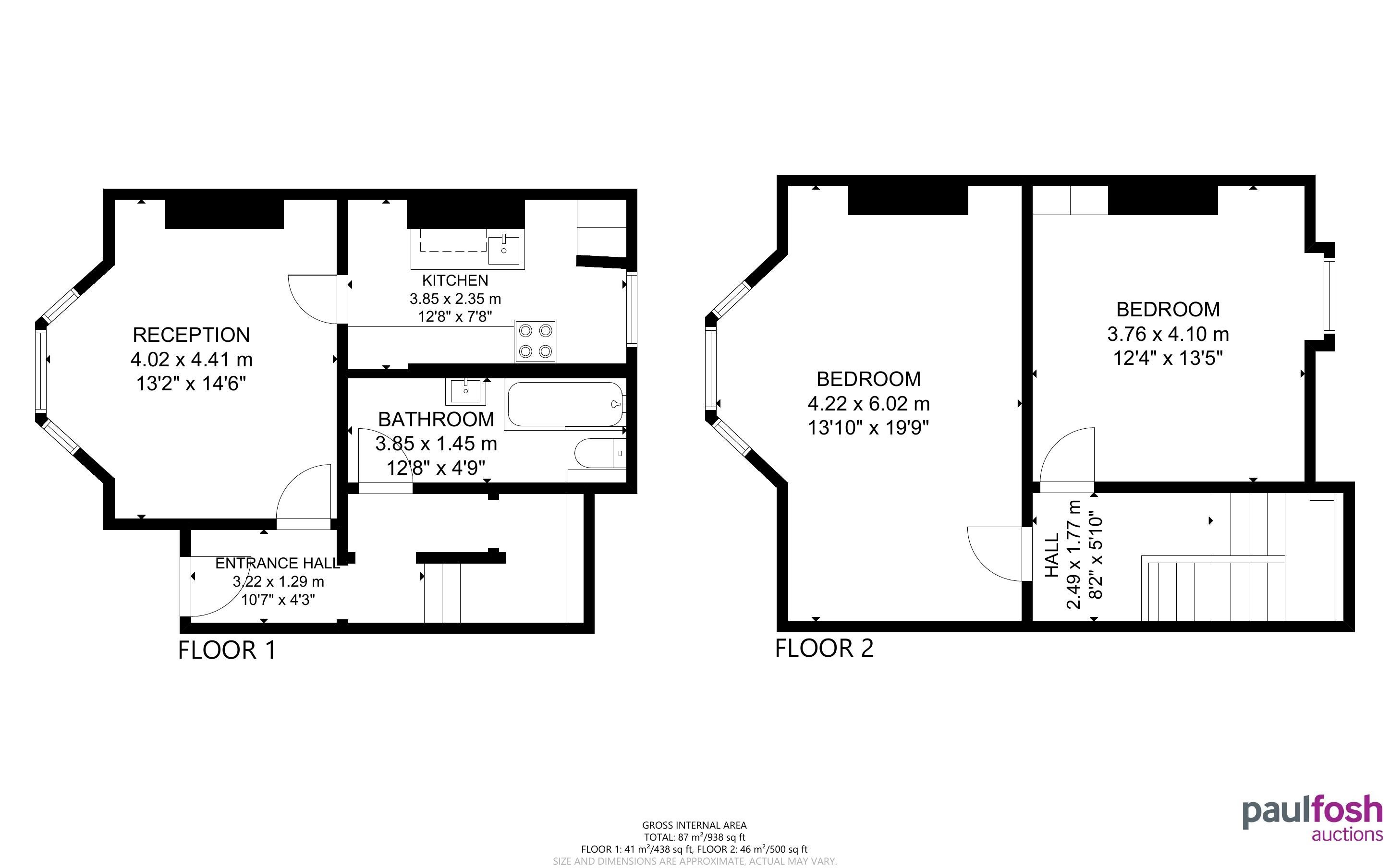
96A Ground Floor (front entrance): Hallway, lounge, kitchen, bathroom
First Floor: 2 bedrooms
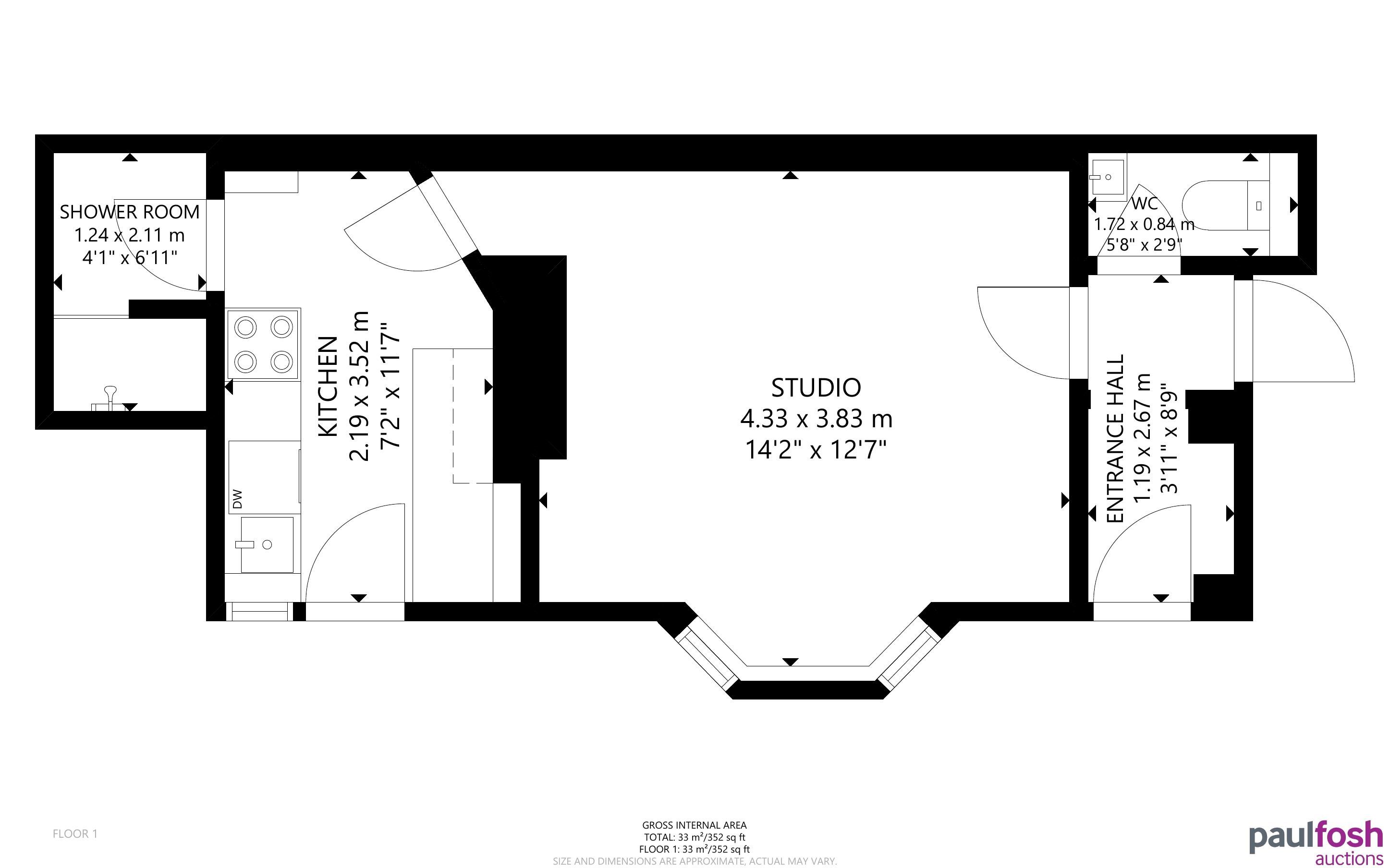
96B Ground Floor (rear entrance): Hallway, cloakroom, separate shower cubicle, lounge/bedroom, kitchen
96C First Floor (rear entrance): Hallway, kitchen, lounge/bedroom, shower room
Outside: Courtyard area with side pedestrian gate, large gate for vehicle access via shared drive
To be sold with vacant possession
Advised Freehold - to be verified by solicitor
Auction fees: The sale of each lot is subject to a buyer’s premium/admin fee of 1.5% of the purchase price (subject to a minimum of £1,500 for sale prices between £1 and £50,000 or subject to a minimum of £2,400 for sale prices of £50,001 upwards) including VAT unless otherwise stated.
Additional costs: The purchase of the property may be subject to (but are not limited to), VAT (if applicable), reimbursement of the seller’s search fees, reimbursement of seller’s legal and/or sales costs, stamp duty/land transaction tax (LTT). Please check accompanying legal pack for further details.
* Generally speaking Guide Prices are provided as an indication of each seller's minimum expectation, i.e. 'The Reserve'. They are not necessarily figures which a property will sell for and may change at any time prior to the auction. Virtually every property will be offered subject to a Reserve (a figure below which the Auctioneer cannot sell the property during the auction) which we expect will be set within the Guide Range or no more than 10% above a single figure Guide.
As a trusted partner of Paul Fosh Auctions, Together could offer the auction finance you need, when you need it. Visit togethermoney.com for more information.
If considering a mortgage, we advise that you inspect and consider the property carefully with your lender before bidding.
By setting a proxy bid, the system will automatically bid on your behalf to maintain your position as the highest bidder, up to your proxy bid amount. If you are outbid, you will be notified via email so you can opt to increase your bid if you so choose.
If two of more users place identical bids, the bid that was placed first takes precedence, and this includes proxy bids.
Another bidder placed an automatic proxy bid greater or equal to the bid you have just placed. You will need to bid again to stand a chance of winning.