Waiting for video...
Postponed
ONLINE AUCTION from 19th OCTOBER-21st OCTOBER
A substantial freehold building with 7 flats, all let and producing a fantastic rental return per annum. The flats occupy a sizeable plot approximately 100 Sq m/357 Sq ft and there may be scope for future development.
The property has been owned by the sellers for 20 years and has a history of strong occupancy levels and would be ideal for a landlord. The property is ideally situated for access to Cardiff city centre and Cardiff Bay and there are excellent transport links. The property is also in close proximity to the newly built Central Square and planned Central Quay development.
The flats all benefit from UPVC windows and gas central heating (not tested), with fitted kitchens and bathrooms.
VIRTUAL TOUR
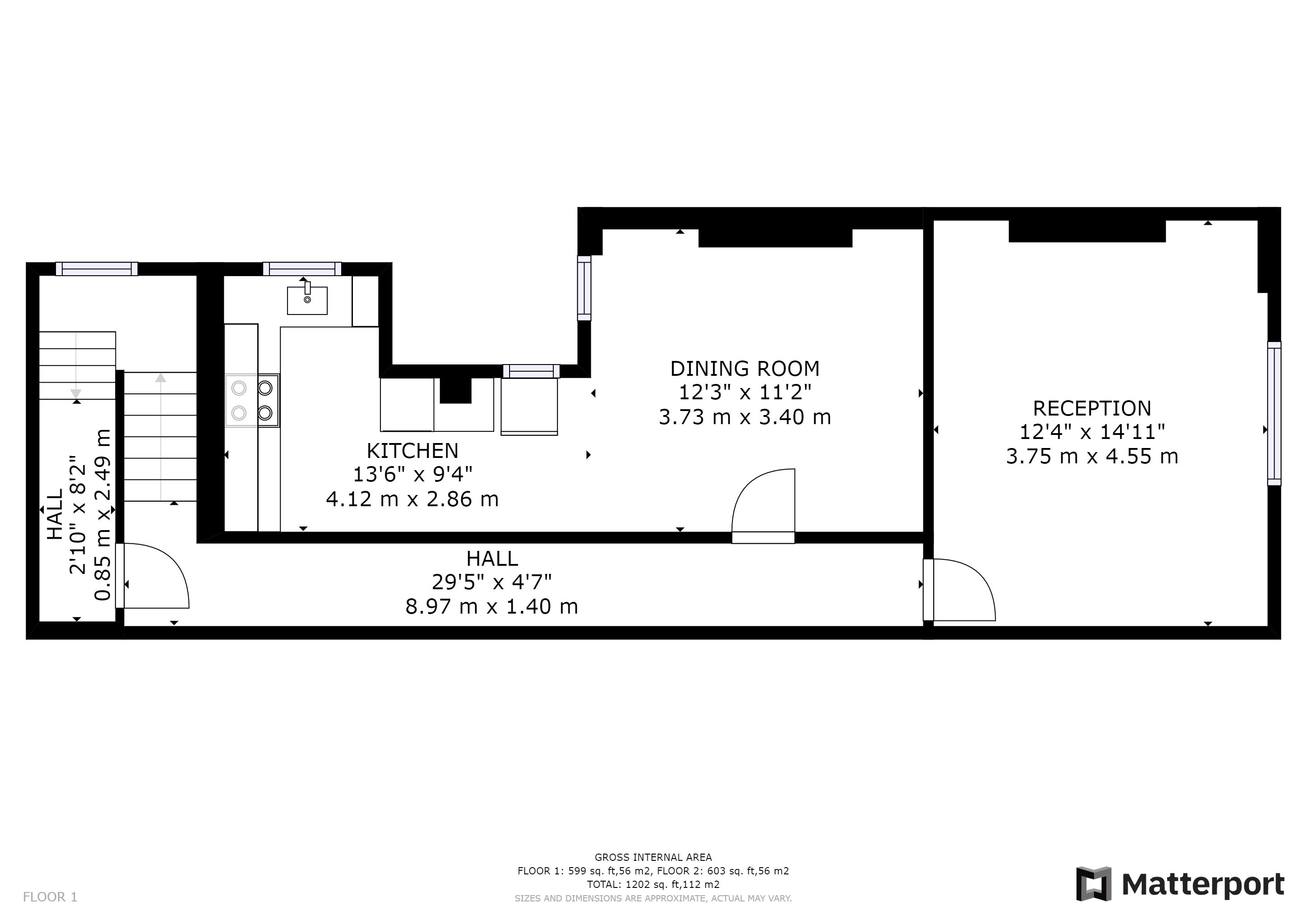
| Floor | Description | Rent |
|---|---|---|
| Block 1 | ||
| Flat 1 | Lounge/kitchen, 2 bedrooms, bathroom | £650 pcm |
| Flat 3 | Lounge/kitchen, 2 bedrooms, bathroom | £580 pcm |
| Flat 4 | Lounge/kitchen, 2 bedrooms, bathroom | £450 pcm |
| Flat 6 | Lounge/kitchen, one bedroom, bathroom | £390 pcm |
| Flat 7 | Lounge/kitchen, 2 bedrooms, bathroom | £550 pcm |
| Block 2 | ||
| Flat 5 (maisonette) | Hallway, dining room/kitchen, lounge, 3 bedrooms, bathroom | £680 pcm |
| Flat 2 | Lounge/kitchen, one bedroom, bathroom | £450 pcm |
| Total | £3,750 pcm (£45,000 pa) | |
| Outside | Sizeable courtyard and parking for several vehicles |
Advised Freehold - to be verified by solicitor
Auction fees: The sale of each lot is subject to a buyer’s premium/admin fee of 1.5% of the purchase price (subject to a minimum of £1,500 for sale prices between £1 and £50,000 or subject to a minimum of £2,400 for sale prices of £50,001 upwards) including VAT unless otherwise stated.
Additional costs: The purchase of the property may be subject to (but are not limited to), VAT (if applicable), reimbursement of the seller’s search fees, reimbursement of seller’s legal and/or sales costs, stamp duty/land transaction tax (LTT). Please check accompanying legal pack for further details.
* Generally speaking Guide Prices are provided as an indication of each seller's minimum expectation, i.e. 'The Reserve'. They are not necessarily figures which a property will sell for and may change at any time prior to the auction. Virtually every property will be offered subject to a Reserve (a figure below which the Auctioneer cannot sell the property during the auction) which we expect will be set within the Guide Range or no more than 10% above a single figure Guide.
As a trusted partner of Paul Fosh Auctions, Together could offer the auction finance you need, when you need it. Visit togethermoney.com for more information.
If considering a mortgage, we advise that you inspect and consider the property carefully with your lender before bidding.
By setting a proxy bid, the system will automatically bid on your behalf to maintain your position as the highest bidder, up to your proxy bid amount. If you are outbid, you will be notified via email so you can opt to increase your bid if you so choose.
If two of more users place identical bids, the bid that was placed first takes precedence, and this includes proxy bids.
Another bidder placed an automatic proxy bid greater or equal to the bid you have just placed. You will need to bid again to stand a chance of winning.