Waiting for video...
ONLINE AUCTION from 19th OCTOBER-21st OCTOBER
Located on Perrott Street, Treharris this property is the ideal investment. The property is located in a mixed use area, with a number of independent traders within close proximity.
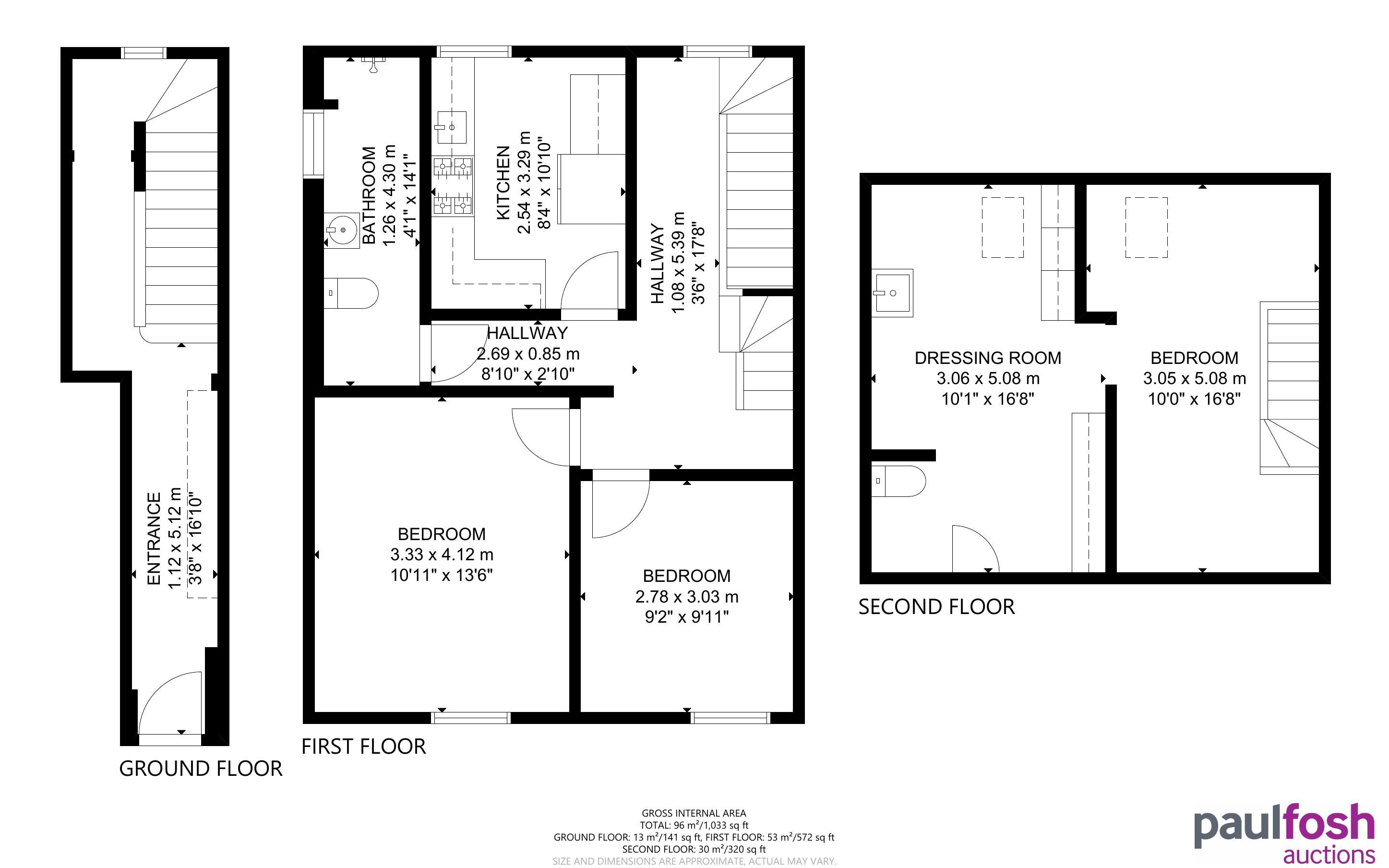
The property briefly comprises of a ground floor Quick Stop convenience store, a one bedroom flat to the lower ground, and a three bed maisonette to the first and second floors. There are two back gardens which overlook fantastic views, and a large garage to the rear.
The lower ground floor flat is currently tenanted, however the tenants have given notice to vacate.
The convenience store is currently trading with lottery, Paypoint, Hermes, DPD, sErvices and UPS parcel services. It may be possible to reinstate these services subject to necessary terms and conditions. Additionally, the vendor has informed us that the property benefits from an alcohol licence allowing them to sell alcohol between the hours of 7am - 9pm.
Please Note: It is anticipated that the property could achieve the following rental figures:
One bedroom flat: £300pcm
Three bed maisonette: £375pcm
Retail unit: £650 pcm
VIRTUAL TOUR
Ground Floor: Retail unit
Lower Ground Floor Flat: Kitchen/dining room, bedroom, living room
First Floor Maisonette: Bathroom, 2 bedrooms, kitchen
Second Floor: Bedroom with en-suite (en-suite unfinished)
Outside: 2 gardens, garage
| Date | Time |
|---|---|
| Wed 06 Oct - Tue 12 Oct - Mon 18 Oct | 10:20 |
Convenience store and maisonette to be sold with vacant possession. The tenants have provided notice to vacate the flat.
Advised Freehold - to be verified by solicitor
Auction fees: The sale of each lot is subject to a buyer’s premium/admin fee of 1.5% of the purchase price (subject to a minimum of £1,500 for sale prices between £1 and £50,000 or subject to a minimum of £2,400 for sale prices of £50,001 upwards) including VAT unless otherwise stated.
Additional costs: The purchase of the property may be subject to (but are not limited to), VAT (if applicable), reimbursement of the seller’s search fees, reimbursement of seller’s legal and/or sales costs, stamp duty/land transaction tax (LTT). Please check accompanying legal pack for further details.
* Generally speaking Guide Prices are provided as an indication of each seller's minimum expectation, i.e. 'The Reserve'. They are not necessarily figures which a property will sell for and may change at any time prior to the auction. Virtually every property will be offered subject to a Reserve (a figure below which the Auctioneer cannot sell the property during the auction) which we expect will be set within the Guide Range or no more than 10% above a single figure Guide.
As a trusted partner of Paul Fosh Auctions, Together could offer the auction finance you need, when you need it. Visit togethermoney.com for more information.
If considering a mortgage, we advise that you inspect and consider the property carefully with your lender before bidding.
By setting a proxy bid, the system will automatically bid on your behalf to maintain your position as the highest bidder, up to your proxy bid amount. If you are outbid, you will be notified via email so you can opt to increase your bid if you so choose.
If two of more users place identical bids, the bid that was placed first takes precedence, and this includes proxy bids.
Another bidder placed an automatic proxy bid greater or equal to the bid you have just placed. You will need to bid again to stand a chance of winning.